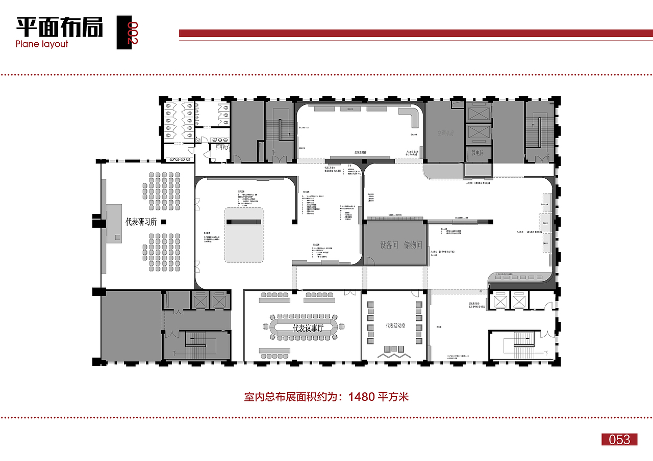
张家港市人大代表履职中心
苏州/艺术工作者/4年前/66808浏览
版权
张家港市人大代表履职中心
244
Report
声明
2418
Share
相关推荐
in to comment
Add emoji
喜欢TA的作品吗?喜欢就快来夸夸TA吧!
You may like
相关收藏夹
Log in
99+Log in and synchronize recommended records
99+Log in and add to My Favorites
评论Log in and comment your thoughts
分享Share























































































