DDC | 予美设计 - 斯堪的纳维亚创意办公
南京/室内设计师/4年前/122浏览
版权
DDC | 予美设计 - 斯堪的纳维亚创意办公
项目地点 | 江苏 南京
设计公司 | 予美DESIGN - DDC
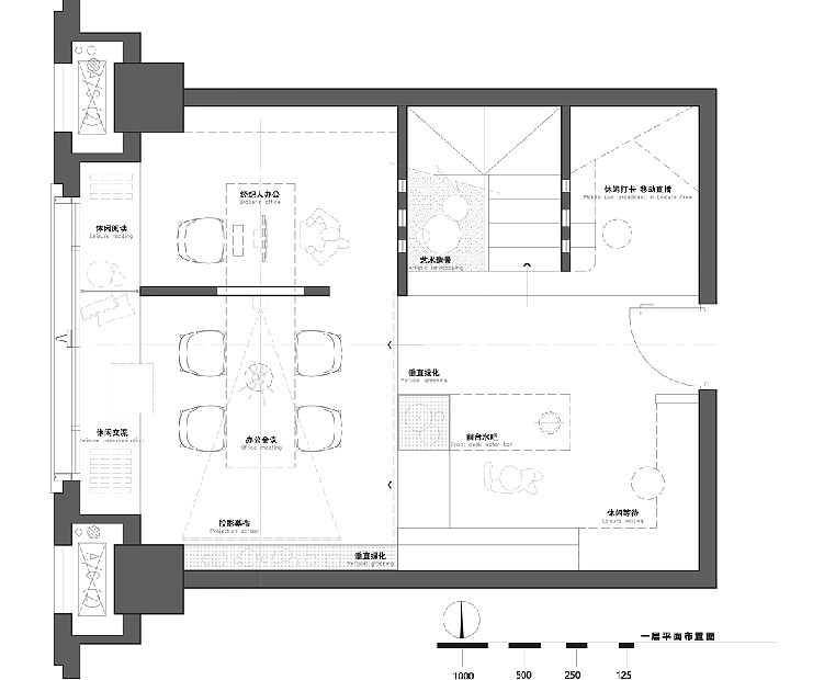
面积 | 40㎡
建成时间 | 2019年11月
主要材料 | 枪黑不锈钢、瓦楞玻璃、水磨石、木饰面、艺术涂料

SOHO生活办公打破传统办公模式,更具有弹性随心掌控,代表着新潮的生产力,活跃的新经济,更注重自由·时尚·个性·休闲·元素得融合,我们希望能更好的表达年轻人的审美标准以及办公习惯。
SOHO life office breaks the traditional office mode and is more flexible. It represents the trendy productivity and active new economy. It pays more attention to the integration of freedom, fashion, personality, leisure and elements. We hope to better express the aesthetic standards and office habits of young people.
SOHO life office breaks the traditional office mode and is more flexible. It represents the trendy productivity and active new economy. It pays more attention to the integration of freedom, fashion, personality, leisure and elements. We hope to better express the aesthetic standards and office habits of young people.
0
Report
声明
收藏
Share
相关推荐
in to comment
Add emoji
喜欢TA的作品吗?喜欢就快来夸夸TA吧!
You may like
相关收藏夹
Log in
推荐Log in and synchronize recommended records
收藏Log in and add to My Favorites
评论Log in and comment your thoughts
分享Share




































































































