LEW丨废弃学校改造为民宿
重庆/室内设计师/4年前/8722浏览
版权
LEW丨废弃学校改造为民宿
重庆万盛区黑山谷风景区北门村,有一所占地约4900平方米的乡村小学,正如中国当下的大多数,由于生源的流失,荒废后静静地隐立在半山间。因为停学的时间不长,所以校舍及操场等都保持的相当的完好。
项目业主是一位热爱生活的文化传播领域人士,她所从事的文化产业的背景使得她对学校有着特殊的感情,保留及延续学校的纯真气质,当即成为我们设计上的共识,而这自然纯真的气息也正是这片场所(Place)的本质。
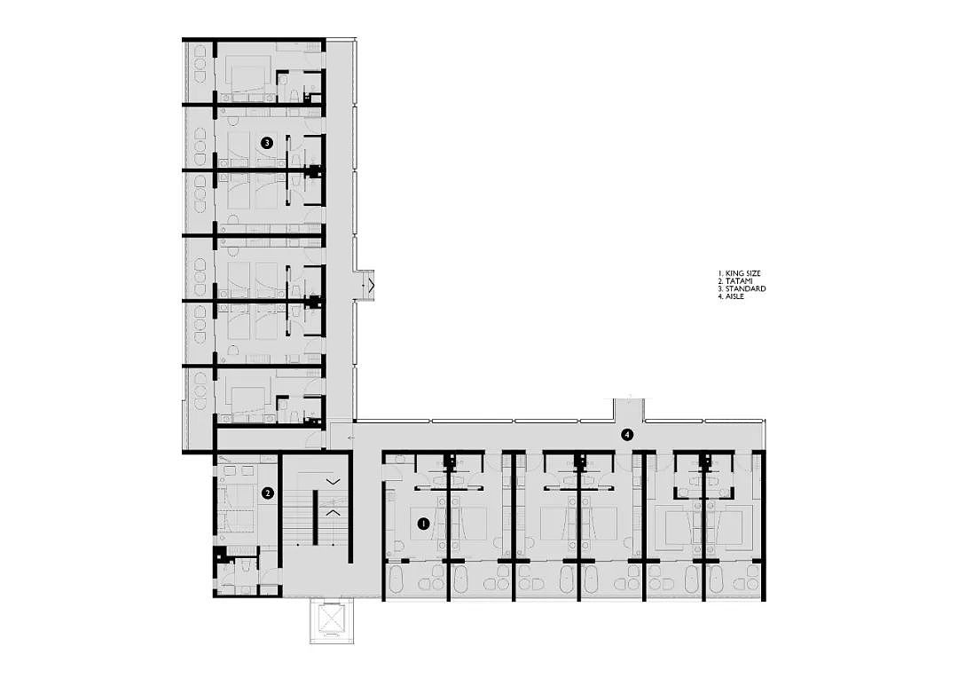
原有的场地是半山腰的一个平台,主体建筑为L型的砖混结构,主体建筑与操场之间有近十米的高差。由于区域发展的需求,学校旁边规划了一条主干道,虽然原有的宁静氛围被影响,但从此学校的文化商业价值被显现。在整体规划设计中,结合场地动静分布的结构,左右两边增加两个功能,分别是酒店客厅及图书馆,而中间的主体建筑,我们则规划了25个房间的住宿功能。左右两边的新建筑和主体建筑,柳杉树之间围合成了一个院落,让场地整体更聚气,这符合商业运营的需求。正如海德格尔说:建筑是一座桥梁。新建的建筑使原有的建筑和柳杉树之间建立起了连接,人与建筑,人与自然,建筑与自然之间构建出了新的场所精神(Spirit of place)。
在建筑设计手法上,利用场地的高差关系采用“恋地性Ground-hugging”建筑形态,即是对自然结构的形象化,也表达了对大地的归属及空间中的“自由性”。建筑整体采用简单纯粹的形式,来回应场所原有的纯真气息。景区在冬季阴冷潮湿,雨水充沛,所以在材料选择及屋檐的处理上,都有着在地性的考虑。建筑色彩的选配上,也抽取自周边自然的色彩,让整体更好的融入环境当中。
建筑的纯粹延伸至室内,内外一体。空间的规划上巧妙而含蓄,压制与释放相融。我们充分研究所在地的光照及通风,在室内做了许多采光井的处理,把阳光引入室内,让光成为了空间的主角,它让室内充满了不同时段的情绪。
特意保留了建筑中原有教室里的黑板及儿童画作,并让他们融入到新的设计当中去。酒店开放后,以前学校的老师特意回来参观时看到她当年教孩子的画还在,非常感动。 在施工收尾工作中,修整柳杉树林的一位工人正是当年参与种下这些树的小学生。这所学校在这里四十几年,是当地许多人的回忆,我们需要保留这些记忆并延续下去,始终坚信,岁月在精神层面的慰藉才是真正的奢华。
95
Report
声明
111
Share
相关推荐
in to comment
Add emoji
喜欢TA的作品吗?喜欢就快来夸夸TA吧!
You may like
相关收藏夹
Log in
95Log in and synchronize recommended records
99+Log in and add to My Favorites
评论Log in and comment your thoughts
分享Share

















































































