沈阳林凤装饰公司官网—60㎡现代风格,硬朗黑白色调。
沈阳/设计爱好者/5年前/62浏览
版权
沈阳林凤装饰公司官网—60㎡现代风格,硬朗黑白色调。
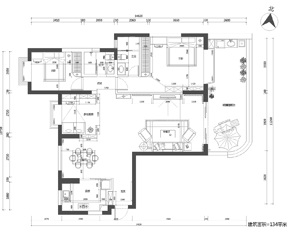
这个箱子的主人是一对小夫妻和两只猫。根据业主的要求,房间类型已经从原来的大变了。客厅的隔墙已经被改变了。浴室已经和干湿分开了。增加了一个衣帽间。原房间类型中的二级卧室比较窄,因此进行了拆迁以重新规划和增加空间。在二级卧室和主卧室之间使用雾化玻璃,以方便两个房间之间的通信,从而在将来照顾孩子并方便二级卧室的照明。厨房和餐厅是开放的,这最大限度地提高了整个空间的视觉外观。房子的整体风格是根据主人对现代简约和硬黑白色调的偏好来控制的。
0
Report
声明
收藏
Share
相关推荐
in to comment
Add emoji
喜欢TA的作品吗?喜欢就快来夸夸TA吧!
You may like
相关收藏夹
Log in
推荐Log in and synchronize recommended records
收藏Log in and add to My Favorites
评论Log in and comment your thoughts
分享Share































































































