波比铸茶所
杭州/室内设计师/6年前/9050浏览
版权
波比铸茶所
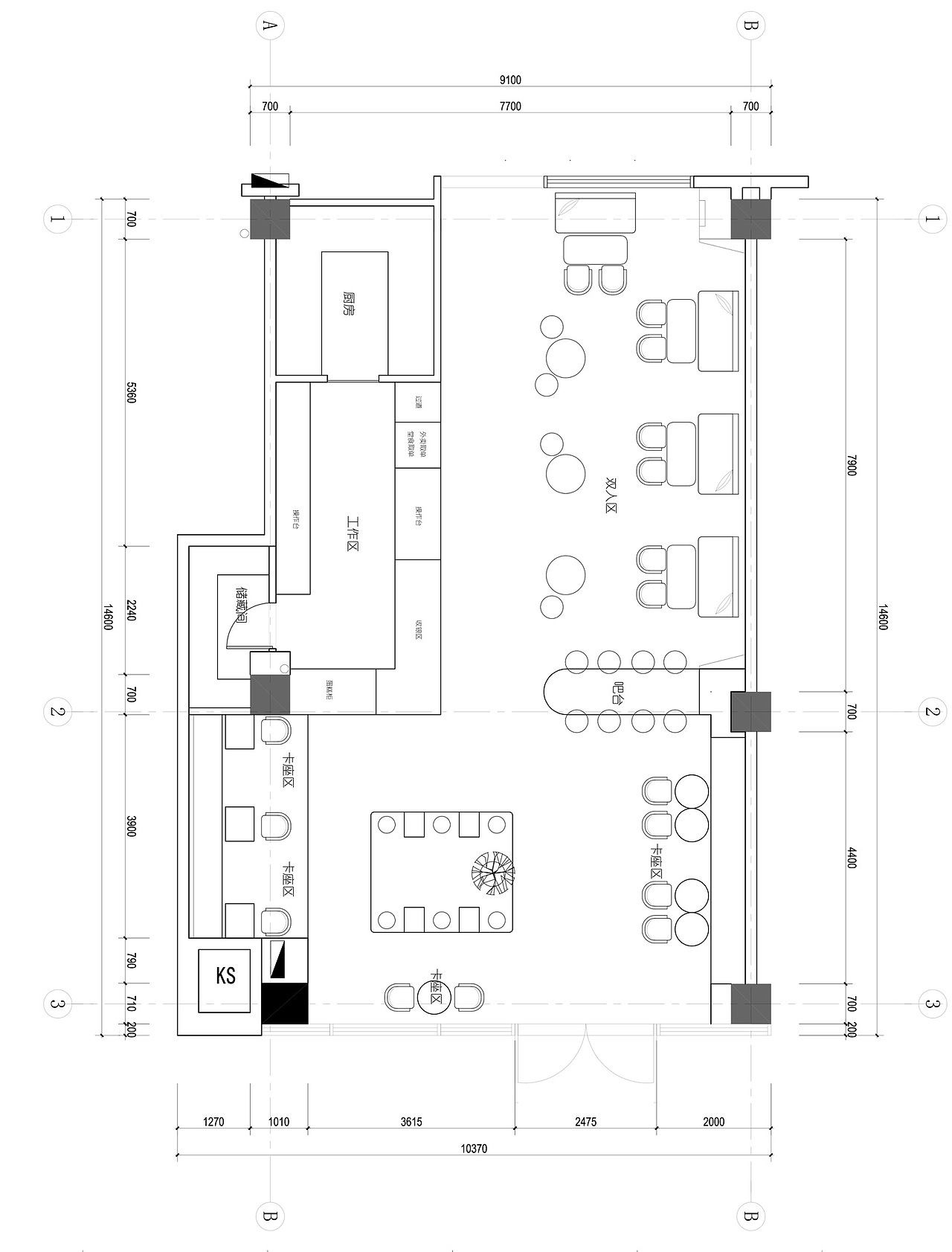
项目名称:波比铸茶所<br>设计单位:杭州民舍制作室内设计工作室<br>设计团队:贺赞辉 陈佳峰 孙紫益<br>项目地址:广东东莞<br>项目面积:135㎡<br>商业空间设计<br><br> 当某个设计作品,以其独特的美将你我打动,则它是具有独特艺术品质的,波比铸茶所,便是如此。 设计秉持着“人应是空间核心”的理念,在室内空间中加入许多绿植元素,让空间充满互动感,自然特质,成为一个不可多得的空间亮点。对于美的追求,一直都是艺术永恒的主题。<br><br>
36
Report
声明
176
Share
相关推荐
in to comment
Add emoji
喜欢TA的作品吗?喜欢就快来夸夸TA吧!
You may like
相关收藏夹
Log in
36Log in and synchronize recommended records
99+Log in and add to My Favorites
评论Log in and comment your thoughts
分享Share






































































































