左域之上 | 碧桂园美式别墅
长沙/室内设计师/6年前/2885浏览
版权
左域之上 | 碧桂园美式别墅
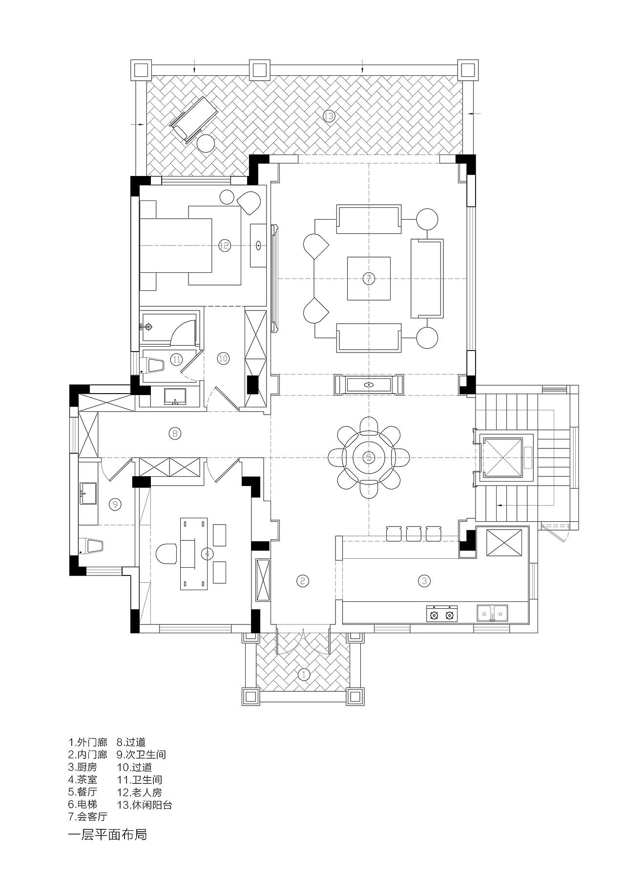
概述:本案是一个独栋的现代美式风格别墅设计,房主本身是饱读诗书的成功人士,经常游走世界各地去观光名胜古迹的风土人情,对美的追求也有自己独到的见解;喜欢美式风格的文化感跟贵气感,自在感与情调。最后确定了现代美式风格的设计定位,在满足最基本的功能分区和合理布局的基础上,美式居家自由随意,简洁怀旧,实用舒适;暗棕,土黄为主的自然色彩,运用深沉的蓝调点缀,使整个空间感人而温馨。
13
Report
声明
70
Share
相关推荐
in to comment
Add emoji
喜欢TA的作品吗?喜欢就快来夸夸TA吧!
You may like
相关收藏夹
Log in
13Log in and synchronize recommended records
70Log in and add to My Favorites
评论Log in and comment your thoughts
分享Share




























































































