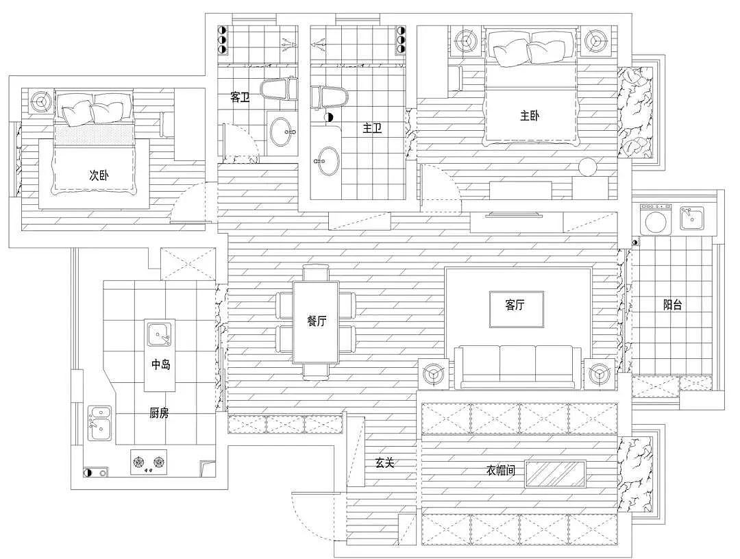
头一次见衣帽间不装柜门,朋友进门一看惊呆!
郑州/室内设计师/6年前/167浏览
版权
头一次见衣帽间不装柜门,朋友进门一看惊呆!
0
Report
声明
1
Share
相关推荐
in to comment
Add emoji
喜欢TA的作品吗?喜欢就快来夸夸TA吧!
You may like
相关收藏夹
Log in
推荐Log in and synchronize recommended records
1Log in and add to My Favorites
评论Log in and comment your thoughts
分享Share






















































































