重庆首钢美利山82平三居室北欧风格装修实景案例
重庆/室内设计师/6年前/83浏览
版权
重庆首钢美利山82平三居室北欧风格装修实景案例
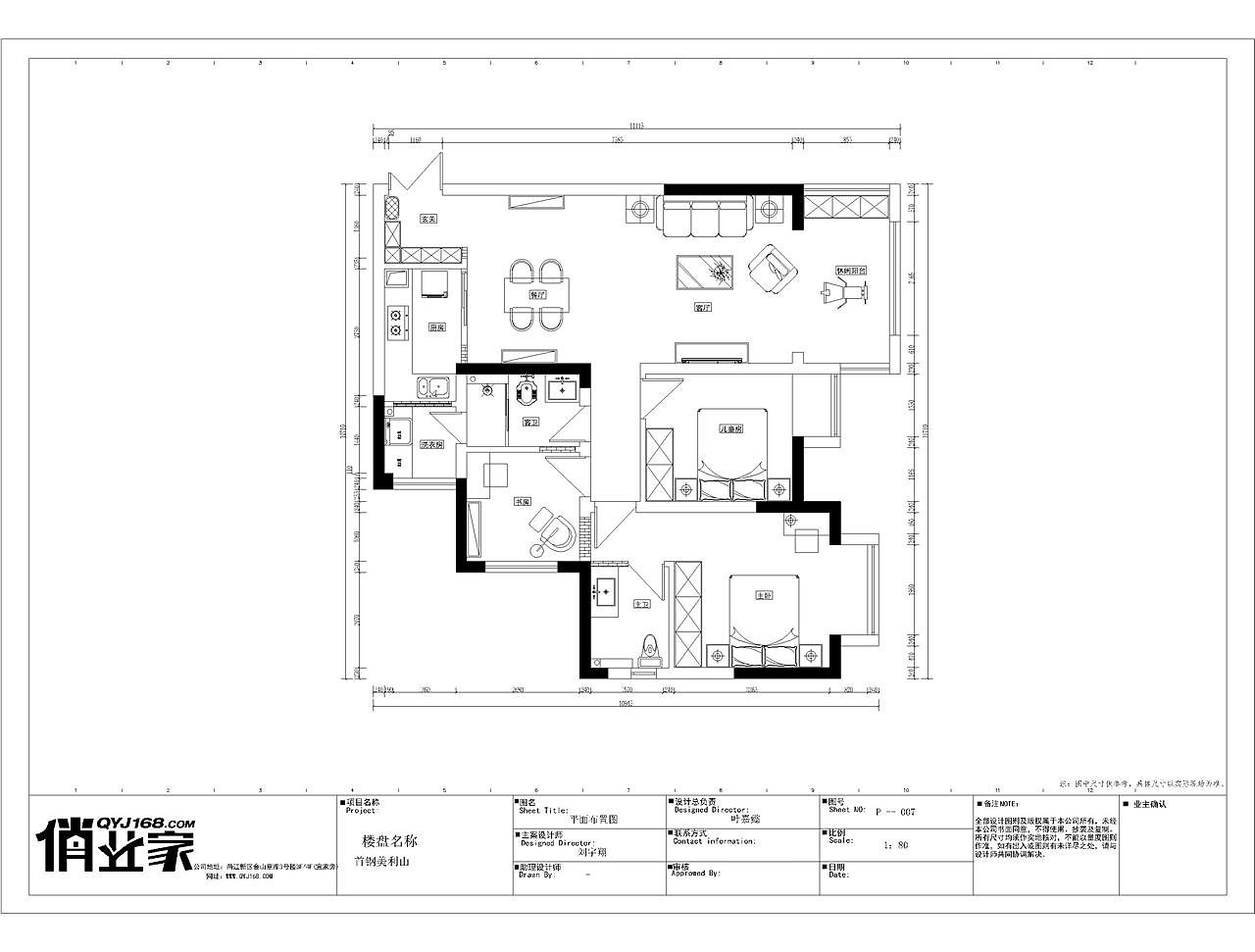
重庆俏业家装饰公司作为全案设计领先品牌,特别采用“总监负责、主案实施、助理协助”的团队设计服务模式,为你的新家集思广益,个性定制私享空间,打造新房精品工程。本实景案例是重庆俏业家装饰设计师为首钢美利山的三室户型专门打造的现代北欧风格装修案例。
——重庆首钢美利山案例内容详情——
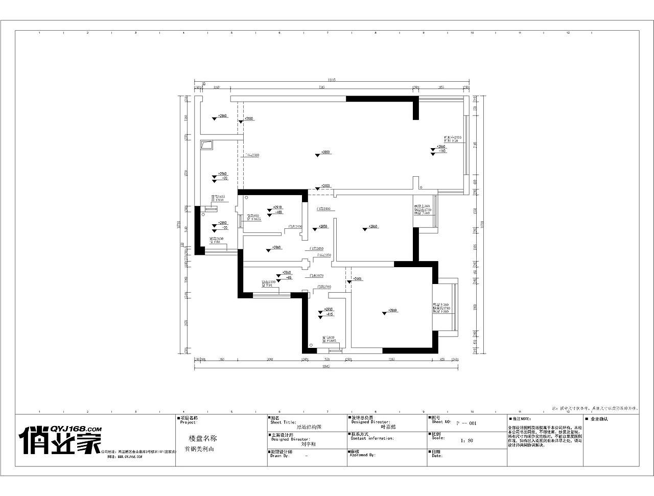
楼盘:重庆首钢美利山
区域:重庆市渝北区鸳鸯
面积:82.4平
户型:三居室
装修风格:北欧装修
设计总监:叶嘉懿
主案设计师:刘宇翔
软装设计师:苗雪颖
【业主需求】
3口之家,次卧室要上下床,方便长辈照顾宝宝。另一个次卧前期当书房,宝宝长大了后,也可单独作为一个房间。厨房可以小点,但必须要生活阳台,考虑要洗衣机和烘干机。景观阳台必须保留,前期放置宝宝的爬爬垫,后期用来放健身器材。
【设计灵魂】
充分考虑环保,实用,美观为先决条件,再达到光影的塑造,实现空间的和谐。
【细节刻画】
1、客厅装修:本案主要色调为原木色、白色,细节搭配一些亮色营造出柔和的美感,让人觉得非常舒服。家具方面选用简约的样式,结合绿植和粉色火烈鸟装饰画的点缀,可以说是青年人非常喜欢的类型。花费不多,效果却出奇的好,性价比超高。
2、餐厅装修:餐厅、客厅两个空间没有明显的分界,但设计师在一些细节上做隔断区分空间。我们可以看到的绿植和斗柜,都是一些不显眼的软隔断。
3、厨房装修:业主家的厨房比较小,又不愿意取消生活阳台。所以选择了这款大方的L型橱柜。嵌入式的洗碗机不会占用其他位置,很适合小户型人家。
4、卧室装修:摒弃复杂的装饰和浮夸的设计,致力于打造出轻松的休息空间,将飘窗打掉后,主卧活动空间也更大。床头的火烈鸟装饰画是北欧风装饰的大热选择,很可爱却不失气质,让整个空间于简约中多了清新之感。
5、书房装修: 考虑到现在的书房未来会成为孩子的卧室,设计师选择清新的配色,小巧简洁的可移动家具,更符合业主需求,方便业主后期小改。
6、卫生间装修:卫生间选用布局合理的三分离设计,做好干湿分离,让小户型卫生间使用的时候也可以很舒心。而且选用悬空洗手台,盆下方的留空空间非常适合用来放塑料水盆和小板凳,非常实用。
看到这里,是不是有些了解现代北欧风格装修,免费获取俏业家装饰设计大咖同款设计,请访问俏业家装饰官网。
0
Report
声明
收藏
Share
相关推荐
in to comment
Add emoji
喜欢TA的作品吗?喜欢就快来夸夸TA吧!
You may like
相关收藏夹
Log in
推荐Log in and synchronize recommended records
收藏Log in and add to My Favorites
评论Log in and comment your thoughts
分享Share
























































































