福州艺术家园——方案效果图
福州/室内设计师/6年前/290浏览
版权
福州艺术家园——方案效果图
坐标:福州艺术家园
11月1日量完房后至今终于好了,其方案形成过程中对布局、材质、色调的各种纠结都已消散,剩下的仍是对破电脑的无尽埋怨。
有一天,我在网上浏览案例时,看到一组图,很漂亮,是无锡太湖剧院。(案例链接:无锡太湖剧院 / Steven Chilton Architects - 谷德设计网 https://www.gooood.cn/wuxi-taihu-show-theatre-by-steven-chilton-architects.htm)
浏览完了我突然想到一句话,“神祇高高在上,而人宛如蝼蚁”。
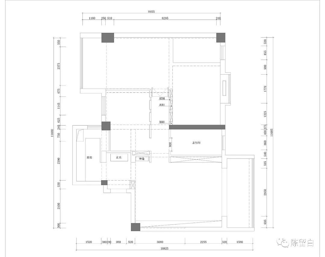
然后我就想用它,想把它用在方案里面,作为神祇居住的地方——神龛。
于是思路渐渐清晰,为了配合这个装置,接着就想到了秩序、围和,人嘛,活在秩序当中。所以在方案中用了很多有序列感的东西,空间围合程度较强。得益于房子采光手段多,整个隔墙形成之后室内不会太暗。
能不落地的东西,尽量不落地......
空间中使用很多感觉起来很“硬”的东西,比如金属、石材、光面烤漆板,一开始墙面也是用比较硬的材质,转念一想,我又不是钢铁直男,遂改成了比较软的墙布,中和一下,整体看起来硬硬朗朗(lānglāng)的,又不失一点温柔......
3
Report
声明
2
Share
相关推荐
in to comment
Add emoji
喜欢TA的作品吗?喜欢就快来夸夸TA吧!
You may like
相关收藏夹
Log in
3Log in and synchronize recommended records
2Log in and add to My Favorites
评论Log in and comment your thoughts
分享Share



























































































