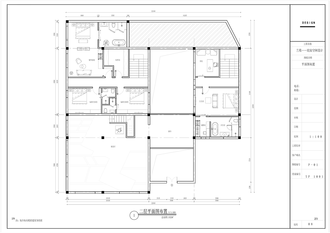
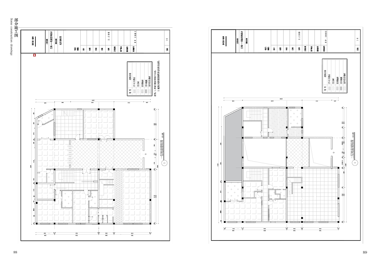
兰苑——民宿空间设计
广州/设计爱好者/7年前/18866浏览
版权
兰苑——民宿空间设计
本案设计中,在一定的空间范围内扩大了对“家”的概念。结合中式,原木,时尚等元素,运用新旧材料对民宅的改造和保留,深层次地体现出对沙湾兰花文化的喜爱以及传统民间文化传承的反思,也是一种对于岭南文化更深层次的学习与研究。
改造不是推到重来,而是用简单的方法,重现古建的美观。
老房子的装修是一次与历史的对话,城市里越来越多的人独居老年,通过对老宅的改造,创造一个没有隔阂的空间,使人与人、人与自然能够产生沟通。让民间传统文化的历久不衰,将兰花文化与传统特色的建筑融合起来,让民宿实现其文化价值。
95
Report
声明
271
Share
相关推荐
in to comment
Add emoji
喜欢TA的作品吗?喜欢就快来夸夸TA吧!
You may like
相关收藏夹
Log in
95Log in and synchronize recommended records
99+Log in and add to My Favorites
评论Log in and comment your thoughts
分享Share




























































































































