除了效果图还有你不知道的装修小知识
成都/室内设计师/7年前/67浏览
版权
除了效果图还有你不知道的装修小知识
1.原始测量图
装修第一步就是量房和绘制原始的户型图
原始建筑测量图包括以下几点:
1.房间的具体尺、墙体的厚度、层高;
2、房间梁柱的位置和尺寸、门窗洞口的尺寸位置;
3、各项管井(上下水、煤气管道、空调暖管、进门电源)的位置、功能、尺寸等项目;
4、标明承重墙。
原始的测量图是设计图纸的基础,一般由设计师带队去现场测量。如果一开始的测量图纸出现偏差,此后的设计图纸和施工都会因此出现误差,导致整个工程无法正常进行。因此要重视原始测量图的制作。
二、平面布置图
平面布置图展现了对空间的划分和功能布局,是设计最基础也是重要的阶段。设计师通过平面布置图把你对居住空间的需求反应到图纸中,找到最合理的解决和利用方案。
其中应具备:
1、墙体定位尺寸,有结构柱、门窗处应注明宽度尺寸;
2、各区域名称要注全,如客厅、餐厅、休闲区等;
3、室内外地面标高、墙体厚度应注明;
4、如有楼梯,标明平面位置的安排、上下方向示意及梯级计算;
5、门的开启方向,家具的布置;
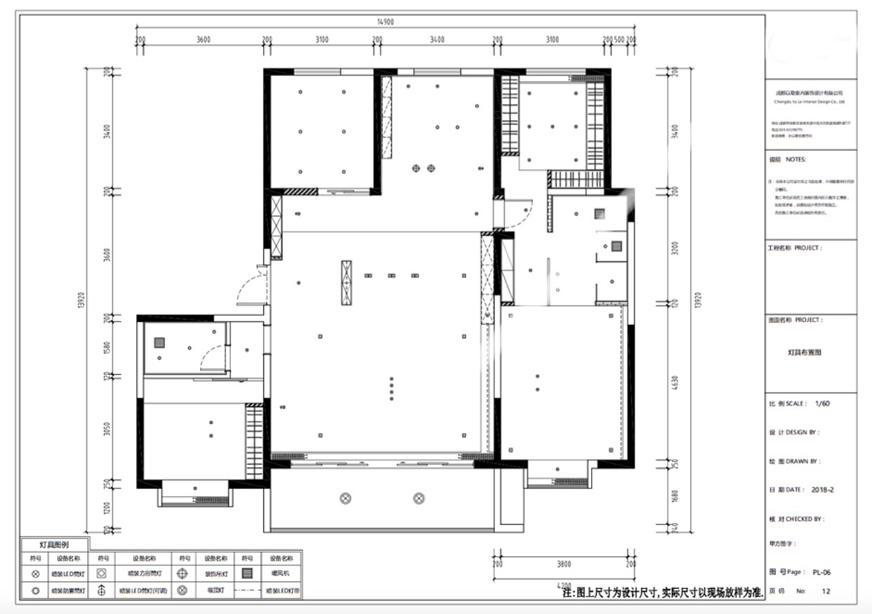
三、天花吊顶布置图
天花吊顶布置图是天花吊顶装修项目中最重要的图纸之一。展现了天花吊顶的设计布置。
图纸包含:
1、天花造型的尺寸定位、灯具位置及详图索引;
2、标注天花底面相对于本层地面建筑面层的高度,同时还要注全每个名称;
四、地面材质图
地面材质图,顾名思义是关于地面材质的任何内容的。
它要求标明:
1、需要铺设的地面材料种类;
2、地面拼花、材料尺寸及不同材料分界线;
五、在设计师做出的平面方案得到业主认同后,就需要开始制作效果图了,也叫透视图。效果图因其直观、逼真的三维立体效果图,更便于普通消费者理解设计方案,就是大家最常见的那种,一眼就能看出未来装修是什么样;
0
Report
声明
1
Share
相关推荐
in to comment
Add emoji
喜欢TA的作品吗?喜欢就快来夸夸TA吧!
You may like
相关收藏夹
Log in
推荐Log in and synchronize recommended records
1Log in and add to My Favorites
评论Log in and comment your thoughts
分享Share




















































































