南舍空间实景作品--城光

用户头像
南京/室内设计师/8年前/597浏览
南舍空间实景作品--城光
用户头像
吴艳丽
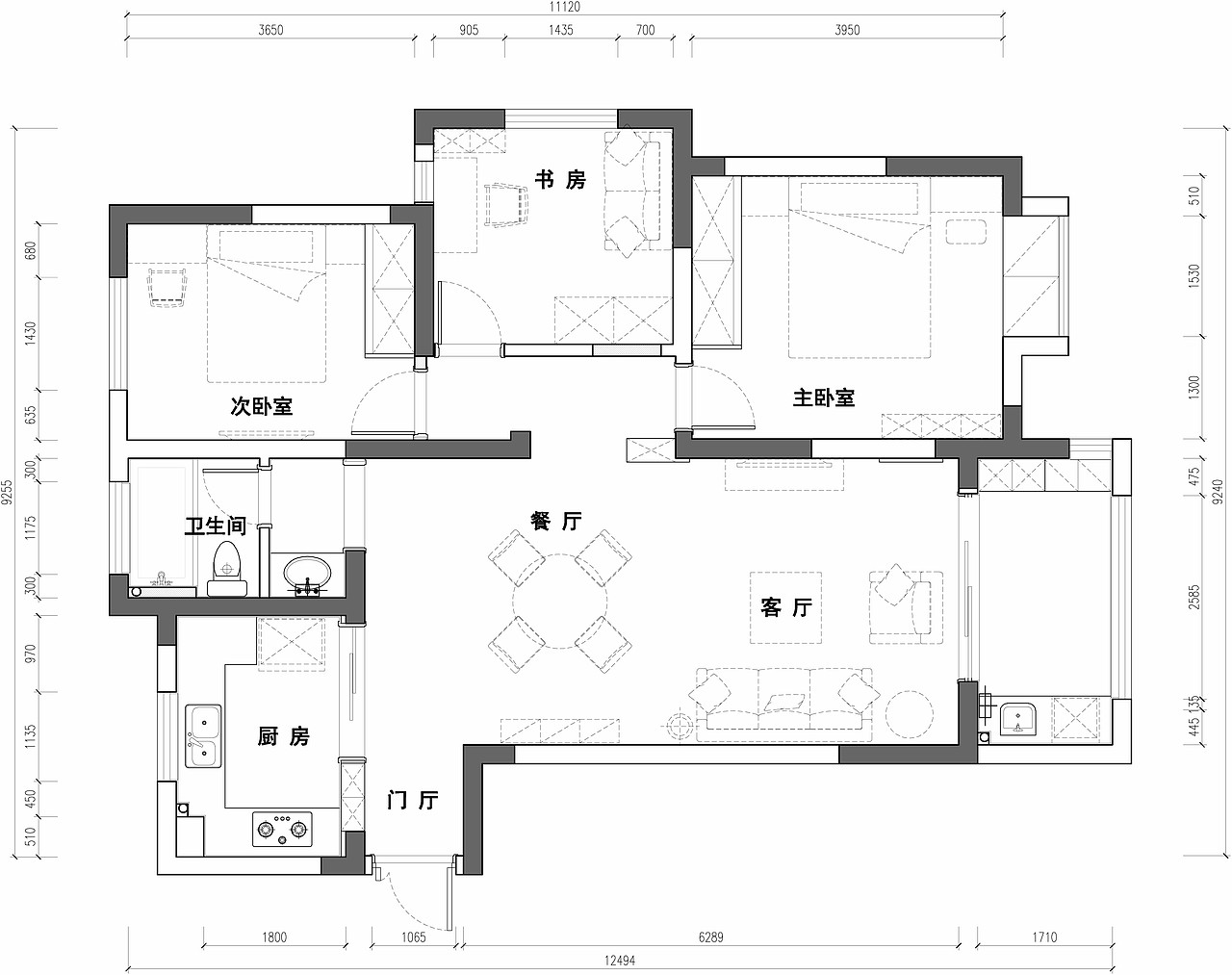
项目名称:城光
项目地址:江月府
项目面积:104平
项目风格:北欧原木风
初次接触这对90后小夫妻的时候,话语间就能够感受到他们十分懂得生活,关于未来的家小两口已经做了不少功课,MM很喜欢MUJI风,几次沟通下来,基调定在北欧原木,清新自然风。
南舍空间实景作品--城光(图ZOTg2ODk0Mjg=) - 家装设计 - 站酷设计师吴艳丽原创素材 - 站酷ZCOOL
Collect
南舍空间实景作品--城光(图ZOTg2ODkwMzY=) - 家装设计 - 站酷设计师吴艳丽原创素材 - 站酷ZCOOL
Collect
南舍空间实景作品--城光(图ZOTg2OTA2NDQ=) - 家装设计 - 站酷设计师吴艳丽原创素材 - 站酷ZCOOL
Collect
南舍空间实景作品--城光(图ZOTg2OTAyNDg=) - 家装设计 - 站酷设计师吴艳丽原创素材 - 站酷ZCOOL
Collect
南舍空间实景作品--城光(图ZOTg2OTA5NTY=) - 家装设计 - 站酷设计师吴艳丽原创素材 - 站酷ZCOOL
Collect
南舍空间实景作品--城光(图ZOTg2ODk1Njg=) - 家装设计 - 站酷设计师吴艳丽原创素材 - 站酷ZCOOL
Collect
南舍空间实景作品--城光(图ZOTg2ODk3MTI=) - 家装设计 - 站酷设计师吴艳丽原创素材 - 站酷ZCOOL
Collect
南舍空间实景作品--城光(图ZOTg2ODk3MDQ=) - 家装设计 - 站酷设计师吴艳丽原创素材 - 站酷ZCOOL
Collect
南舍空间实景作品--城光(图ZOTg2OTA2MzY=) - 家装设计 - 站酷设计师吴艳丽原创素材 - 站酷ZCOOL
Collect
南舍空间实景作品--城光(图ZOTg2OTAyMjg=) - 家装设计 - 站酷设计师吴艳丽原创素材 - 站酷ZCOOL
Collect
南舍空间实景作品--城光(图ZOTg2OTA0MzY=) - 家装设计 - 站酷设计师吴艳丽原创素材 - 站酷ZCOOL
Collect
南舍空间实景作品--城光(图ZOTg2ODk5NDg=) - 家装设计 - 站酷设计师吴艳丽原创素材 - 站酷ZCOOL
Collect
南舍空间实景作品--城光(图ZOTg2OTAxNjA=) - 家装设计 - 站酷设计师吴艳丽原创素材 - 站酷ZCOOL
Collect
南舍空间实景作品--城光(图ZOTg2OTA2MzI=) - 家装设计 - 站酷设计师吴艳丽原创素材 - 站酷ZCOOL
Collect
南舍空间实景作品--城光(图ZOTg2OTA1MTY=) - 家装设计 - 站酷设计师吴艳丽原创素材 - 站酷ZCOOL
Collect
4
Report
|
7
Share
评论
用户头像
in to comment
Add emoji
喜欢TA的作品吗?喜欢就快来夸夸TA吧!
推荐素材
Log in