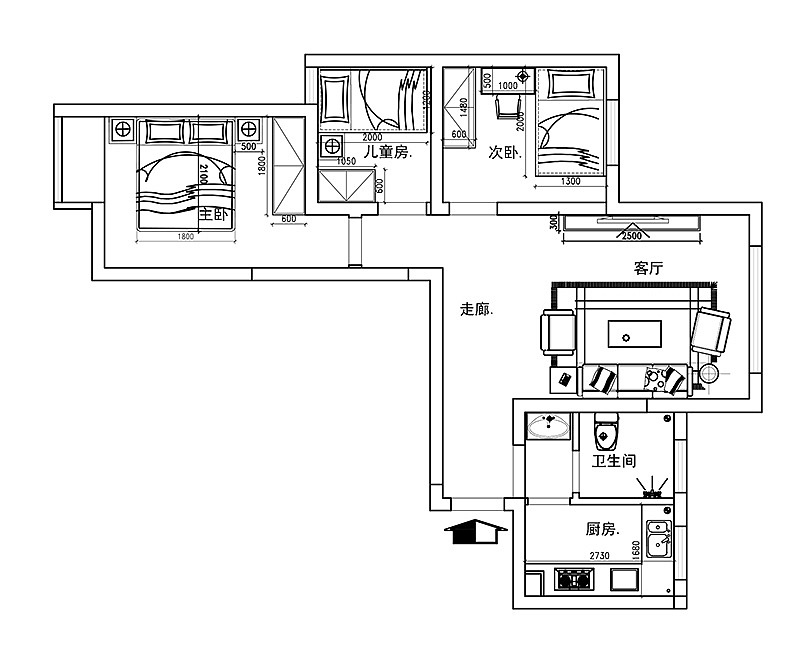
千鹿山140平简欧风格复式装修需要多少钱
郑州/平面设计师/8年前/64浏览
版权
千鹿山140平简欧风格复式装修需要多少钱
0
Report
声明
32
Share
相关推荐
in to comment
Add emoji
喜欢TA的作品吗?喜欢就快来夸夸TA吧!
You may like
相关收藏夹
Log in
推荐Log in and synchronize recommended records
32Log in and add to My Favorites
评论Log in and comment your thoughts
分享Share





















































![AIGC助力电商视觉×头盔系列AI生成 [动态化探索实践]](https://img.zcool.cn/community/68e8da720067cv09d9quve1777.png?x-oss-process=image/resize,m_fill,w_520,h_390,limit_1/auto-orient,1/sharpen,100/quality,q_80)



























