健达西西湖A户型135平三室两厅现代简约装修案例
郑州/网页设计师/8年前/41浏览
版权
健达西西湖A户型135平三室两厅现代简约装修案例
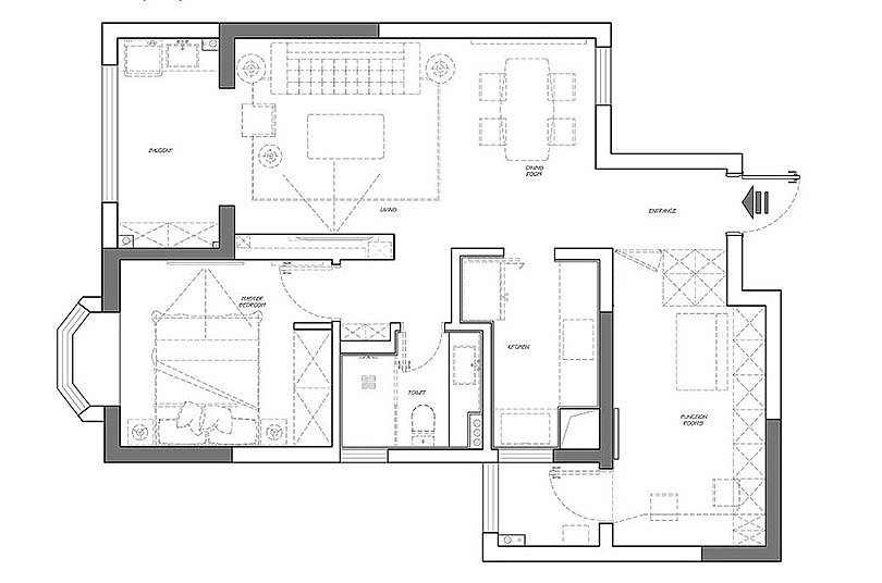
健达西西湖136平三室两厅现代简约装修效果图,整体风格定位为后现代简约风,业主追求个性 ,那我们就打破常规布局,拆除所有能拆的墙壁,后期重建。功能分区合理让业主满意是设计的精髓。整体设计黑与白是重要的色彩组成部分,去除繁琐,去除杂乱,去除其他惹眼的跳色,追求个性与时尚的同时也渴望质朴的生活情调。
小区名称: 健达西西湖
小区户型: 9号楼
案例户型: 三室两厅两卫
装修风格: 现代简约
装修套餐: 528套餐
小区面积: 136平方
套餐造价: 9.80万
个性造价: 11000.00元
工程造价: 10.90万
设计师: 高雲
0
Report
声明
收藏
Share
相关推荐
in to comment
Add emoji
喜欢TA的作品吗?喜欢就快来夸夸TA吧!
You may like
相关收藏夹
Log in
推荐Log in and synchronize recommended records
收藏Log in and add to My Favorites
评论Log in and comment your thoughts
分享Share






















































































