“高冷”的混搭空间设计方案
桂林/室内设计师/8年前/363浏览
版权
“高冷”的混搭空间设计方案
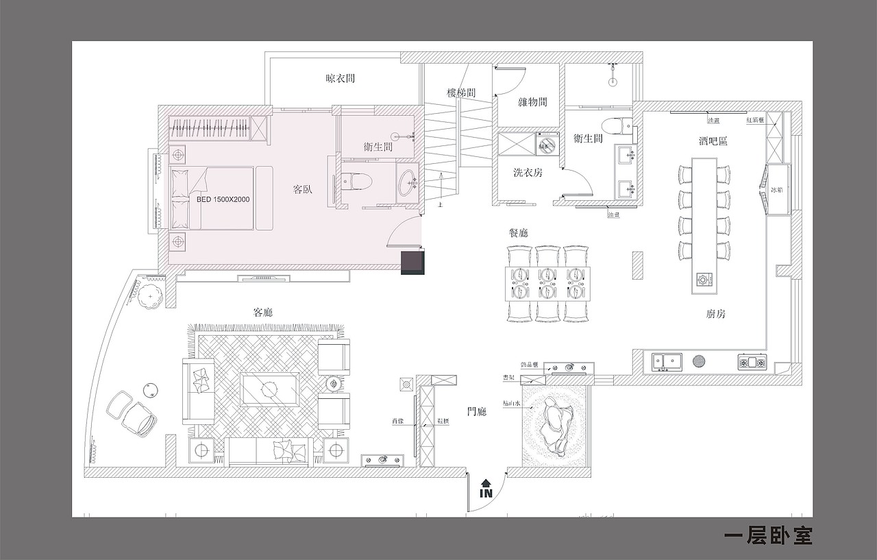
两年前的作品,一位90后小姐姐的混搭空间设计方案。很难得遇见这样完全信赖设计师的业主。好的业主成就好的设计作品。
3
Report
声明
3
Share
相关推荐
in to comment
Add emoji
喜欢TA的作品吗?喜欢就快来夸夸TA吧!
You may like
相关收藏夹
Log in
3Log in and synchronize recommended records
3Log in and add to My Favorites
评论Log in and comment your thoughts
分享Share




























































































































