北欧-极简
常德/室内设计师/8年前/17336浏览
版权
北欧-极简
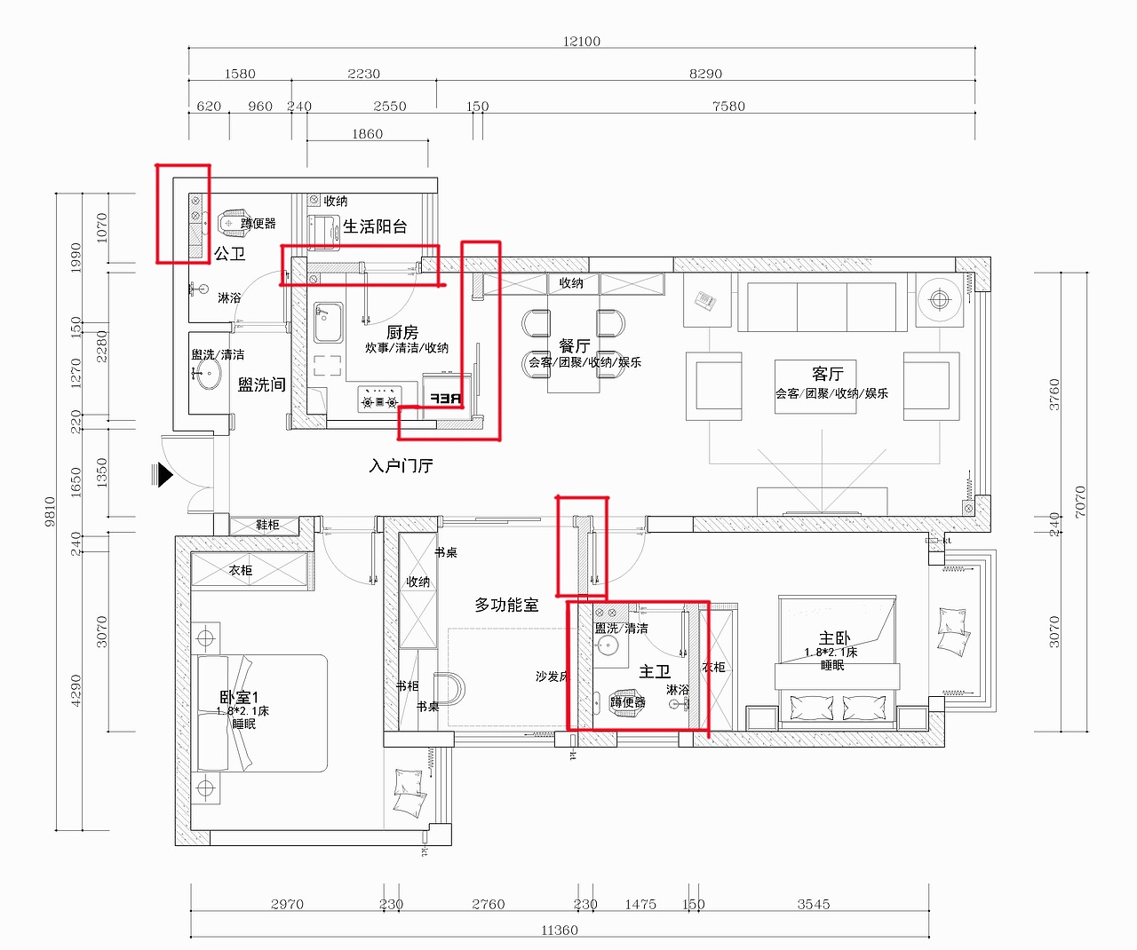
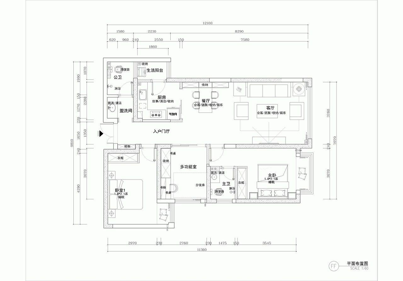
案将设计的元素、色彩、照明、原材料简化到最少的程度,选择木地板、质感涂料等,构建一个自在与宁静的简约之家。
126
Report
声明
153
Share
相关推荐
in to comment
Add emoji
喜欢TA的作品吗?喜欢就快来夸夸TA吧!
You may like
相关收藏夹
Log in
99+Log in and synchronize recommended records
99+Log in and add to My Favorites
评论Log in and comment your thoughts
分享Share


























































































