绿地海珀兰轩156平三室两厅现代简约风格装修案例
郑州/平面设计师/8年前/73浏览
版权
绿地海珀兰轩156平三室两厅现代简约风格装修案例
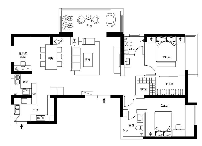
本案的居住者是一对40岁的夫妻和一个10岁的女儿,客户因业务需要,时有交谊与公务的需求,特别需要一大气却功能丰富的客厅空间,活络人际对话。设计师跟客户沟通之后,决定对房屋空间进行改造,把客餐厅及中厨、西厨融合到一个空间,通过顶面进行无形分割,尽量把公共空间最大化,既能解决客户日常使用需求,又可以满足朋友欢聚时各个空间自由互动。
0
Report
声明
收藏
Share
相关推荐
in to comment
Add emoji
喜欢TA的作品吗?喜欢就快来夸夸TA吧!
You may like
相关收藏夹
Log in
推荐Log in and synchronize recommended records
收藏Log in and add to My Favorites
评论Log in and comment your thoughts
分享Share





















































































