杭州普通住宅案例-东方御府普通住宅效果图-新古典风格
杭州/设计爱好者/8年前/68浏览
版权
杭州普通住宅案例-东方御府普通住宅效果图-新古典风格
杭州普通住宅案例-东方御府普通住宅效果图-新古典风格
设计师:高志华
案例风格:新古典
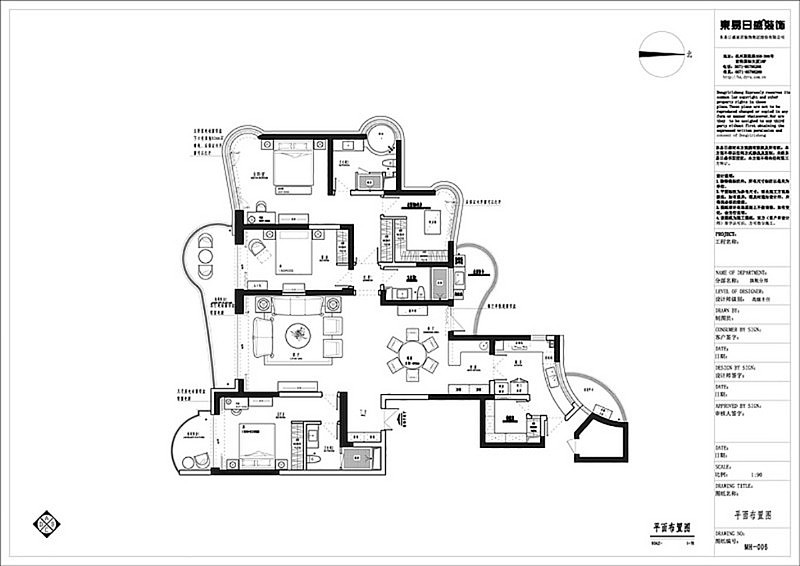
案例户型:普通住宅
案例面积:240
TEL:400-0571-868
设计理念: 无论是历史悠久的传世建筑还是经典的艺术作品,经得起潮流考验的深度美感与内在的高品位气质,才是它们跨越时间得以长存的两大特征。虽然是人们实际居住的生活场景,一但透过设计者对于美感的独特表述,加上灵活的材质运用和完美的视觉比例适当辅助,精彩呈现低调奢华无论是历史悠久的传世建筑还是经典的艺术作品,经得起潮流考验的深度美感与内在的高品位气质,才是它们跨越时间得以长存的两大特征。虽然是人们实际居住的生活场景,一但透过设计者对于美感的独特表述,加上灵活的材质运用和完美的视觉比例适当辅助,精彩呈现低调奢华之外的名家向度。整个空间的设计都透露出一种低调奢华的高品质的气息,整个方案在设计中运用暖咖色为主的主旋律展开,设计手法从最基本的人体工程学的舒适角度出发,每个环节都流露出高雅的气质,加以完美的智能家用电子设备的融合在一起,流露出高品位的人性化舒适感,很快能感觉到享受这舒适的生活 感觉翩翩起舞,油然而生。
0
Report
声明
收藏
Share
相关推荐
in to comment
Add emoji
喜欢TA的作品吗?喜欢就快来夸夸TA吧!
You may like
相关收藏夹
Log in
推荐Log in and synchronize recommended records
收藏Log in and add to My Favorites
评论Log in and comment your thoughts
分享Share




















































































