西安工程大学(临潼校区)文体中心建筑方案设计(竞赛二等奖)
上海/建筑师/9年前/6199浏览
版权
西安工程大学(临潼校区)文体中心建筑方案设计(竞赛二等奖)
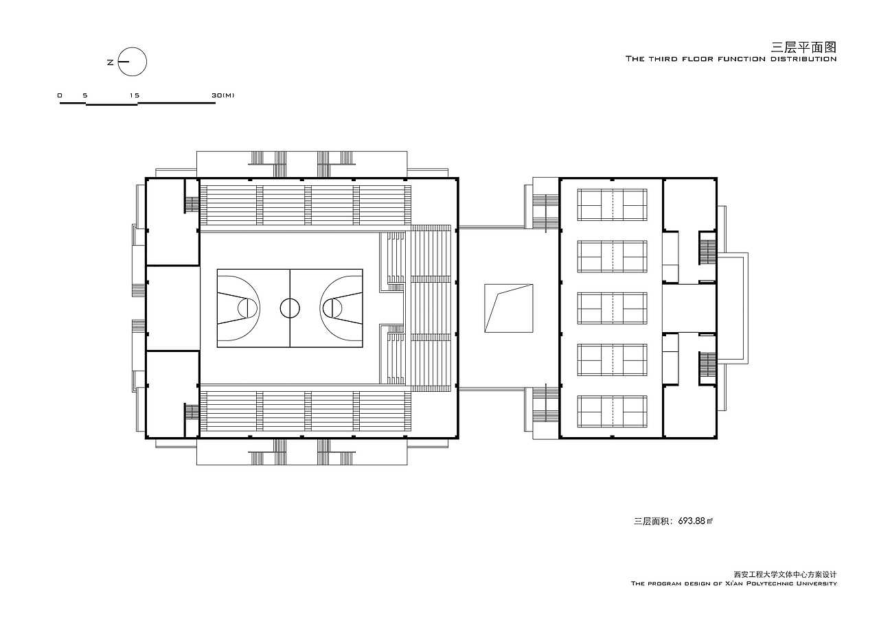
本案文体中心设计是集合了多种功能的综合性场馆,除了满足学生体育活动、体育比赛、军训汇报、作品展示、毕业典礼、文艺表演、纪念庆典、报告会和娱乐活动的需要,还设置了小型训练和比赛场馆及接待办公用房。
传统方正的建筑平面使建筑内部空间利用率大大提高,体育活动与文化活动形成两个建筑体,中间进行联通,使两个不同功能的文体活动相互联系起来,通过现代坡屋顶的形式与新型太阳能板技术,对建筑屋面排水与内部供电起到良好的作用,同时形成了大气、古朴的整体建筑形态。
36
创作信息
Report
声明
54
Share
相关推荐
in to comment
Add emoji
喜欢TA的作品吗?喜欢就快来夸夸TA吧!
You may like
相关收藏夹
Log in
36Log in and synchronize recommended records
54Log in and add to My Favorites
评论Log in and comment your thoughts
分享Share



















































































































