Explore
AI Agent
AI Learning
Find Jobs
Find Designers
Find Assets
Log in
Sign up
1.3.70
All
Assets
Retouching
Picture
Collections
Designers
版权图库
课程
以图搜图
美巢装饰世男
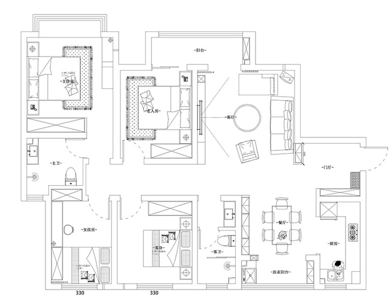
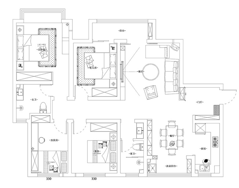
正商林语溪岸 122平方 三室两厅装修简欧风格效果图
Collect
郑州美巢装饰
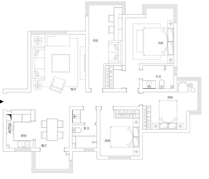
郑州美巢龙翔嘉苑150平四室两厅装修现代风格效果图
Collect
设计师颖少
贵州遵义-幸福家园(新中式风格)
Collect
美巢装饰小灰灰
郑州龙翔嘉园150平四室两厅现代简约装修案例效果图
Collect
美巢装饰花园路店
龙翔嘉苑150平四室两厅现代简约风格装修案例欣赏
Collect
美巢设计陈保全
龙翔嘉苑四室两厅样板间装修设计图现代简约风格赏析
Collect
美巢装饰小灰灰
海龙香槟大道华城190平四室两厅装修效果图
Collect
装修课堂
郑州银基王朝195平新古典装修案例赏析
Collect
美巢装饰花园路店
中海锦苑装修效果图140平四室两厅现代简约风格设计方案
Collect
扮家家室内设计网
130㎡好色空间,美观与实用兼得!
Collect
郑州美巢装饰
郑州建业比华利庄园145平四室美式乡村风装修效果图
Collect
美巢装饰总部
银基王朝大平层装修,227平简欧风格设计,优雅高尚的生活品味
Collect
室内装修设计管家
郑州银基王朝五室装修效果图欣赏
Collect
美巢装饰花园路店
银基王朝227平五室两厅简欧风格装修需要多少钱
Collect
设计师亚楠
银基王朝227平五室两厅简欧装修案例
Collect
MC设计露露
紫檀华都 138平方 四室两厅 新中式 案例装修效果图
Collect
万泰谢佳乐
济南玉兰花园146平现代风格
Collect
美巢装饰小灰灰
宾悦龙城140四室两厅现代简约风格装修案例
Collect
郑州美巢装饰
海龙香槟大道华城140平装修-护墙板彰显婚房不俗品味
Collect
装修课堂
升龙天汇广场130平三室两厅简欧装修案例
Collect
美巢装饰花园路店
锦绣山河装修效果图140平三室两厅简欧风格设计案例
Collect
美巢装饰花园路店
郑州尚书苑240平大平层新中式风格装修案例欣赏
Collect
美巢设计蒋艳斌
郑州40岁中年男人的追求与向往,138平新中式风格创造一种轻奢与品位共存的悠然生活乐居
Collect
美巢装饰小灰灰
郑州尚书苑240平四室两厅新中式案例装修效果图
Collect
美巢装饰小灰灰
永威迎宾府136平三室两厅新中式装修效果图
Collect
设计师亚楠
郑州永威迎宾府136平三室两厅新中式案例
Collect
室内装修设计管家
金龙紫东郡136平三室装修新中式装修样板间设计
Collect
郑州美巢装饰总店
永威迎宾府三室两厅新中式风格装修效果图
Collect
郑州美巢装饰公司
郑州永威迎宾府装修效果图130平三室两厅新中式样板房设计
Collect