Explore
AI Agent
AI Learning
Find Jobs
Find Designers
Find Assets
Log in
Sign up
1.3.70
All
Assets
Retouching
Picture
Collections
Designers
版权图库
课程
以图搜图
贡德设计
贰零壹柒的遗憾丨徽州餐厅丨
Collect
黍离麦秀
概念碎纸机
Collect
阿泳先生
竹味餐饮
Collect
胡浩浩
室内
Collect
狮子座设计
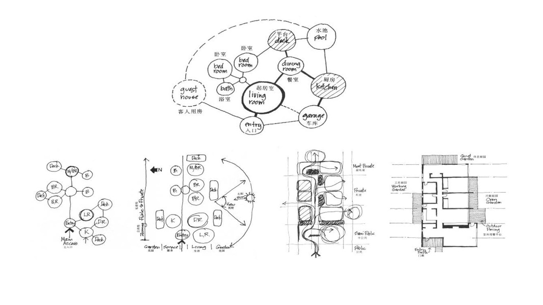
浙江自建房设计,两层半复式楼。狮子座自建房别墅设计
Collect
鲸鱼郑郑
mapping
Collect
品牌设计Calvin
导视系统设计|标识设计|标牌设计
Collect
乌家小龟
家装-汝之蜗居,吾之口粮
Collect
就是要个性
普普风 乐昌大店
Collect
程思思c
施工图||庭院
Collect
做深化天天秃头
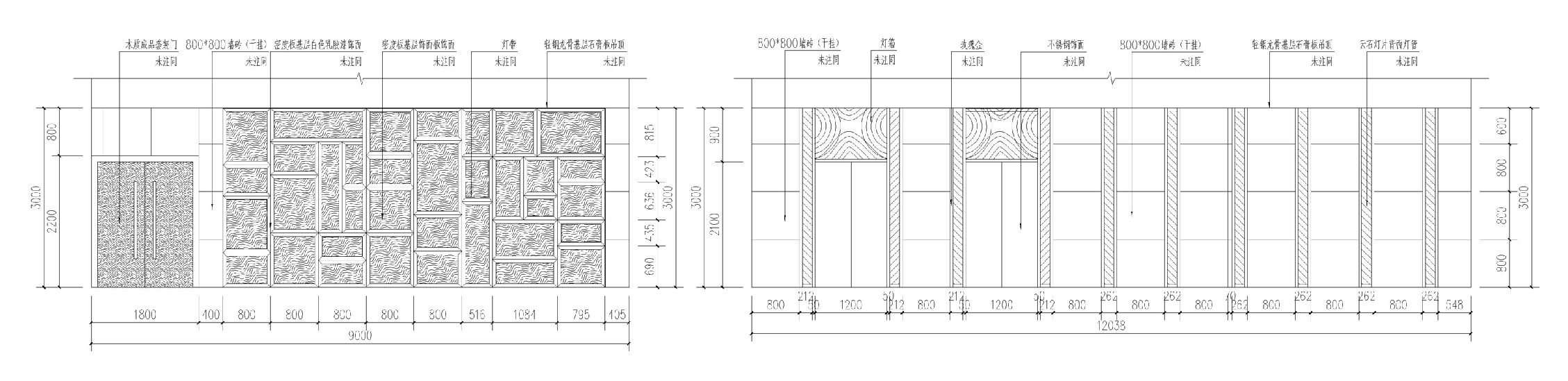
欧式施工图深化图纸部分
Collect
设计师马富彪
红杉设计 | 格调范 - 渣渣火锅店
Collect
Ann娜娜子
全案导视系统设计
Collect
大大大脑袋
两位世界著名设计师简介
Collect
最爱玩的Jason
最近更新的散图
Collect
花脸巴儿
花园城
Collect
XIAO494064461
普普风/乐昌大店
Collect
XIAO494064461
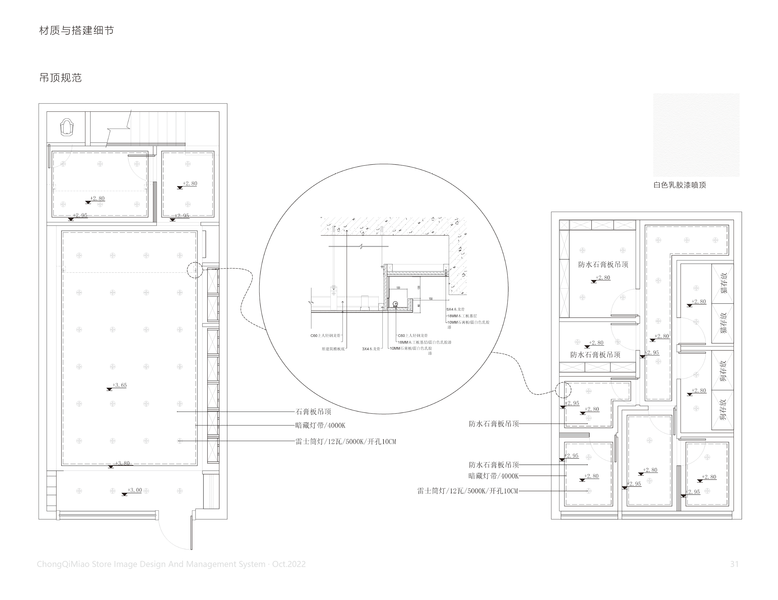
普普风/兰州八代形象店
Collect
笛宴
智能香薰机盒子
Collect
陈尘辰
长三角铁路LOGO文创
Collect
安徽三口设计培训
合肥零基础室内设计培训平面设计培训 效果图培训机构
Collect
程思思c
施工图||庭院施工图
Collect
就是要个性
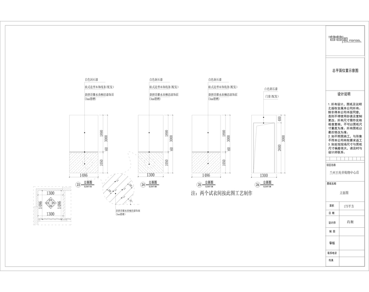
普普风 兰州加盟八代形象
Collect
云南汉森设计
云南省昆明市富民麦巢KTV
Collect
图纸美学
上某办公室项目图纸深化
Collect
途XXu
建筑设计作品集
Collect
夕阳阳比较帅
楼体形象字深化
Collect
程思思c
施工图||庭院
Collect
灿灿的昵称
CAD室内设计施工图常用图块图库全类别汇总
Collect