Explore
AI Agent
AI Learning
Find Jobs
Find Designers
Find Assets
Log in
Sign up
1.3.70
All
Assets
Retouching
Picture
Collections
Designers
版权图库
课程
以图搜图
小影的小影
蒲城县城区出入口街景改造提升设计
Collect
小影的小影
蒲城县城区出入口街景改造提升设计
Collect
小影的小影
蒲城县城区出入口街景改造提升设计
Collect
小影的小影
蒲城县城区出入口街景改造提升设计
Collect
小影的小影
蒲城县城区出入口街景改造提升设计
Collect
云南锦泰彩绘
白族民居建筑彩绘——白族文化墙绘
Collect
在下长野
水边中学景观提升设计
Collect
Z16455319
景观设计作品集
Collect
小影的小影
百货大楼立面改造设计
Collect
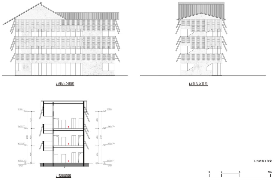
土闰年少
盛兴的在校作品集
Collect
Giulia1221
回龙村幸福社区建设方案
Collect
爱笑的红薯
河畔之梦三期B地块修建性详细规划
Collect
任志远
古乐网大楼
Collect
SEALONDESIGN
(成都)龙湖·芳树晴川环境导视系统设计
Collect
素模网
象山美院4号楼SU模型下载
Collect
集文设计
《湿地公约》
Collect
小影的小影
百货大楼立面改造设计
Collect
诧迹景观
红军酒店、红军纪念馆、红军食堂、赣南游击词纪念园
Collect
YTCHEUNG
今年一个养老院的建筑形态和景观
Collect
诧迹景观
【案例分享】良渚邱家坞大师村,杭州
Collect
稍喜
泉州传统建筑改造-游客中心
Collect
小影的小影
百货大楼立面改造设计
Collect
北山羊
文化中心设计图
Collect
西北酸菜
个人作品集
Collect
长空创作
大理缦山一色海景民宿设计|长空创作
Collect
kukubobo1
中石化大南海回迁工程(设计师吴鹏聪)
Collect
柚俩习
博物馆设计
Collect
小影的小影
百货大楼立面改造设计
Collect
小影的小影
百货大楼立面改造设计
Collect