Explore
AI Agent
AI Learning
Find Jobs
Find Designers
Find Assets
Log in
Sign up
1.3.66
All
Assets
Retouching
Picture
Collections
Designers
版权图库
课程
以图搜图
梁飞
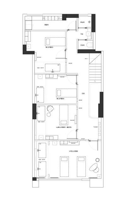
CHAO | 原舍,怀谷。
Collect
梁飞
CHAO | 原舍,怀谷。
Collect
梁飞
CHAO | 原舍,怀谷。
Collect
梁飞
CHAO | 原舍,怀谷。
Collect
愿梦想的光照亮你
室内设计
Collect
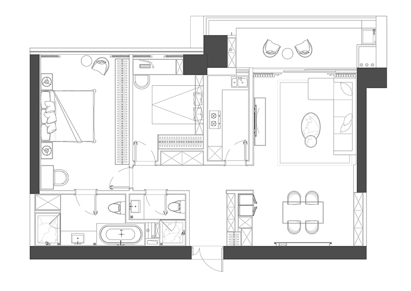
民舍制作空间设计
space 一休阁 SKIN SPA
Collect
夕又设计
蓝宝湾|陈宅
Collect
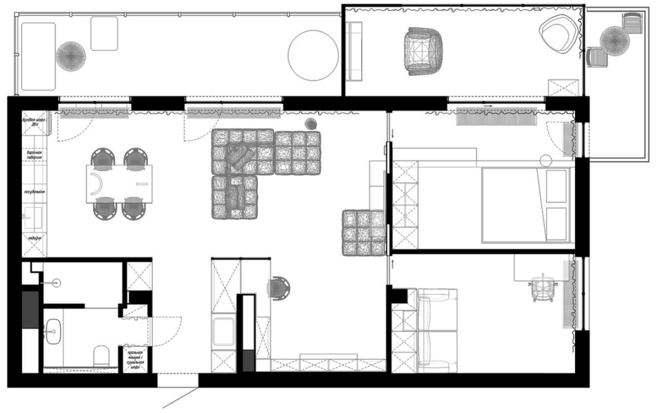
效果图施工图婷婷
72m²演绎唯美loft样板房
Collect
洪丹丹123and
两室一厅的“美术馆”
Collect
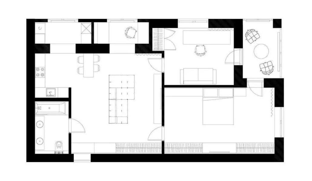
品牌陪伴者
程序猿也如此时髦?这个工业风住宅我爱了
Collect
客服小涵
72㎡演绎唯美loft样板房
Collect
深圳东易日盛
深圳装修:超级蜂巢原创设计首发
Collect
A17730029017
极简致心|敬自由随性的美好生活
Collect
已夏设计
日式loft(民宿)
Collect
红鲤鱼与绿鲤鱼2
京东家装|极简风格设计案例欣赏
Collect
沐晨Bouve
极简主义Minimalism
Collect
隋剑桥
北京 / 有理想的学区房
Collect
漾设计
高级灰+雾霾蓝,打破冬日沉闷,温柔高级!
Collect
党泽一
新作!简约的红!
Collect
设计师Hobo
住宅空间落地实践|家装空间设计
Collect
靠背高端视觉表现
CR9.1现代简约风格
Collect
RefineDesign
79平米私宅
Collect
建筑师孙佳靓
追寻空间的本真 | 清美空间-孙佳靓设计作品
Collect
峰光无限装饰
87㎡轻奢风书房、客餐厨全开放,装出大平层的既视感!
Collect
南京凤朝装饰
45平蓝色系公寓
Collect
涵瑜室内设计
【作品】极简致心|敬自由随性的美好生活
Collect
峰光无限装饰
66㎡一居室,用一抹绿点亮整个空间
Collect
峰光无限装饰
120㎡二居室,适合夫妻居家办公的简约空间!
Collect