Explore
AI Agent
AI Learning
Find Jobs
Find Designers
Find Assets
Log in
Sign up
1.3.70
All
Assets
Retouching
Picture
Collections
Designers
版权图库
课程
以图搜图
汪文華
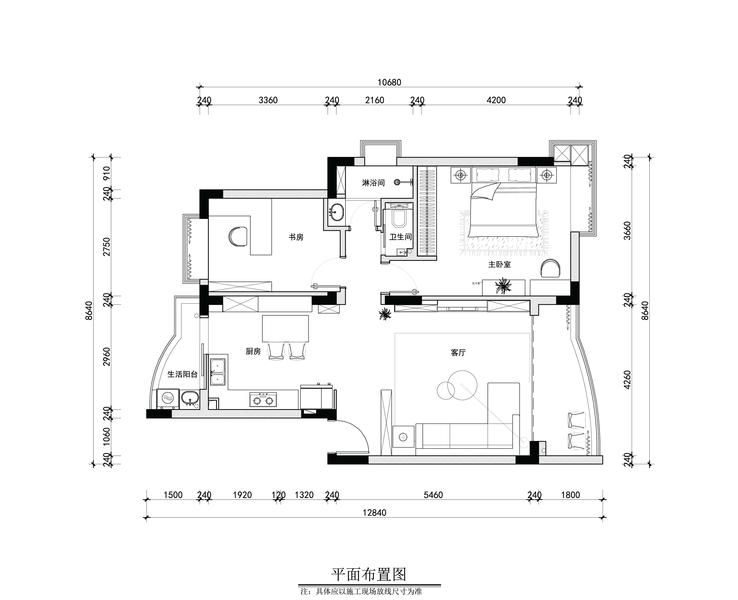
杭州下沙施工项目【施工中】
Collect
郑州美巢装饰
金域蓝湾90平装修-郑州两房竟有不俗的美洲风情
Collect
刘壮实Mr
郑州乐豪斯| 110平美式~
Collect
私想1984
清新简洁的北欧居家空间
Collect
私想1984
现代简约的居家空间!
Collect
大大大白天
灰色主义
Collect
赵宾
山西阳城环城福邸欧式别墅设计
Collect
周奈一
家装施工图节选
Collect
私想1984
平静和浪漫地中海居家空间
Collect
峰喵
龙湖·两江新宸 美式别墅 软装设计
Collect
AKERS666
【室内设计】一个月前的作品!自学成果
Collect
私想1984
中式风格的居家
Collect
ry82766883
室内设计效果图
Collect
Bonnie莹
方案布局讲解
Collect
室内装修设计管家
瑞士酒店公寓90平三室装修简欧风格装修样板间设计
Collect
乐一Lit
全屋定制-原木风自然
Collect
脑子乱想家
LOFT 旧工业风的绿盒子公社
Collect
维尔维尔
雍江御庭 风格:欧式│面积:127m2
Collect
AKERS666
【室内设计】8月份的作品
Collect
合肥迷屋设计
餐厅不大,如何设计才显宽敞?
Collect
峰光无限装饰
90㎡现代简约风格新房装修,卧室内置衣帽间太美了!
Collect
安徽三口设计培训
合肥家装设计培训机构哪家教的比较专业
Collect
成都业之峰吴小奇
【装修案例】龙湖九里晴川127平米新中式风格装修
Collect
安徽三口设计培训
合肥零基础学室内设计到哪学?哪家靠谱
Collect
美巢装饰花园路店
贰号城邦装修效果图140平四室两厅新古典风格设计方案
Collect
美巢装饰世男
联盟新城450平别墅装修新中式效果图
Collect
安徽三口设计培训
安徽哪家3D效果图培训比较好
Collect
Bocean波形设计
90平极简与复古混搭之家
Collect
一方远行
室内设计全案设计布局优化布局改造室内空间效果图
Collect