Explore
AI Agent
AI Learning
Find Jobs
Find Designers
Find Assets
Log in
Sign up
1.3.70
Discover
-
Open collections
-
Collection Detail
展厅
Share
Creator
铭子亲
Create Time:3年前 | Update Time:3年前 | Projects:4 | Followers :
0
Focus on Collections
展厅
Focus on Collections
移除
「维尼塔全屋定制展厅沈阳店」尼根展厅设计
空间-商业空间设计
2438
4
25
二次方神大牙
4年前
移除
天津/苏木匠·谊家全屋定制展厅「二次方神」
空间-商业空间设计
1075
0
2
二次方神大牙
3年前
移除
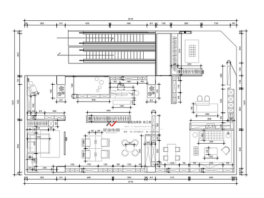
施工图案例|全屋定制展厅图纸
空间-其他空间
463
0
0
苏子叶susu
3年前
移除
科迪亚KORDIA——高端全屋定制店面展厅设计 | 尼根
Recommand
空间-展陈设计
1.9w
12
129
二次方神大牙
5年前