历思设计新作 | 童寓学堂早教中心全案设计
整体空间结合了童真、趣味性,品牌文化。无形的植入到环境空间中,自然纯粹中又不失活力,让整体品牌视觉系统更加协调统一。
父母总对孩子的成长充满了期待。
从孩子咿呀学语,
到蹒跚走路......
每一个时刻都是弥足珍贵的成长。
俯听孩子成长的需要,
与父母一起,
见证孩子成长的每一个惊喜时分,
见证每一个美好的可能,成为童寓学堂的使命。

项目名称 | 童寓学堂早教中心
项目地址 | 广州番禺
建设单位 | 智慧教育集团
设计单位 | 广州历思设计工程有限公司
项目类型 | 文教空间
空间设计 | 薛俊杰、许基智、肖显群
品牌设计 | 陈荣光
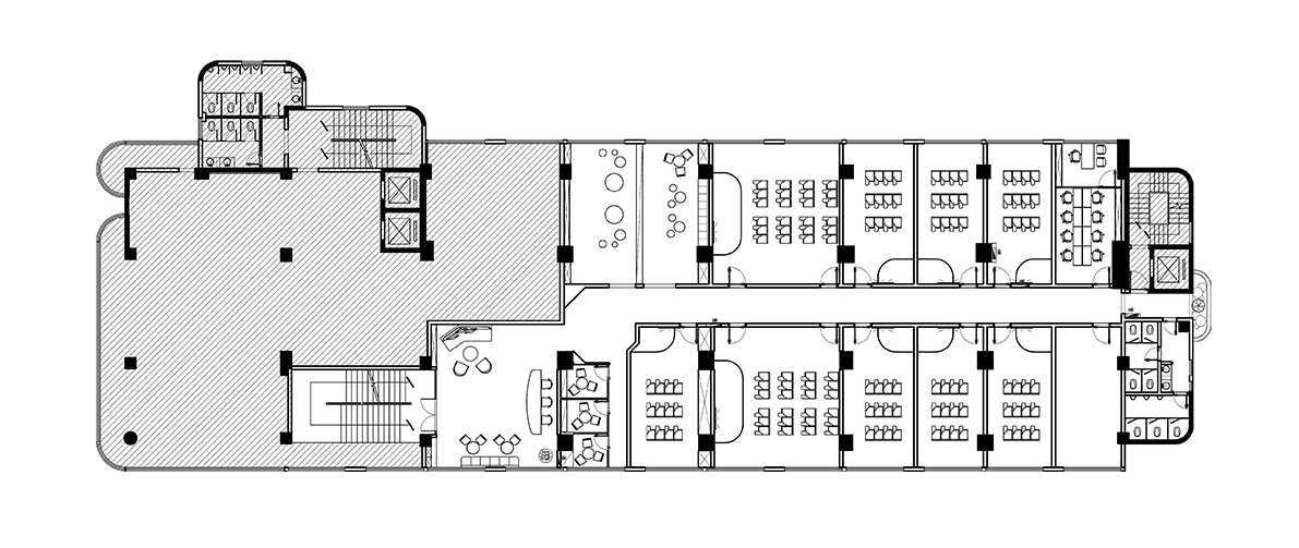
设计面积 | 660㎡
主要材料 | 瓷砖、木饰面、乳胶漆、软膜灯、铝塑板、定制铁艺、玻璃

在项目开始,即进行全面的调研分析,提炼核心价值,塑造出具有国际化、童趣、亲和力作为品牌切入市场的突破点,经历一番深思熟虑和客户沟通后,最终达成共识得出强而有力的品牌定位:国际化人才素质教育基地。
▎品牌VI设计
一个好的品牌一定是一项长期投资。品牌定位和专业形象的树立有利于品牌长期战略的发展。基于对童寓学堂的品牌创建,我们首先从品牌形象角度,给品牌主提出专业建议。

品牌形象塑造
Logo选取云朵作为具象标识,希望用简洁的图形和简单明亮的色彩设计深化品牌记忆点。

以花朵、白云、探索和数字9组成抽象化的图形,引发孩子的好奇;
花朵从播到种细心照料然后到开花结果,需要一个培养过程;表示孩童从咿呀学语到绽放光彩;白云寓意纯洁;探索寓意孩童对未来研究、寻求、求知;
主色调采用橙、黄、绿,橙色寓意创造力;黄色寓意灿烂、辉煌,有着太阳般的光辉,象征着照亮黑暗的智慧之光;绿色寓意生命、希望、自然和成长。







▎环境空间设计
整体空间结合了童真、趣味性,品牌文化,无形植入到环境空间中,
橙、黄、绿色作为品牌的主色调和谐地融入到环境中,
自然纯粹中又不失活力,让整体品牌视觉系统更加协调统一。
让空间变得更加生动、变化多端,
激发孩子与空间的互动,以及与光,色彩,声音,触觉相关的感官知觉,
不断探索促进孩子成长所需的空间环境。

▲入口立面

▲接待大厅

▲洽谈室

▲过道

▲儿童娱乐室

▲家长休息室

▲大教室

▲小教室

▲小教室

▲卫生间

▲男卫生间

▲女卫生间

▲平面布置图
































