集装箱的“文艺复兴”,伊朗集装箱俱乐部
上海/设计爱好者/6年前/1297浏览
版权
集装箱的“文艺复兴”,伊朗集装箱俱乐部
集装箱的“文艺复兴”,伊朗集装箱俱乐部


项目位置:伊朗德黑兰
Project Location:Tehran, Iran
建筑类别:俱乐部
Construction Category:Club
设计时间:2017
Design Time: 2017
箱体个数:21 个
Number of Boxes:21
占地面积:3000.0 ㎡
Covering Area:3000.0 ㎡
建筑面积:1200.0 ㎡
Construction Area: 1200.0 ㎡
Tochal是德黑兰的休闲区域,该地区近年来有了发展迅速。因此,便有了建造集装箱俱乐部的计划。

近年来,集装箱建筑在设计界获得了许多赞赏,它也是传统建筑材料的绿色替代品,可以通过这种方式向人们传达绿色环保的思想。


△箱体改造示意图
根据场地的形状、景观朝向、现有的保护建筑以及客户的功能需求设计出建筑的平面形式等要求,最终将建筑分成了三个主要区域。

△轴测图及功能分布示意图

△总平面图
东区为咖啡、商店和餐饮区域。




△东区首层平面图
△东区首层平面图
南区为经理办公室、服务区域以及展示区域。



△南区平面图
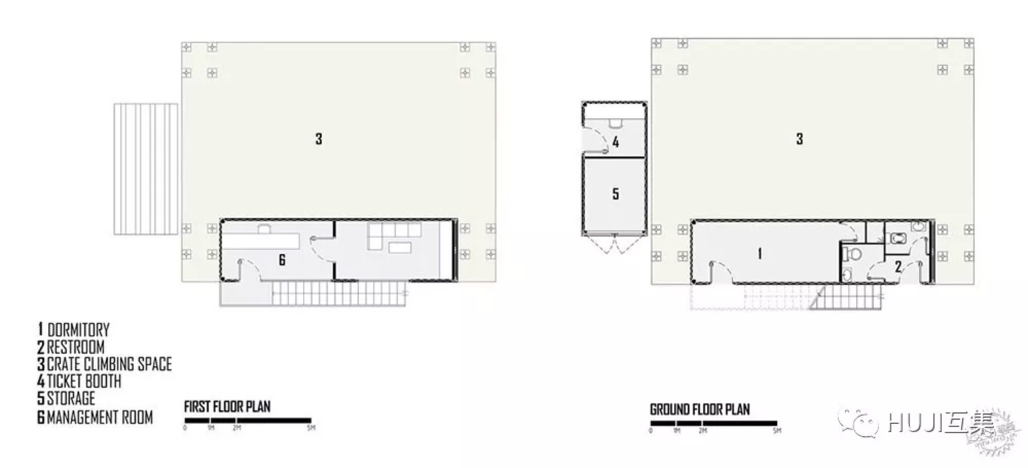
西区则主要是逃生舱游戏的区域。




△西区体块构成图
东部上方的集装箱稍稍旋转一定的角度,使空间能够面向城市主要景观朝向,并且在地面层形成开放空间,从而让整座建筑具有欢迎感。
建筑的各个部分相对独立,并且保留了与场地的复杂关系,通过设计开放、半开放以及封闭的空间来形成该建筑的空间多样性。

为了更好地整合建筑室内外空间,建筑师保留了集装箱的原有工业特质来作为室内设计的一大亮点。

为了改善金属外壳的沉闷,部分集装箱涂上了鲜艳的色彩来改善“高冷”和工业的气氛。

14
Report
声明
34
Share
in to comment
Add emoji
喜欢TA的作品吗?喜欢就快来夸夸TA吧!
You may like
Log in
14Log in and synchronize recommended records
34Log in and add to My Favorites
评论Log in and comment your thoughts
分享Share






































