为建筑师们精挑细选的40份优秀建筑立面节点参考图纸!
北京/教育工作者/6年前/589浏览
版权
为建筑师们精挑细选的40份优秀建筑立面节点参考图纸!
为建筑师们精挑细选的40份优秀建筑立面节点参考图纸!
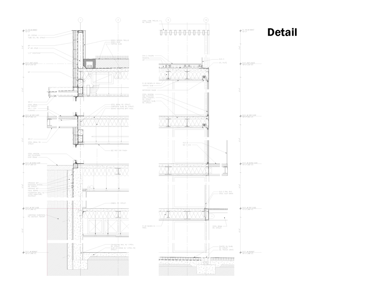
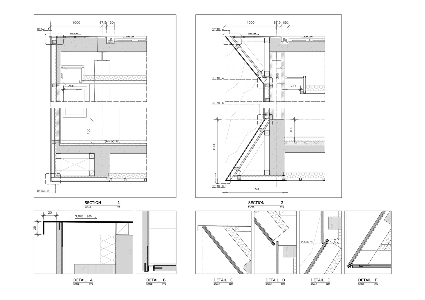
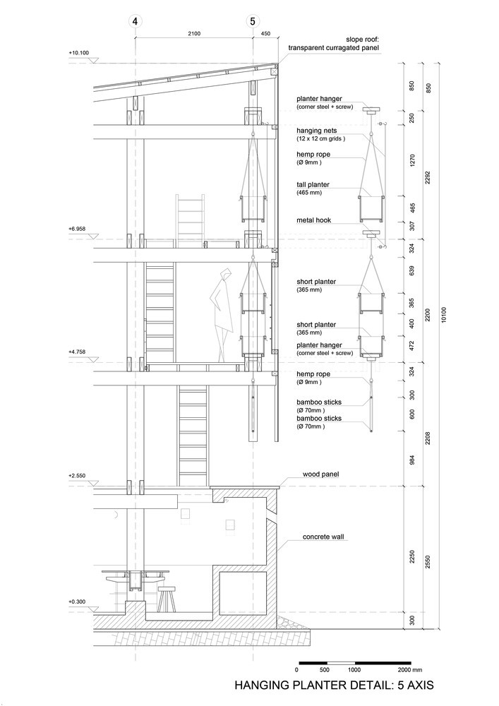
能展现出令人满意的复杂立面细节的重点是观察视图。哪个视图是最好的观察立面细节的地方呢?剖面,轴测图或是平面?
我们甄选了40个立面细节设计项目,展示了各类立面不同的表达方式,突出材料,细节,内部舒适度和颜色,以及其作为外墙的一部分其他属性等等方面。








































©ARCHDAILY,PINTEREST
-end-
『 评估 』『 投稿 』
联系邮箱:as_office@163.coM
关于ASRI
AS国际建筑与空间研究所(ASRI)作为设计先锋研究所,一直以来从事创造性设计。主张设计观点与批判精神作为建筑设计师的必备条件。可能性作为首要出发,以设计师独有的理解方式积极寻求工作方法及策略。
ASRI——反重力国际(Anti-gravity international)人才战略的计划执行者。 AS(ASRI)主张试验性的,自由的、开放的、纯粹的学术与设计交流平台,提倡建筑非线性设计,空间叙述性、动态的非预期设计、数字化时期空间设计等.
【AS国际建筑与空间(ASRI)】课程包括留学作品集辅导,精品小班课,更多详情咨询网址:www.asri.cn。
8
Report
声明
16
Share
in to comment
Add emoji
喜欢TA的作品吗?喜欢就快来夸夸TA吧!
You may like
Log in
8Log in and synchronize recommended records
16Log in and add to My Favorites
评论Log in and comment your thoughts
分享Share






































