晗昱软装设计作品| 《归来》348㎡ 新古典欧式风别墅案例
贵阳/设计爱好者/6年前/411浏览
版权
晗昱软装设计作品| 《归来》348㎡ 新古典欧式风别墅案例
本案是由晗昱软装设计公司倾力打造的别墅整体软装设计作品,整体作品色系采用了碧穹+甘蓝,最终呈现的实景沉稳大气,不失俏皮。

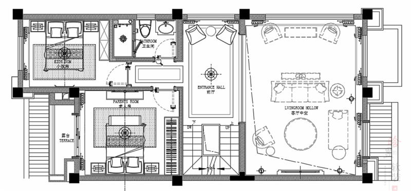
一楼平面布置方案(挑空客厅,东西厨兼有)

二楼平面布置方案

三楼平面布置方案

别墅园林设计平面方案
楼盘:中天世纪新城
面积:348㎡
风格:新古典欧式风
设计:晗昱软装设计公司
作品名:《归来》 引自:“出走半生,归来仍是少年”
设计说明

客厅实景图()
基础在泥工阶段的时候,业主在同学的力荐下联系到了晗昱软装,初次洽谈顺畅,融洽,从业主以及家人的生活习惯细节到色彩测试,再到坐姿习惯,业主深深折服于晗昱软装设计精细之处,随即邀请设计师进行现场勘查,方案设计,从入门玄关,到客厅,餐饮区,二楼前厅,卧室,每个空间,色系,材质质感,形状,摆放位置巨细无遗。业主夫妇品性温和,待人接物可亲可爱,最难能的是夫妇二人历经半世岁月,仍对生活饱有孩童般的好奇心与热爱,整部作品色系采用了靛蓝+碧穹+咖色+米色系,清浅相衬,相得益彰,空间气氛稳重大气之余却又不失青春的俏皮,活泼之感。

客厅实景图电视背景墙

客厅掠影

挂画,花艺,摆件,边几等软装元素

主卧区域

长辈房


女儿房

2
Report
声明
9
Share
in to comment
Add emoji
喜欢TA的作品吗?喜欢就快来夸夸TA吧!
You may like
Log in
2Log in and synchronize recommended records
9Log in and add to My Favorites
评论Log in and comment your thoughts
分享Share






































