看得见大海的房间——空间印象办公室设计
看得见风景的房间,你可以用这部文艺电影片名来定义空间印象办公室。坐落在珠海情侣北路的空间印象新办公室,以开放的姿态接纳着户外天造的美景。
看得见风景的房间,你可以用这部文艺电影片名来定义空间印象办公室。坐落在珠海情侣北路的空间印象新办公室,以开放的姿态接纳着户外天造的美景。公司各部门以一字长蛇阵排开,每个人和大海只隔一扇落地窗,在忙碌的工作中,只要稍微抬起一点头,就能够让整片海湾尽收眼底。正如负责新办公室设计的公司创作总监霍承显所说的,不间隔就是最大的利用,这是一所没有间隔的办公室,平等共享意识在空间设置中尽显无疑。
这片美丽的小海湾,完全成为了这家公司的私藏。
SIDD:空间印象的办公室从滨海大厦搬到每一间,不变的是海景,变的是如今每个人都能共享海景,当初办公室选址考虑了哪些方面?
唯一考虑的因素就是景观。一个设计公司的办公室多少代表了设计师对设计的认知,其实我们一直很想找一些旧厂房做改造,可惜珠海这个城市几乎没有历史的遗迹,既然我们没有机会找到这样的建筑,就换一种思路——找珠海的特色——海景,选择了一个能够把海景一览无余的地方。


SIDD:在设计中是怎么把海景利用最大化?
不间隔就是最大的利用,整个海景区域全员共享。像其他公司,就是老总会要求要一个有海景的房间,我们就没有,公司里的任何一个人,只要走向窗边,甚至只需要站在自己的位置上就能看到最美丽的海景。

空间印象办公室内部
SIDD:新旧办公室有什么不一样的地方?
新办公室会比旧办公室更明亮,因为旧办公室的空间进深比较深,所以中间有一大半的面积“深入内部”,光线不足,就会让人感觉比较压抑,只有洽谈区相对轻松一些。而新办公室是南北通风、自然采光的,在白天根本不需要开灯,人在这个空间里就像在自然里面,很放松,让人感觉很安逸、舒服。

空间印象旧办公室平面布置图

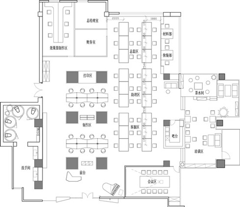
空间印象新办公室平面布置图
在功能划分上,把我们之前相对薄弱的聚会空间、会议空间单独划分出来,做成整个楼层的公共活动区,这个相较于旧办公室的最大改变,现在大家使用会议室沟通交流也会方便很多,而且在办公室内部,对于沟通环境的营造也会做得比较细致,每一个地方都可以让设计师随时随地沟通交流,空间气氛很和谐。

空间印象旧办公室场景


空间印象新办公室场景
SIDD:我们希望通过办公室传达空间印象怎样的气质面貌?
我们一直很想把空间印象的办公室打造成一间杂货铺,没有刻意为了让空间营造成某一种风格,而是把我们以前在工作中、生活中用到的、遗留的旧的物品都放在这个空间里面,充满回忆和故事感,而且和我们的工作氛围也很和谐。所以这个空间的整体设计就是留白,没有做任何多余处理。

空间印象办公场所——杂货铺一样的气质,空间中充满我们工作的回忆
SIDD:办公室的每个部门之间的界面很清晰,而且每个部门需要配备的工具也都随手可得,可说每个区域都有各自部门的明显特色,功能布局是怎么分布的?
功能划分是基于企业的组织架构设置的。行政、品牌、项目部在组织关系上有更加紧密的关联,所以就会把这三个部门安排在附近的位置;而创作、扩初深化、软装同属于设计的范畴,就会把这几个部门安排在一起。因为我们办公室是呈沙漏型的,中间的位置很窄,所以就只能这样来划分,因为空间中部的"腰"很窄,可能不太方便两边的视线。
相比而言,新办公室没有以前的办公室空间那么开敞,所以我们就在办公室各个地方分散了很多沟通空间,这也是我们在未来需要做足的功课之一。交流有时候是无意为之,有时候是有意为之,空间如果通畅,大家能随时见面,就会觉得彼此之间很眼熟;但我们现在这个沙漏型的结构,会经常看不见,感觉比较疏远,所以就需要公共空间里,有这样的时间地点,来进行话题的交流。看得见的空间需要设计,看不见的空间就需要我们用企业文化来经营。


总经办

行政/品牌部

软装材料部

项目部

总监办公区

创作区

扩初深化部
SIDD:新办公室的会议室有3个,会议室是怎么分布的?每个会议室有什么特殊的功能?
位于公共区域的会议室有3个,每个会议室都有不同的功能,比如说创作头脑风暴室、项目方案汇报室、视频会议室等,我们甚至根据会议室的不同功能取了一些很有趣的名称——百脑汇、聚议厅、外交部。

百脑汇——多媒体小型创作会议室,创作部创意头脑风暴、创作概念碰撞、方案评审,创意发源地。

聚议厅——多媒体大型汇报会议室,作为最大的会议室,聚议厅涵盖最全面的商务会谈功能,项目策略沟通,提案汇报都在聚议厅中进行,是和客户沟通最多的一个场所。

外交部——视频会议室。外交部是最为“高端”的会议室,外地项目不方便经常与甲方进行实地的名对面沟通,外交部中视频、电话、远程的设备都非常齐全,便于双方针对项目进行最直接的沟通交流。
SIDD:除了专门的会议室,洽谈区在办公空间中也是随处可见,圆桌会议区、红沙发区、软装洽谈区、水吧……为什么有这样的设计想法?
设计时刻都在沟通,我们根据每一个部门的工作需要,就近安置洽谈区的分布,比如创作有创作会的洽谈区、客户的休息有喝茶区、软装材料有软装洽谈区。洽谈区遍布整个办公室的沟通场所,希望把一个设计公司最好的沟通气氛在空间中营造出来。

圆桌创作洽谈区

红沙发茶室

软装洽谈区
SIDD:空间印象办公室最享受的地方应该就是图书室,面向海景、大批书籍、宽敞沙发……经常有同事过来借书或者聊天,本来的构想是怎么样的?
我们最初的想法就是打造一个空间印象专属的图书馆,因为空间印象一直都是一家“学习型公司”,在这个空间大家可以畅所欲言,可以汲取知识营养,但是现在实际执行起来也有些困难吧。在这种快阅读时代,好像大家都把读书这种习惯转移到手机和电脑屏幕上,对纸质出版物的感觉反而变得很弱。我们未来也会针对这个区域做一些调整,把台面式的阅读变为主要的形式,而把现在这种休闲式散座移到靠窗边的位置,现在整个区域都是休闲散座,在这么好的环境下都会倾向于坐下来聊聊天,但似乎太放松了,反而没有阅读的心情。


空间印象阅读区
SIDD:新办公室有很多开放性的区域,设计上是怎么考虑的?
本来的设想是,公共区域的电子投影设备是在上班时间播放一些关于企业文化的影片,比如说关于空间设计的理论,或者是关于人性思考的内容,是企业精神的展现场所。可是现在我们公司的品牌文化并没有囊括到这一方面的内容,没有人来完成,于是就成为我们偶尔举办大型会议的场所。我也希望以后公司的品牌运营上也能做到这一方面的内容,在这个公共区域中给每一个到访的人在不经意的瞬间留下深刻的空间印象。


空间印象公共区域,投影设备用于企业文化建设
而吧台的设计则在于,我们希望整个团队从今往后能在这个吧台中展开家庭式交流,以及公司与公司之间的非正式交流,所以就用了木质的折叠板布置,还有吧台的高度有洽谈的气氛以及椅子低矮的随机氛围,都是想营造这种沟通的气场。比如说我们可以在吧台的空间中举办一个家庭日,可以摆放一些水果和饮品,在投影仪上播放一些我们以前的照片,具有随机、休闲、放松地感觉。这也是我们企业内部的品牌文化,可能我们不能明明白白地说出一二三,但是整个办公室的空间氛围就有这样的感觉-开放、自由、可以随处感知得到的氛围,以此来促进同事、上下属、以及与其他公司之间的沟通关系。

吧台
SIDD:办公室中有很多木质结构,设计的原意是?
传统的办公间隔比较单一的,大都是铝合金玻璃间隔或者纯玻璃间隔,感觉会比较现代。而我们的办公空间是要传达一种“杂货铺”的气质,看似杂乱无章,所以必须要用一些新旧结合的元素结合,让空间不会“乱”得明显。一个开放式的办公空间,如果用木完全把空间阻挡起来又显得不好看,所以我们就用了玻璃这种材质,而玻璃本来是很生硬的一种材料,而且收边是玻璃在空间中一个很重要的设计工作。我们找了很多材质,最后选了一些老旧的木头,来中和玻璃这种生硬的工业感,而且这些木头有的甚至是上百年的老木,也会让空间有时间感和历史感,增加空间的故事性。做完之后我们发现玻璃和木头之间的收口有问题,所以能看到收口位置是脱离的,而做了一个方夹把两者之间夹住。


办公场所中用到大量的木质结构
SIDD:经常听说客户提起我们的洗手间很有意思,有什么有意思的设计?
我们的办公室在一座新式的大楼里,充满现代感,在洗手间上就想加入一些复古的元素,填补回忆的缺失。所以找了一些比较老式的冲水马桶,虽然过程比较艰辛,不过最终还是被我们找到,上面还做了一些马赛克的花纹,充满记忆中的感觉。
当然,洗手间本来就有一些玻璃和地板铺面,不是我们的设计本意,我们原本的设计是想铺上马赛克,很有广东地方特色的感觉,但拆除这些材料又十分可惜,就留下来。



SIDD:空间印象办公室的“成长”过程是极其迅速的,从设计到施工大概只有一个月的时间,我们是如何进行时间把控的?
这也是我们惯用的"抢工期"的方法,平面图一定下来,就开始进场施工、布水电,这个施工也比较简单,就是重新刷墙和铺地板,也没有多大的工作量。其实我们的办公室也有因为一些因素有拖延,不过后来因为搬家的日子一天天临近,也有硬性的压力,最后紧赶慢赶也差不多能在规定时间里完成,不过后续的工作没做好,也让大家在新办公室里吃了几天灰尘。
SIDD:空间印象办公室的设计,你觉得最满意的是在哪个位置或是哪个环节?
没有吧。
就像进到自己家一样,没有说哪个区域我特别喜欢,呆在不同的地方就有不同的感觉。就像我自己的办公桌,很多人都说我这位置背靠大海风水不好,但我就是喜欢这种无所依靠的感觉,因为无所依靠对我来说反而最大的依靠。比如说我们的茶水区,用几块老木板做成的架子,都是一些很很感人的点滴。比如说材料样板区的黄色铁架,我们选了很久,发现就这种铁架又便宜又实用,而且这抹黄色也很精神...生活、工作,都是由这些看似不经意的小细节组成。
其实当时抱最大的期望就是这个阅读区,但这个区域现在经营却很不理想,有时候着力太狠,可能结果也会适得其反。

前台

材料样板区黄色铁架
SIDD:空间印象和美中嘉华两个办公室完成时间差不多,在办公室设计上,有什么心得分享?
办公室设计还是我们一直坚持的思路吧,先力求定位正确,再达到空间精彩。一个不同行业的办公室应该有隶属于它的不同特质,空间印象是一个创意设计的企业,所以办公室空间会比较随意一些;美中嘉华是留学教育咨询机构,就应该是商务一些,气质完全不同。还有选址,我们更着重景观,而美中嘉华就会选在一个4A写字楼,就是希望在突出商务的气质,我们为美中嘉华做的就是在商务性中揉合文化的内容。
【项目档案】
项目名称:空间印象办公室
项目地址:珠海,香洲
项目面积:700㎡
服务范围:功能布局/空间设计/软装陈设
项目类型:办公室设计/办公空间设计/设计公司办公室设计/创意办公室设计
出品:空间印象
更多关于空间印象·办公室设计,请百度搜索——
【空间设计】当东方遇见西方——美中嘉华办公室设计
【空间设计】德式简约办公空间设计——一多电气办公室设计
关注空间印象最新消息,请关注空间印象微信【KJYXsidd】,或扫描以下二维码关注














































































