YY家室内设计丨中辰照明
北京/艺术工作者/7年前/301浏览
版权
YY家室内设计丨中辰照明
在北京,这样一套六十多平米的房子里生活,还算体面吧。

当年,YY的前女友的妈,在北京房价暴涨前的最后一刻,从东北赶过来,带着YY的妈,在北四环北面不远,抢购了一套六十多平米的没有电梯的半老房子。看看今天的房价,就知道这次抢购是多么成功和令人后怕。目前,YY,和她的媳妇儿JJ,可能幸福的生活在里面。

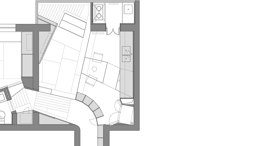
房子的装修,希望满足尽可能多的功能,能住1~4个人,能让有限的空间看着大一点儿,尽可能多的储物,还能生活的比较体面。所以储物渗透在每个空间和界面里;入口、过道、会客、临时居住、吃饭工作娱乐、厨房,汇集在一个有限分割的空间里。所有空间的尽可能的使用,形成平面上近乎纠结的紧密的咬合关系。

YY家的楼道。和我们想象中的北京的九十年代盖的绝大多数集合住宅一样,局促的楼道,墙上贴满小广告,带线脚儿的防盗门。YY把门漆成了白色。
过道

打开门,看到一个尽头是光的通道,仿佛通向另一个世界。过道儿里可以坐下来换鞋,换衣服,也储藏了一些杂物和家具。
会客 临时居住 吃饭 工作 娱乐 厨房






多功能汇集的空间。榻榻米作为会客和临时居住。阳台地板可以打开,里面有被褥枕头。实木柜子里面是电视,YY觉得电视露在外面很土,不好看,但又要看,就做个柜子藏起来。靠近厨房的白色桌子可分可合。媳妇儿JJ喜欢打麻将,需要方桌;不打麻将的时候可以拼成长桌,变成YY的工作台。为了把冰箱塞进角落还能开得开门,在混凝土墙上剔了个槽儿。
岔路口

通向卫生间和卧室的岔路口。
卫生间



站在卫生间里,往前一凑洗脸,往后一坐方便,侧面一跨洗澡。
卧室

在北京,这样一套六十多平米的房子里生活,还算体面吧。
室内设计:中辰远瞻(北京)照明设计有限公司
0
Report
声明
3
Share
in to comment
Add emoji
喜欢TA的作品吗?喜欢就快来夸夸TA吧!
You may like
Log in
推荐Log in and synchronize recommended records
3Log in and add to My Favorites
评论Log in and comment your thoughts
分享Share






































