简美风格装修案例_重庆简美风格装修设计效果图[远景装饰]
远景装饰总部位于重庆市渝中区解放碑。远景装饰承载数十几年的装修底蕴,现已经是装修行业中的标志性家装企业。
重庆首钢美利溪镇位于蔡家高端住宅中心区,总占地227亩。项目以一山带四公园的环境配套所打造,项目背靠中梁山脉,花都二期背靠原生态山顶公园,旁边是一个400亩地的观音岩公园,在销售中心前方是一个5万方的一个花溪公园,在江边还有一个滨江公园。在销售中心两旁是8000方的一个商业,有中型的超市,还有业主的私人会所如篮球场,羽毛球场,室内恒温游泳池等,小区自带幼儿园,离销售中心500米处是北碚重点朝阳小学,项目两公里处有政府规划的三甲医院。我们为该小区多位业主提供了装修设计服务。现在远景装修给大家带来一套关于美丽溪镇450平米户型简美装修风格的设计作品供大家鉴赏,该案例为远景装饰赵立冬作品之一。
项目名称:首钢美利溪镇
设计风格:简美风格
项目面积:450㎡
主要材料:石材,质感涂料,仿石材瓷砖,硬包,墙布等。
设计单位:重庆远景装饰工程有限公司
设计师:赵立冬

从业经验:10年以上
设计理念:用心设计,尽力为之。
个人荣誉:中国注册高级室内设计师
设计案例:重庆万科悦湾别墅、重庆融创奥山别墅、重庆美丽溪镇别墅、重庆好望山别墅、重庆保利小泉别墅、重庆江北农场半城中央别墅等。
工装:重庆江津添鑫主题酒店、重庆龙头寺英迈主题酒店、重庆金岗大厦办公室、重庆龙头寺动力国际办公室、贵阳集成房开售楼部及样板房等。
小区外观环境:


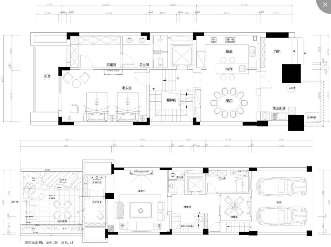
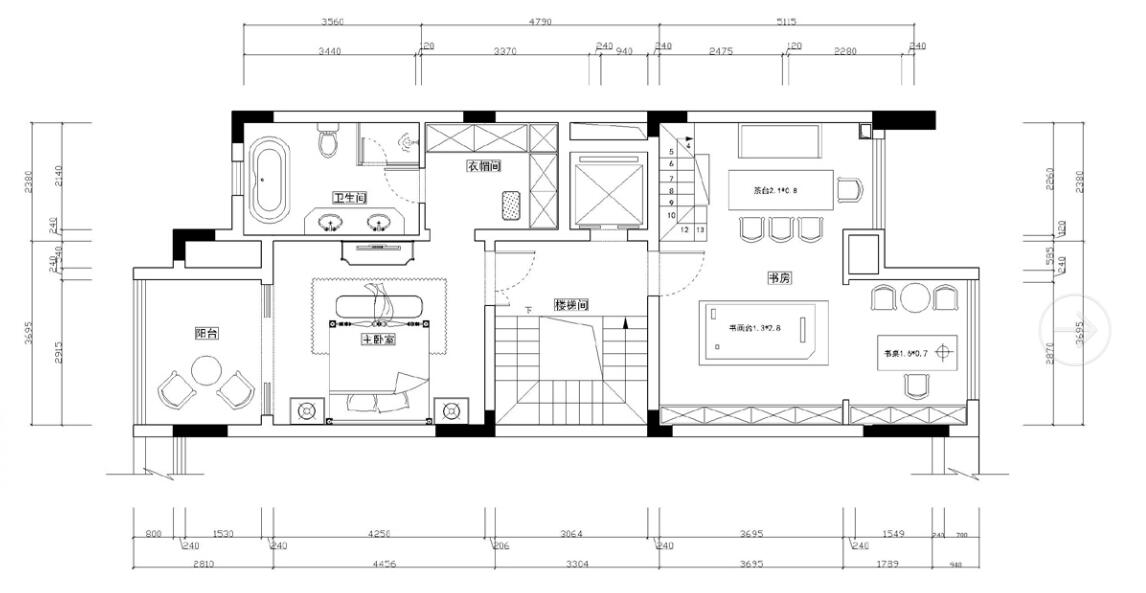
户型平面布置图:


项目所处位置环境优美安静是宜居的地方。但是该房屋结构略显不足,没有电梯的位置。在设计中不但增设了这些功能,整个布局都做了合理调整。充分合理的利用了空间。使设计真正达到了以人为本。
设计说明:
本案为美式风格的室内家居设计,设计师力求把功能、形式、色彩统一融汇在一起营造出家的气氛。完美的设计不在于造型的复杂色彩的绚丽,必须讲究实用、统一、和谐,也就达到了以人为本。在本设计中设计师就是以和谐居家的理念逐步完善和满足业主的诉求。
以下是关于此套美式家装的VR全景效果图,设计师利用精湛的特效渲染和视觉设计让装修效果得以提前观看到。






远景装饰总部位于重庆市渝中区解放碑。远景装饰承载数十几年的装修底蕴,现已经是装修行业中的标志性家装企业。
现如今远景装饰已在江北、南岸、沙坪坝等主城各区分别成立设计中心,在渝北区装修公司、南岸区装修公司、沙坪坝区装修公司中排名均靠前列,具有巨大的市场影响和品牌知名度。业务范围也从原来的基础装修逐步扩展到一体化家装服务、高端设计等领域。对设计师的培训与要求更加的与现代化,国际化接轨,实现了企业实力与业务范围的双重腾飞。






































