学习一个月软装设计师收获了什么-用作品告别,这里是你们的起点
不要满足于眼前的小成就。问问自己:我这辈子就这样了吗?
不要满足于眼前的小成就。问问自己:我这辈子就这样了吗?
在你的内心深处,有无穷的潜力。努力越多,收获越大
一个月的时间,COHIM见证了你们的蜕变。

“记得刚来的时候,我还是一个冒冒失失的小丫头。那个时候很迷茫,不知道自己要做什么。幸好大叔(家居班班主任)每天都给我留作业,指导我。还有班里的其他同学,给了我很大的帮助,谢谢大家,未来的日子里,我会用心成长。“

“虽然大叔说我们班是最LOW的一个班,但是Low也是我们的一大IP:)其实,直到毕业的这一天,我才明白大叔的良苦用心。社会上阿谀奉承我们的人有很多,说好话恭维,哄我们开心的人也很多。但那没有任何意义。最难得和可贵的人,是那些指出你缺点和不足的人。我会记住LOW这个词,以后的日子里,抓住每一次机会。”

毕业感言同学们说了很多很多,讲自己的从业经历,讲在中赫时尚的感受,讲未来的规划,每一个人都收获满满。其中,最能体现同学们收获和成长的,就是每个小组通宵达旦,齐心协力完成的毕业作品。
1708期毕设概念方案欣赏
1组

一组同学从顾客的价值认知出发,利用自身对亚洲文化的敏感,将毕业项目悦榕庄定位于为浪漫而生的舞台,其成功的关键在于实施了卓越的顾客价值管理,通过特色服务,建筑特色在顾客心中树立了高端形象,同时创造了淋漓尽致的情感体验。


设计方法
形态:提取阳朔梯田元素进行设计变形,融入地域自然元素塑造空间
餐厅大厅融入枯山水设计手法,将室内空间环境与室外自然环境合二为一
色彩:取自山的颜色,大地的颜色,水的颜色,雾的颜色
材质:运用纱幔做空间隔断,营造空间私密性的同时也增添几分山光水色中氤氲而生的韵味




3组

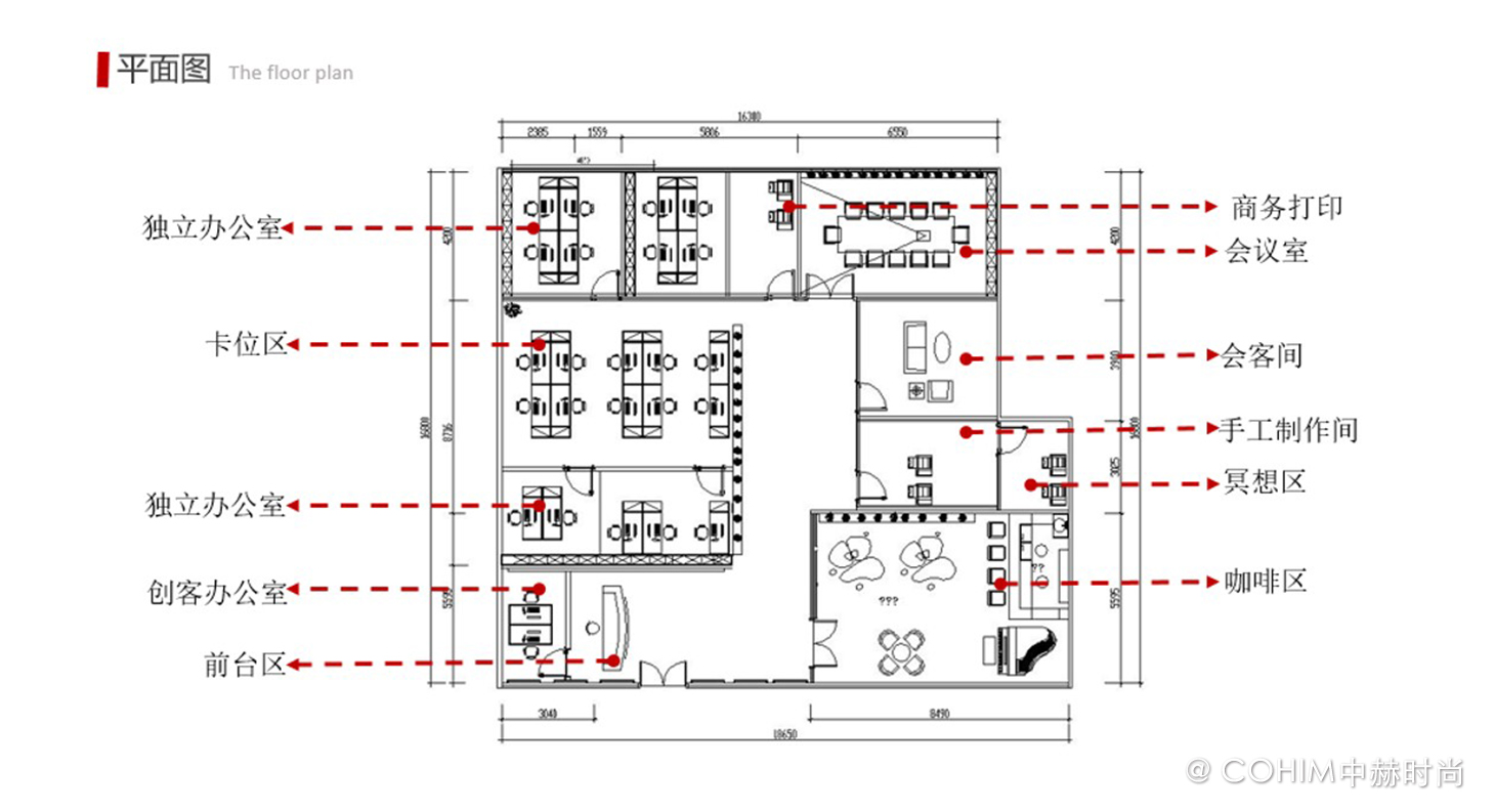
创客概念源自欧洲,3组同学认为在中国最早就有创客空间的思维,比如古代秦朝时期的四方馆,金恪集团的金恪四方馆就是借鉴古代的四方馆运营模式为金恪集团输送人才。因此他们以【在自由的空间里,把自己静静安放于此,思考创造】为思路。用活跃的色彩打造了年轻人的活力创客空间。




4组
4组同学以现代简约的装修风格为主,从自然中提取灰色和黄色为主色调,整体设计简约大方,现代感中透着新古典的质感。



5组
5组同学以怀旧、复古为主题,从自然中提取色彩元素和创作灵感,打造了新中式木色温暖的家居空间。








6组

6组同学的设计方案充满中国传统文化元素,以仿古布艺为设计的前瞻,遵循古风的纹样、工艺、质感结合现代的技术,实现传统与现代的契合点,迎合当下新中式风格空间设计的布艺需求。







至此,同学们的软装毕业方案已经分享完毕。尽管有些作品还有不成熟的地方,但从作品中,能看到他们在团队中的成长。中赫时尚是一个起点,期待未来看到你们更多的优秀作品。

成长是无尽的阶梯。一步一步的攀登,回望来时路,会心一笑;转过头,面对前方,无言而努力的继续攀登。 相信每一个人都能在攀登的过程中收获我们想要的。
> 这里,是一个开始 <






































