济南明湖广场46.47平米单身公寓现代简约装修设计方案
济南/室内设计师/8年前/551浏览
版权
济南明湖广场46.47平米单身公寓现代简约装修设计方案
小区名称:明湖广场
小区面积:46.47
房屋户型:复式
装修风格:现代简约

小区名称:明湖广场
小区面积:46.47
房屋户型:复式
装修风格:现代简约
工程造价:30万完美入住(基装9.5万,主材12万,家电家私8万)
设计说明:本案位于大明湖畔的明湖广场,女业主年经时尚,对生活品质要求极高,经过
美巢装饰设计师李天林多次与业主深入沟通,最终以强烈的黑白对比,并融入简约而不简
单的设计理念,得到业主的完美认可。
济南美巢装饰娜娜:13011727708(微信)
http://www.jsform.com/web/formview/592d2f44e7aea91f65f29397(打开连接 预约免费量房设计)

济南明湖广场——46.47平米——楼梯处效果图——美巢装饰

济南明湖广场——46.47平米——楼梯处效果图——美巢装饰

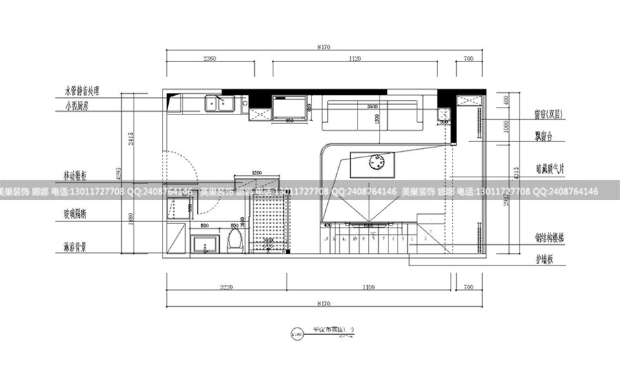
济南明湖广场——46.47平米——一层平面设计方案——美巢装饰

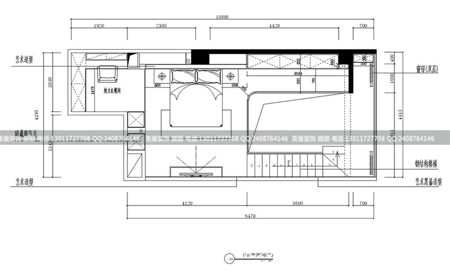
济南明湖广场——46.47平米——二层平面设计方案——美巢装饰

济南美巢装饰娜娜:13011727708(微信)
http://www.jsform.com/web/formview/592d2f44e7aea91f65f29397(打开连接 预约免费量房设计)
5
Report
声明
11
Share
in to comment
Add emoji
喜欢TA的作品吗?喜欢就快来夸夸TA吧!
You may like
Log in
5Log in and synchronize recommended records
11Log in and add to My Favorites
评论Log in and comment your thoughts
分享Share






































