碧桂园西南上城:大黄砖逆袭现代轻奢,绽放人与艺术的和谐共生
碧桂园精装房改造142平,大黄砖逆袭现代轻奢,格调十足
每一间住宅都是一个艺术品,然而这件艺术品的内部,亦需要现有艺术品的装饰与表达。今天为大家带来一套,一进门就能感受到屋子主人的独特审美案例。这是一套现代轻奢风的家,整体设计注重居室空间的布局与使用功能的完美结合,结合业主喜爱的轻奢家具,格调十足。
话不多说,一起来看看它的颜值吧!
【案例信息】
About Case
地址\Location:碧桂园西南上城
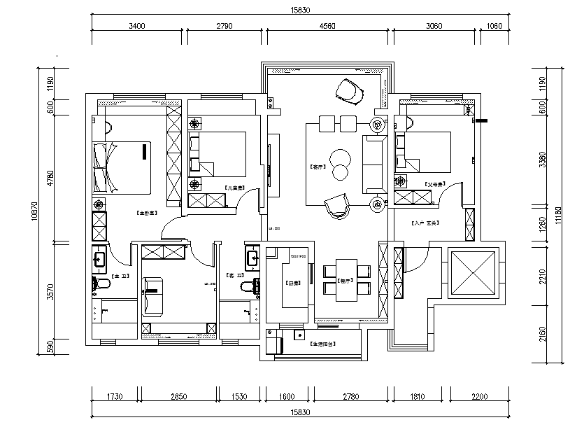
面积\Square Meters:142m2
风格\Style:现代轻奢
来源\Source:拓境空间设计有限公司
【方案设计】
Scheme Design

原户型方正,格局清晰,无需大拆大改,整体主要靠软装搭配,来营造整体温馨高级的氛围。
【色彩选择】
About Color

棕色、淡黄色,是一种非常优雅时尚的颜色,它们的搭配知性而温柔,给人一种温暖的奢华感,轻松为房间打造出优雅的气质,温柔又不失精致。时尚的棕色和淡黄色再搭配上黑白灰,让空间质感更加突出,清新又典雅,纯粹而自然。
【效果展示】
About Design
「客餐厅」
Guest Restaurant

客厅是家庭成员的共用空间,所以大气就成了这次客厅的主要设定。浅灰色的墙面搭配轻奢风满满的家具,为室内增添了艺术感。布艺沙发搭配别致的圆形茶几,时尚大气。沙发后面摆设的棕色装饰画,为室内增添了一丝高雅的气质。

沙发对面摆放一个黑白+金边电视柜,底部采用了高脚设计,简约奢华又不失轻盈。此外,一体的阳台,使客厅空间更加通透,灰白棕三色窗帘,不仅综合了客厅的整体色彩,更有一种净化心灵的治愈感。
「钢琴房」
Piano Room

钢琴房的设置更显轻奢高雅,黑色的钢琴配上黑金板凳,尽显轻奢品位。背后灰色的沙发,搭配装饰画瞬间丰富了空间的层次。飘窗左右两边的装饰柜,活跃了空间的氛围,简单又不失乐趣。
「主卧」
Bedroom

主卧房间主要以白色为主,粉色的背景墙为卧室整体打造了一种温馨甜美的感觉。灰色的窗帘,使房间整体变得高级,简约轻奢的设计高雅永不过时。白色的床,为房间营造了一种舒适感,让人感觉无比放松。
「次卧」
Second Bedroom

次卧整体的颜色看上去十分温馨,给人一种心安的沉稳感。几种深浅灰色的搭配,营造了一种柔和淡雅的氛围。床头的黑白装饰画,凸显精致生活,巧妙的营造了一种温馨沉静之感。
软装设计关注拓境空间设计














































































