深圳装修:金地梅陇镇140㎡现代简约,营造小清新的舒适感!
深圳/室内设计师/4年前/31浏览
版权
深圳装修:金地梅陇镇140㎡现代简约,营造小清新的舒适感!
现代简约
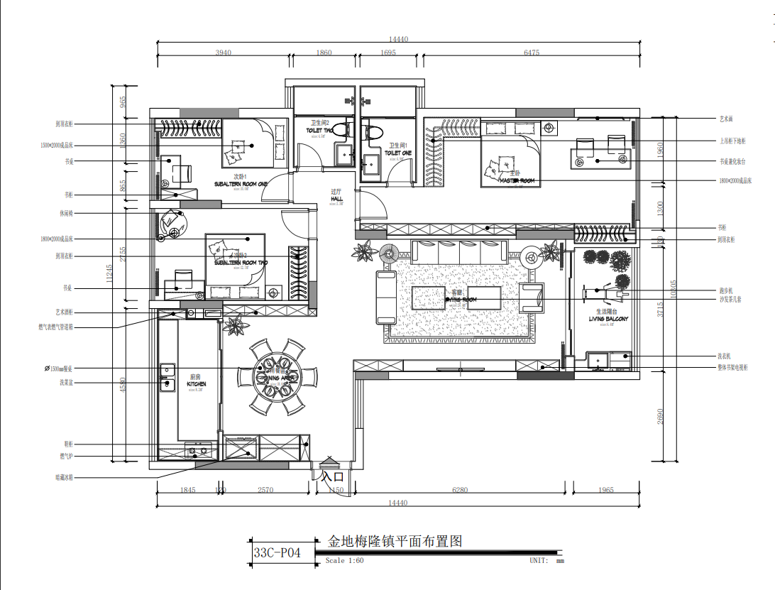
户型解析
这是一套140平米的三局房子,整体空间以现代简约风格的设计,以白色与木饰面的墙面设计,天花吊平顶+无主灯设计,布置高级灰色软装与整体空间氛围,带来一种安静优雅的档次与高级感。
前后对比


(本案定义为现代简约,整体空间通过空间的重新分割组合,将原有厨房和餐厅的调整,增大厨房使用面积同时又更好的使用,在餐厅位置同时增加西厨台面和电器柜;整体空间设计用简洁的线条配合软装上搭配烘托出舒适的氛围,小孩房充分考虑到小孩的喜好和年龄以温馨的色调为主色调。)
客厅

现代风的客厅空间,吊平顶的天花在中间装上暗装的筒灯,电视墙与沙发墙上都加入导轨灯的烘托,在现代简约而舒适的整体家居布置下,带来一种自然从容的大气氛围感。沙发墙以木饰面材质的设计,布置棕色的皮质沙发、圆形茶几与地毯,灰白木色搭配的空间,也显得更加惬意自然。
餐厅

雅白的圆形大理石定制餐桌,搭配卡其色的皮艺餐桌椅,上方黑色的吊灯布置,为我们提供了一种时尚端庄的用餐氛围感。
主卧

主卧,软包床头墙,结合一个舒适的软质床头靠背,提供了一个舒适温馨的就寝环境。 主卧端庄得体的布置,配合对称的布局还有灯光系统的烘托,给人以简雅大方的既视感。
儿童房

儿童房张贴浅蓝色的壁纸划分出床铺的位置,白色+浅蓝色以及黄色的家居,显得自然统一又简单大方。
0
Report
声明
收藏
Share
相关推荐
in to comment
Add emoji
喜欢TA的作品吗?喜欢就快来夸夸TA吧!
You may like
相关收藏夹
Log in
推荐Log in and synchronize recommended records
收藏Log in and add to My Favorites
评论Log in and comment your thoughts
分享Share














































































