深圳装修:紫巾水岸270㎡现代简约,空间布置的年轻时尚!
Shenzhen/Architectural designer /4 years ago /43浏览
版权
深圳装修:紫巾水岸270㎡现代简约,空间布置的年轻时尚!
现代简约
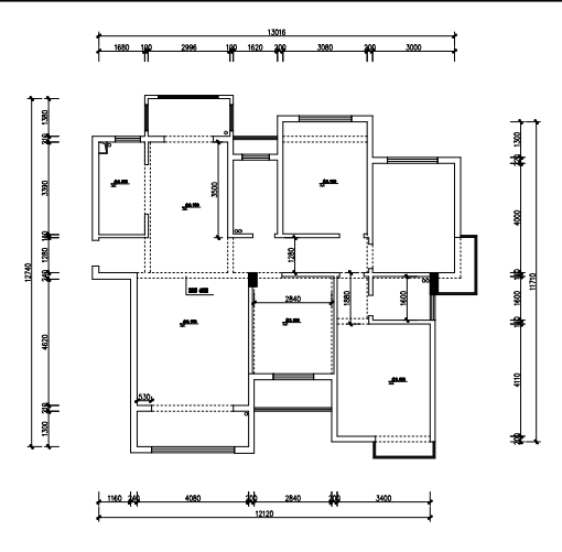
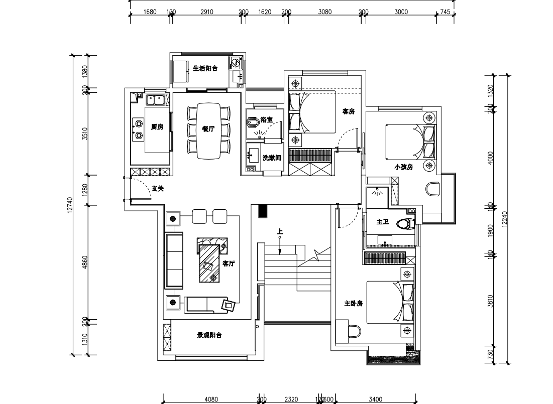
户型解析
世间的一切美好都会在家里汇聚、流动。推开家门,目之所及便是简约大气、时尚高级的客厅,这里是家人聚集的小天地,也是朋友们欢聚的热闹场,更是品质家居的集中体现
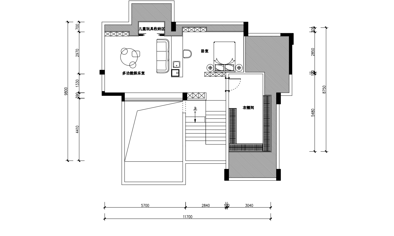
前后对比




业主是一家潮牌店的老板,也是一名服装设计师,平时工作也很忙,对于家的需求希望能有一个让身体和大脑完全放松的状态,喜欢现代感,极简的线条感。 将客厅区域楼板拆除,形成了一个挑空的客厅,楼梯的位置做的悬浮楼梯,楼梯区域的通透感提升。顶面和局部造型上采用的是水波纹不锈钢面,打破空间直线感的古板感觉,让空间富有灵动性。挑高处理及镂空处理之前的格局面目一新.. 在艺术和生活间游走 不过分张扬 不趋于平庸
客厅


客厅的设计以大气通透为主,两层大挑高覆盖整个空间,最大化引入更多的光线,彰显出豪宅的气派。 沙发、茶几、地毯等软装采用撞色的搭配,时尚又有现代感。与大理石电视背景墙融为一体的壁炉设计,为清冷的空间注入温暖。
餐厅

餐厅与厨房的设计大气简约,餐桌选择了原木材质,柔白色的大理石中岛台作为西厨区可以切洗蔬菜瓜果,方便实用。
主卧

卧室作为业主的起居室,融入了现代风的简约和奢华。吊顶简约对称的线条和卧室里的每寸布局,尽显温馨,有不杂乱。
次卧

床头背景墙选用木质的栏杆设计,含有灯带,立体感给整个背景墙赋予一种高级的格调。
0
Report
声明
1
Share
相关推荐
in to comment
Add emoji
喜欢TA的作品吗?喜欢就快来夸夸TA吧!
You may like
相关收藏夹
Log in
推荐Log in and synchronize recommended records
1Log in and add to My Favorites
评论Log in and comment your thoughts
分享Share














































































