深圳装修:绿景大地100㎡现代,营造安静优雅的空间!
深圳/室内设计师/4年前/37浏览
版权
深圳装修:绿景大地100㎡现代,营造安静优雅的空间!
现代简约
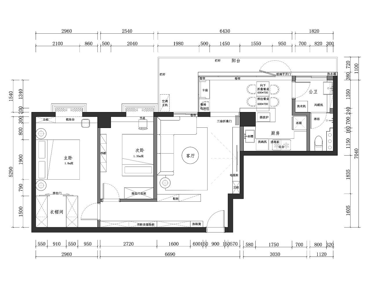
户型解析
来自业主喜欢安静的居住环境、喜欢日式木质的元素、喜欢光和影的建筑氛围、喜欢混泥土和水泥的建筑质感、克制又简洁。
前后对比

本案业主是一对90后年轻的夫妻,有自己特立独行想法,有着共同话题,生活作息与习惯基本一致,空闲的时候喜欢喝茶、阅读、遛狗、旅行、这样相濡以沫的人生状态让人十分羡慕。设计的意义就是创造幸福,经过设计师全方面思索推敲,业主对方案非常满意,历时几月新家现已完美落地啦。新居宽敞明亮,浪漫气息与生活实用性并存,愿他们未来能够在这处空间共度暖暖时光。
客厅


客厅去除复杂的装饰,用原始的木质色调搭配低调的灰黑白,颜色过渡自然,弱化了视觉上的冲击,表现出温柔而治愈的力量。
餐厅
餐厅采取餐桌+中岛台的组合设计,后方墙面整面墙都以木饰面材质的设计,中间加入定制电器柜,让空间保持着现代大方的高级效果。
主卧

卧室以灰色调的空间,床头墙是灰色乳胶漆背景墙,灰色的床单,床尾也是定制木色的衣柜+整体黑白灰的设计,显得简约舒适而高级。
卫生间

卫生间干湿分离,只用干净的白色与原木色打造出放松、舒适的洗浴环境。模压柜门、地面采用防木瓷砖,无惧潮湿!
0
Report
声明
收藏
Share
相关推荐
in to comment
Add emoji
喜欢TA的作品吗?喜欢就快来夸夸TA吧!
You may like
相关收藏夹
Log in
推荐Log in and synchronize recommended records
收藏Log in and add to My Favorites
评论Log in and comment your thoughts
分享Share














































































