深圳装修:中粮祥云130㎡新中式,让空间拥有奢华与典雅之感!
深圳/室内设计师/4年前/39浏览
版权
深圳装修:中粮祥云130㎡新中式,让空间拥有奢华与典雅之感!
新中式
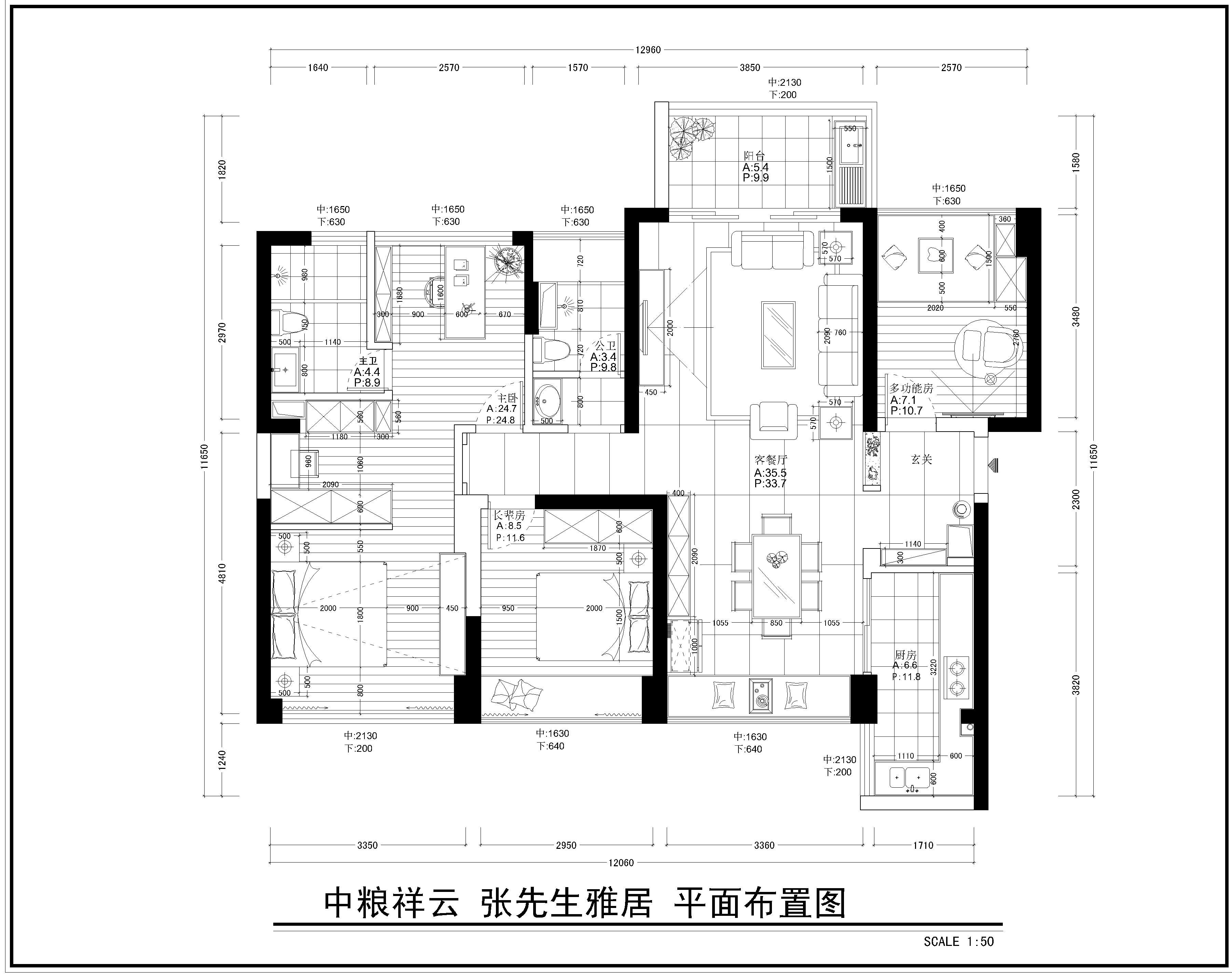
户型解析
美是关于生活与自然的自由艺术,家的设计则是对人与生活的解读和理解,是人与空间共融的共生形态。房子是买来的,但买不来家,更买不来生活的幸福感。 新中式风格别墅设计并不是简单的元素堆砌,而是通过对传统文化的认识,将现代元素和传统元素结合在一起,以现代人的审美需求来打造富有传统韵味的事物,让中式设计在当今社会得到合适的体现。新中式装修风格的设计理念,是用经过精湛工艺处理后的现代设计素材,来展现古典传统艺术的风雅陈韵。
前后对比

本案为新中式风格。时尚、优雅、自在、张弛有度,如似要追寻一场以东方文化为精髓的闲趣逸致生活。正如谦谦君子般,清雅温润。将传统中式元素用现代的材质及形式演绎出来。
玄关

新中式玄关装修:春赏百花,秋望月;夏有凉风,冬听雪。玄关是给人第一印象的地方,反映主人文化气质的“脸面”。
客厅

客厅以硬包+黑色线条的沙发背景墙,布置了中式的布艺沙发沙发背景墙上的一些装饰非常好看,具有很好的装饰效果~
餐厅

从东方文化里汲取灵感,加入了山水画的墙纸,和古风的装饰,营造了属于东方的韵律美。采用沉稳的灰色为基调,两者之间的碰撞,让餐厅透出淡淡的禅意与优雅,惬意舒适,美到骨子里。
主卧

自古以来,菊花代表着高雅傲霜、淡泊名利、纯正高洁。纯粹的木质家具,与菊花有关的元素相搭配,以从容的姿态缔造了简约到极致的美好氛围,让卧室空间回归自然简洁。为生活带来返璞归真的自在感受。
书房

书房深艳丽的色彩冲击,是中式风格的一大特色,它带给人的感觉非同一般,不刻意的勾画,加上精心而厚重的材料元素,让书房空间看来儒韵高雅,书房是家庭的核心内涵,包括色调,家具,饰品摆放,都要既简单又不失高雅。中式风格赋予家庭环境中的简约之美。“简约”的室内环境还可以使空间中拥有奢华与典雅之感,这是新中式独有的优势。
0
Report
声明
收藏
Share
相关推荐
in to comment
Add emoji
喜欢TA的作品吗?喜欢就快来夸夸TA吧!
You may like
相关收藏夹
Log in
推荐Log in and synchronize recommended records
收藏Log in and add to My Favorites
评论Log in and comment your thoughts
分享Share














































































