商业空间卫生间设计
成都/室内设计师/4年前/273浏览
版权
商业空间卫生间设计
商业空间卫生间深化设计施工图
带来一组商业卫生间施工图希望大家喜欢,有需要CAD源文件的请单联

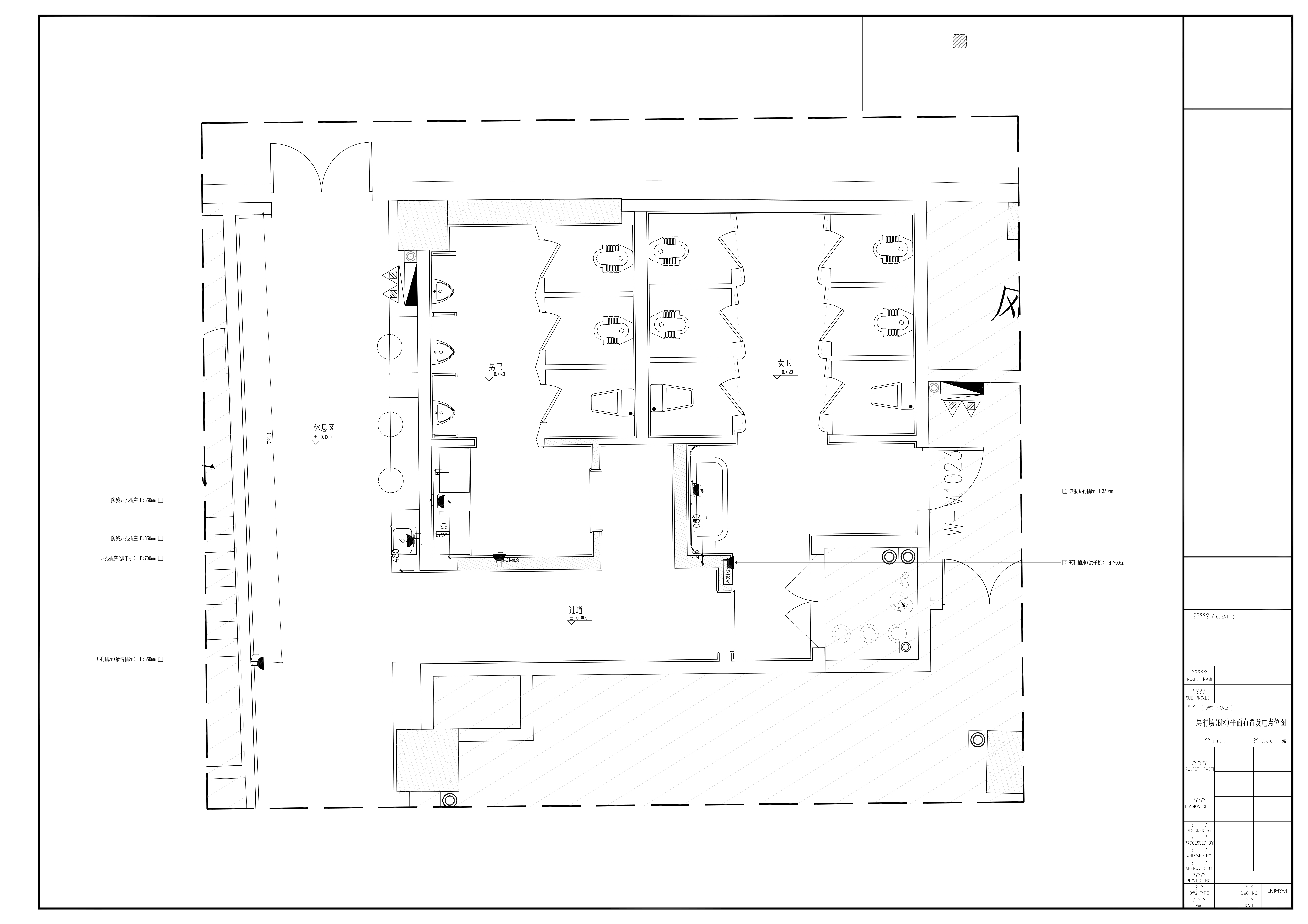
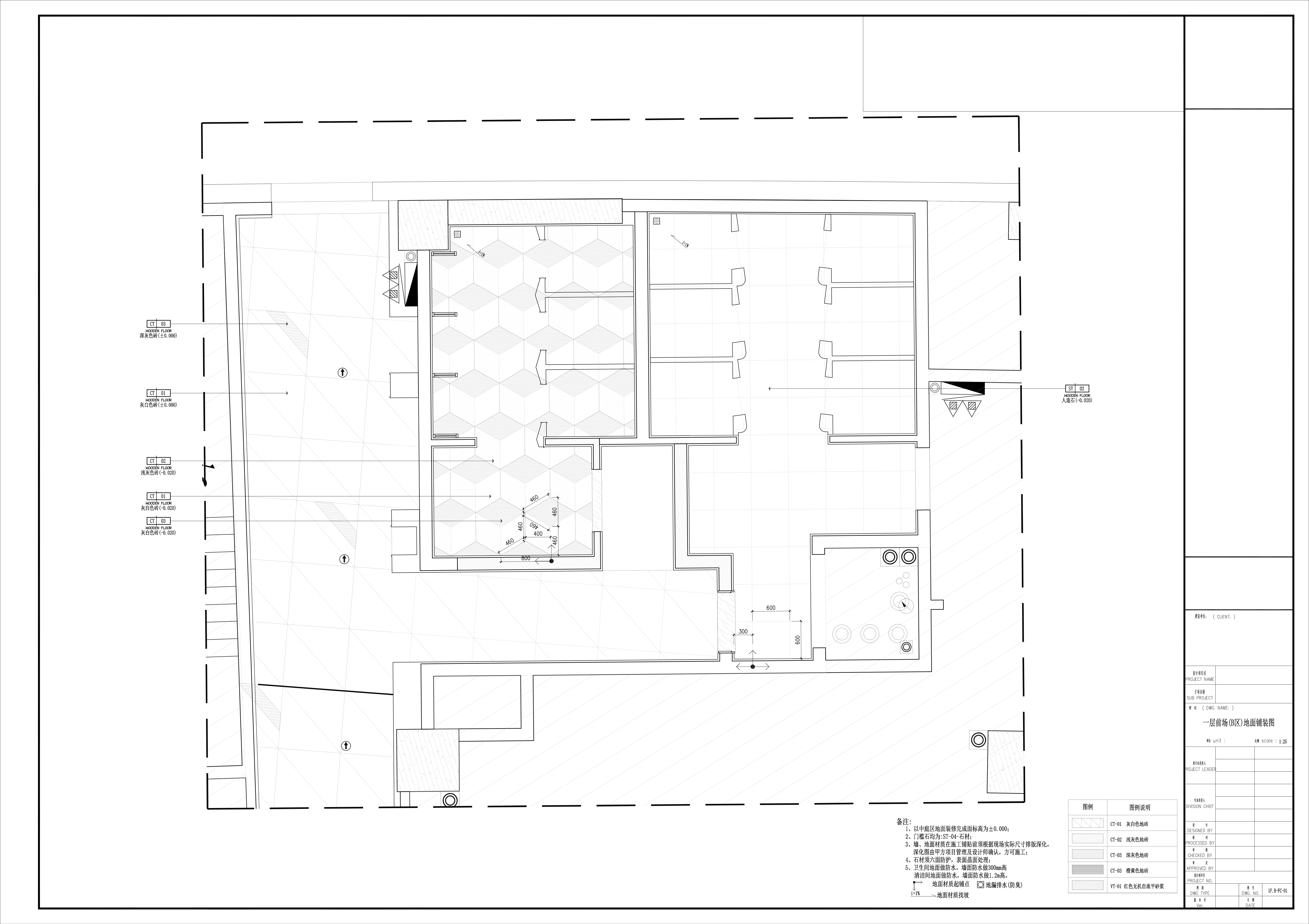
原始平面布置图,其中包含平面设计图,其内所需要用到的常用强电及弱电点位,安装高度相关数据。

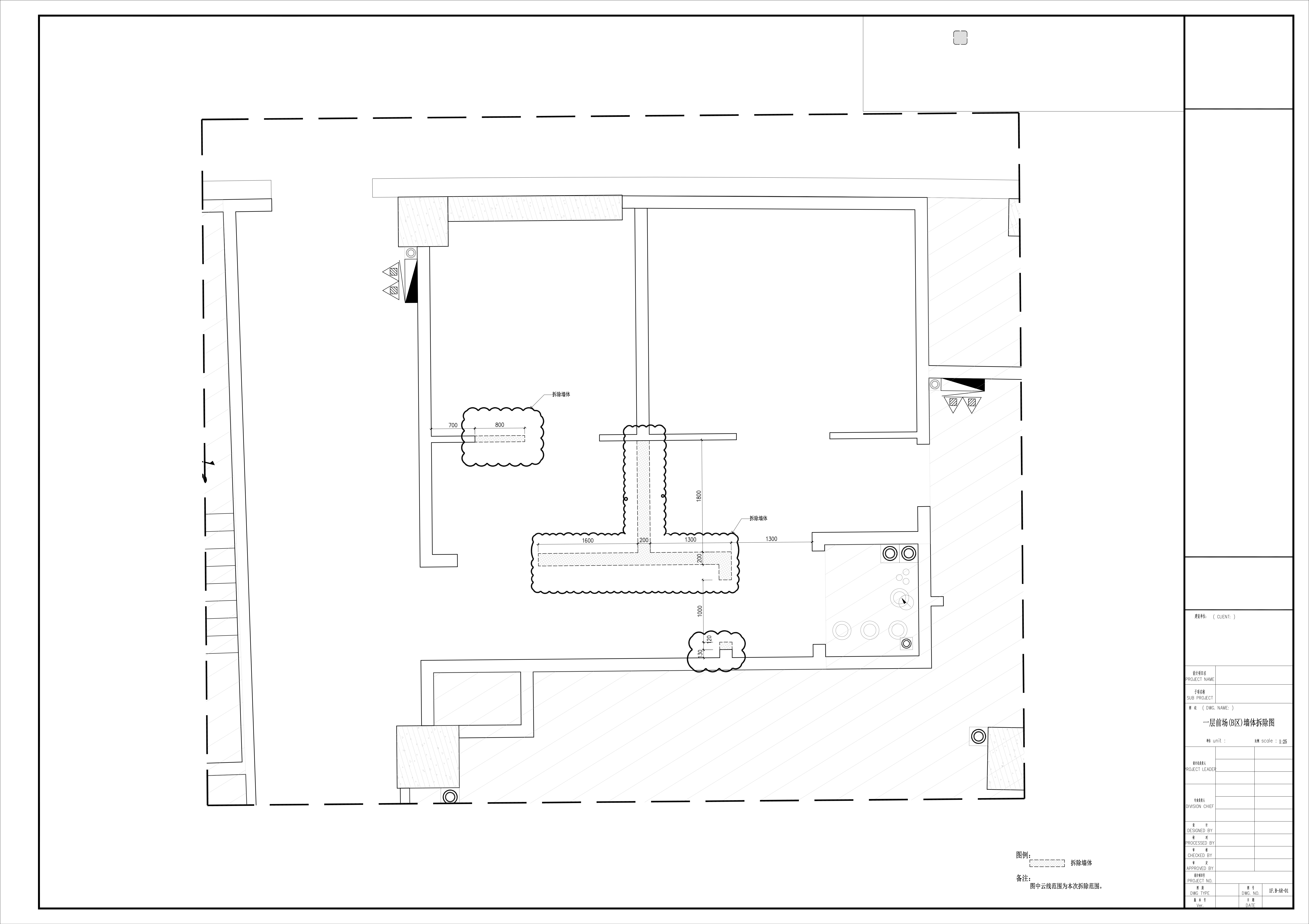
墙体拆除图中包含需要拆除墙体的位置以及拆除的尺寸相关数据

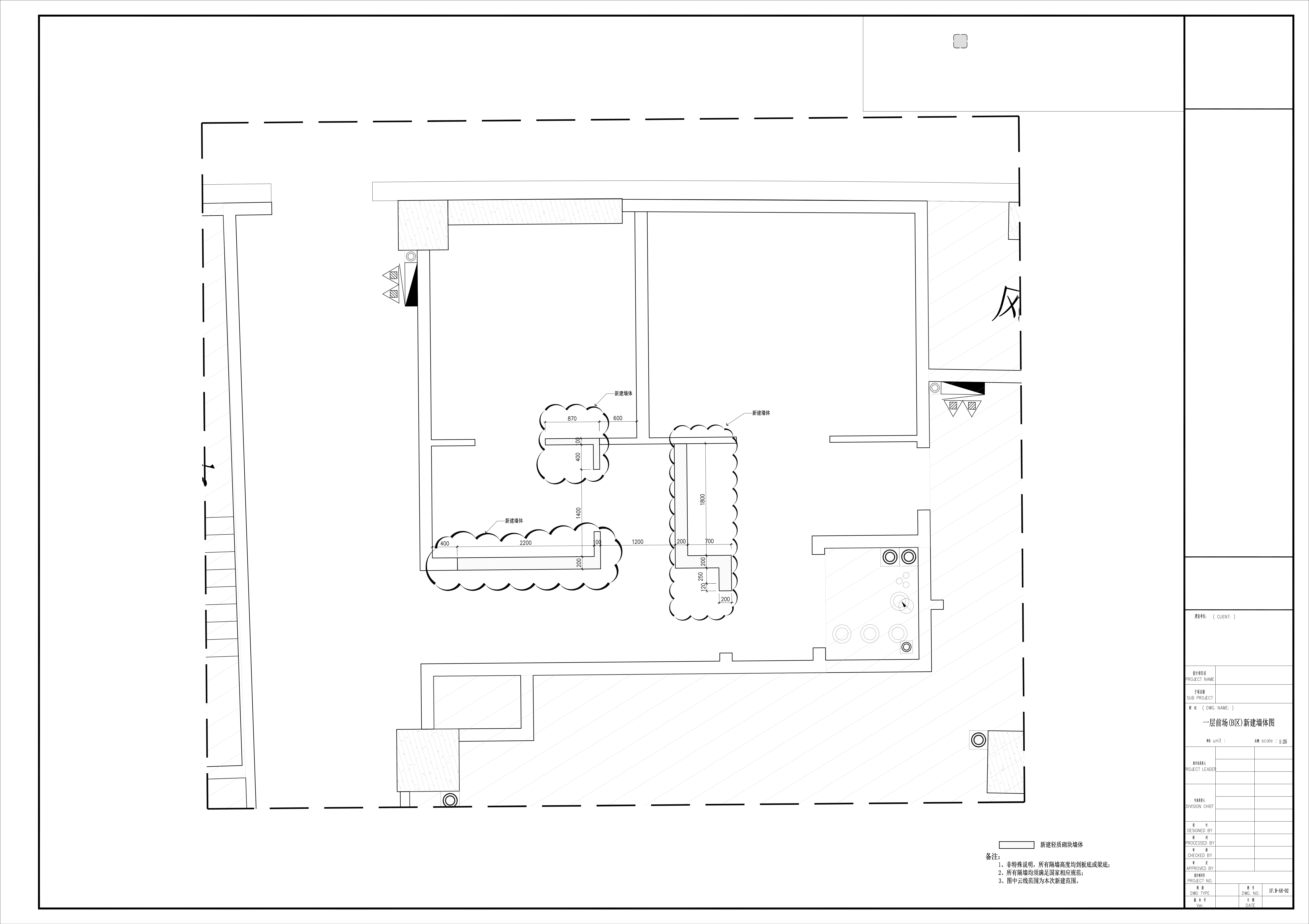
新建墙体图纸包含了新建墙体的材质,新建墙体的高度以及必要说明的施工工艺等内容。

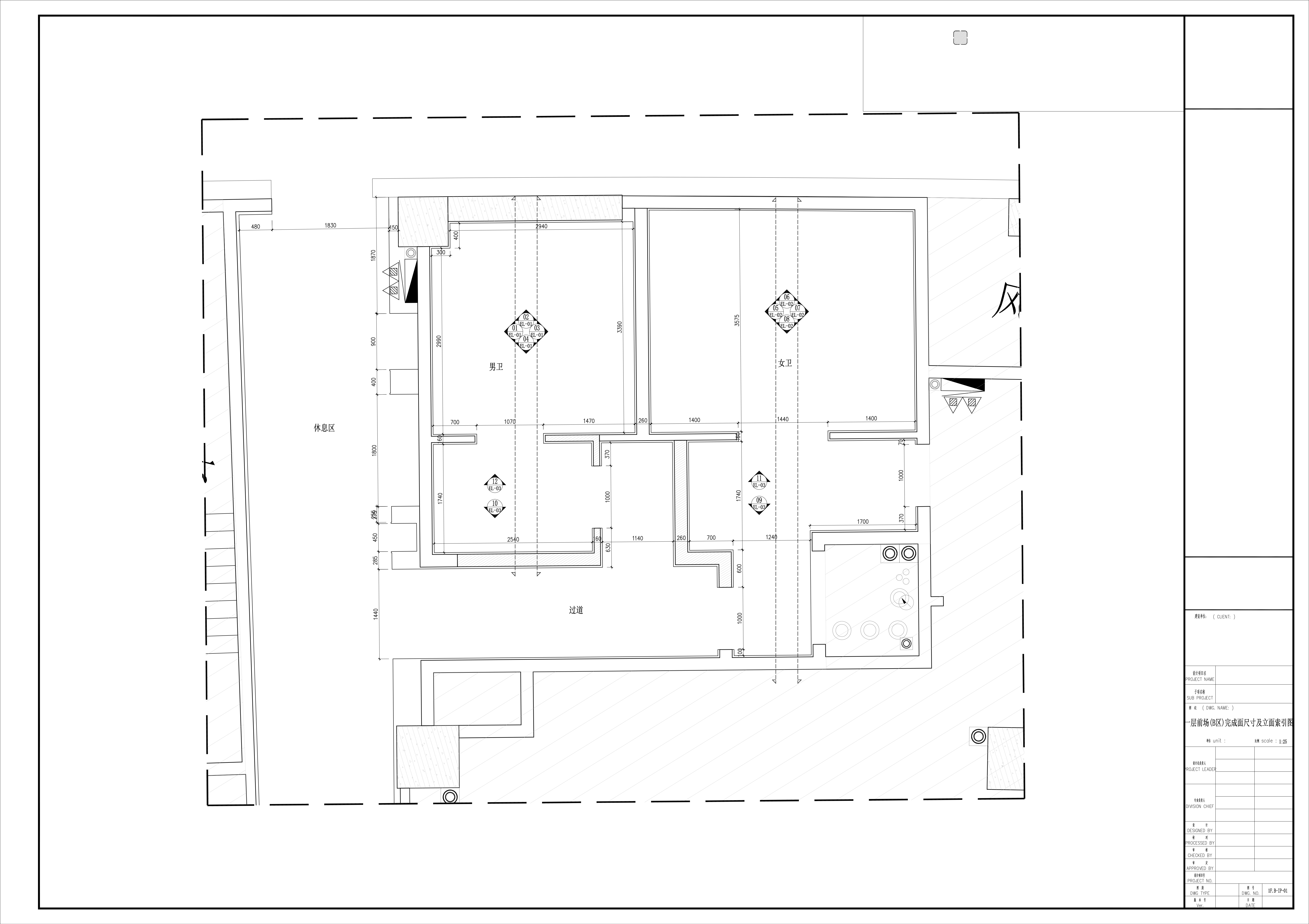
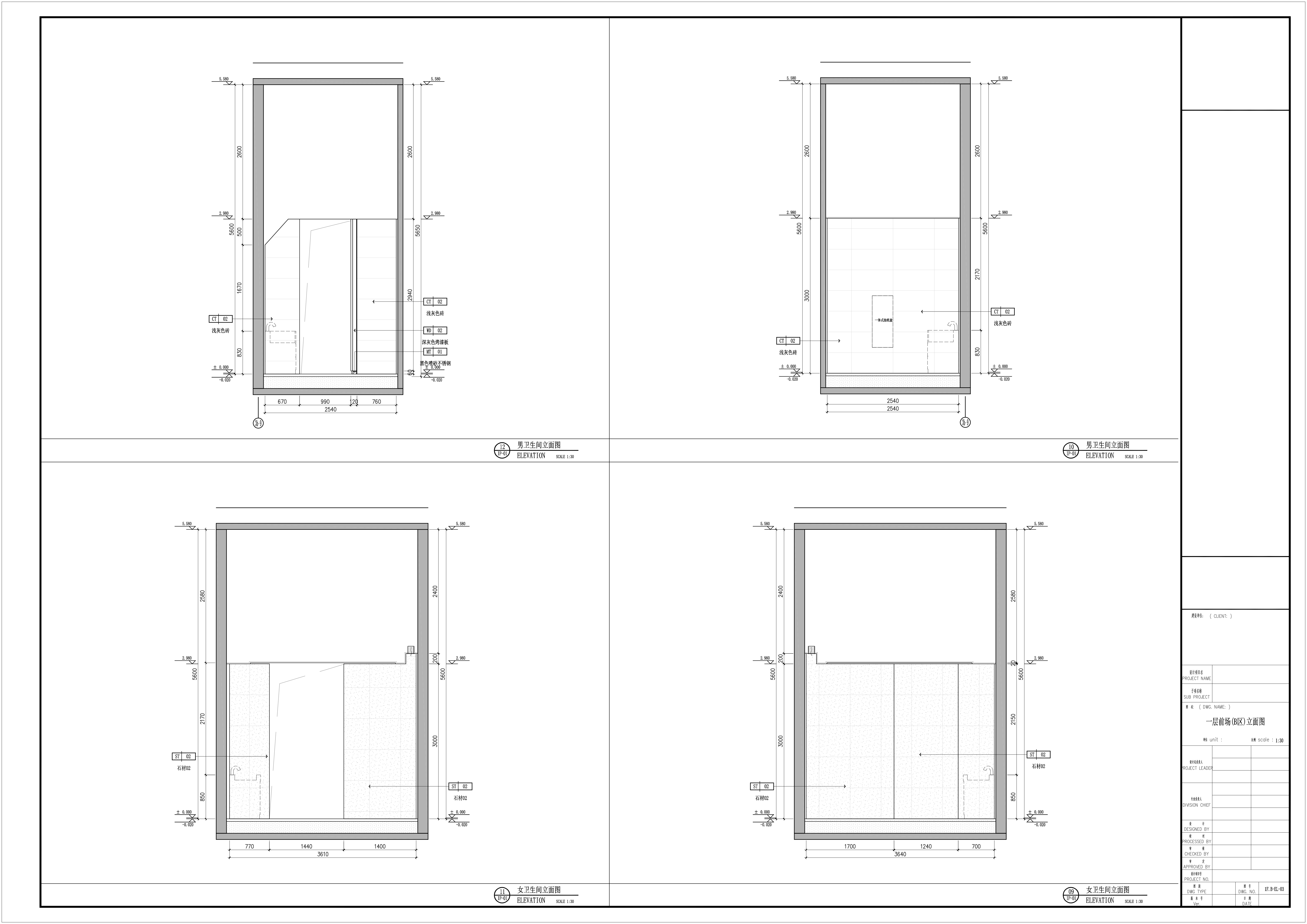
立面索引图为项目中需要深化出立面位置的指向。

天花布置图中详细的表达了天花设计意图,包含用材用料,施工工艺以及材料的完成面和相应的设计高度意图,

综合天花图在设计深化的过程中是不可缺少的一个表达环节,深化设计师需要在图纸中完全的展现出方案设计的想法,用清晰明了的图纸以及文字向现场施工的工人做出讲解。








8
Report
声明
3
Share
相关推荐
in to comment
Add emoji
喜欢TA的作品吗?喜欢就快来夸夸TA吧!
You may like
相关收藏夹
Log in
8Log in and synchronize recommended records
3Log in and add to My Favorites
评论Log in and comment your thoughts
分享Share

















































































