麻吉空间设计 | 多层复式的光影空间
合肥/室内设计师/4年前/295浏览
版权
麻吉空间设计 | 多层复式的光影空间
实景案例 | 意式轻奢 | 437㎡多层复式结构

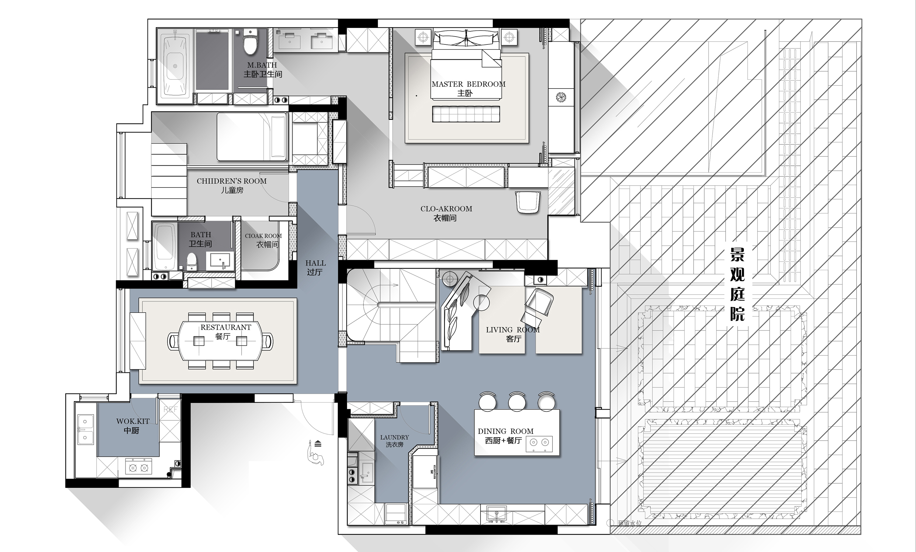
各个空间的布置
包含非常多的层次
设计师是助力驱使你超越自己的
而不是去主导你的想法
/ Graphic Design /




/ Live-action rendering /





即使是在山间民宿,也很难遇到如此完美的阳光房,
尤其是当你身在其中,沐浴在阳光下,与孩子们一起阅读做手工。
毗邻宽敞的起居室,功能延伸的同时,也是外部天井和客房的通道。





起居室的空间十分宽敞,酒精壁炉与悬空岩板墙为隔断,让人享受设计营造下的安宁与舒适。




在考虑底部复杂的原始结构时,我们设计了一个贴近生活的树枝状动线,
让从车库进来的业主,可以不费周折的进入起居室、次卧、书房、楼梯等等。




阳光,是最重要的“生活因子”。
在隐蔽暗沉的空间上开了两扇天窗,光线便被引入其中,
借由西厨客厅的大块落地窗带来的充足光线,
使家人随时察觉时间的流逝。





悬浮式阶梯处理方式,镂空底部的凹槽装有感应灯带,随着主人的脚步渐隐渐现。




光线透过一楼的落地窗,满盈了小客厅的空间,
点点星星地越过楼梯的玻璃砖,片状水波的光影描绘在楼梯间的白墙之上。





破除原本次卧与阳台的隔断,落地窗打开后,可以和户外有着充分的互动,
庭院有遮阳,室内有西厨沙发。
开放式的空间,让视野也更加的开阔明朗。





在雅致的餐厅空间中,你可以看到弧形与直线,金属与玻璃、石材的交织汇聚。
风格设计上体现轻奢,陈设布置上有意精简,考虑到空间内的情绪和动线,仅仅保留有一组玻璃酒柜。



步入式衣帽间,鱼骨拼接木地板,一个绵长、利落的延伸结构。



主卧套间的布局涵盖有主卧休息室、步入式衣帽间,双人的洗漱区,干湿分离的卫生间。





与衣帽间相同元素的饰面元素,步入式的纵深感,家的灵性精神无不和工艺、物料有着息息相关的联系。


儿童房

影音房

一楼入户玄关

中式厨房
0
Report
声明
5
Share
相关推荐
in to comment
Add emoji
喜欢TA的作品吗?喜欢就快来夸夸TA吧!
You may like
相关收藏夹
Log in
推荐Log in and synchronize recommended records
5Log in and add to My Favorites
评论Log in and comment your thoughts
分享Share

















































































