山邸作品
自己的生活

自己的生活
以下是项目信息:
The following is the project information:
Name | 项目名称:
Yang guang mei hu tian di | 阳光美湖天地
Location | 项目地点:
Chang chun ,China | 中国长春
Project area | 项目面积:
96.7㎡
Decorative Design | 装饰设计:
管冲 韩剑
Soft outfit & Exhibition | 软装与陈列:
管冲 韩剑
Soft outfit procurement | 软装采购:
管冲 韩剑
Cooperative Design | 施工设计:
管冲 韩剑

▲
项目地点
Hey,关注山邸设计的粉丝朋友们:
今天给大家分享的是自己生活的家,
本次我们整理了从测量到设计到施工交付,各种数据资料分享给大家;
接下来,就来看这个家的方案设计吧:
01现场图分享



本次建筑内客厅空间的难点在于阳台上方的承重梁,梁的存在大大降低了这部分空间的棚面高度;
两个内置室内的设备井也占据了客厅空间,
同时窗户下边的矮墙也大大遮挡了客厅的采光;为此我们首要解决的就是这部分。


餐厅厨房的区域也是多了一个阳台区域,这样我们可能需要把这个空间的墙体打通,
阳台的空间面积扩充到餐厅厨房里面来,同时也增加了采光;
后期也要调整凹凸的墙体,控制在一个水平完成面。


主卧室的空间窗户形式也是一样遮挡了空间采光;
上方的承重梁体也是影响到吊顶标高,也是要在方案设计中要着重解决的。
02方案效果图分享

▲
入口玄关

▲
玄关2

▲
客厅1

▲
客厅2

▲
电视背景墙

▲
沙发背景墙

▲
干区

▲
厨房1

▲
厨房2

▲
主卧室

▲
次卧室

▲
卫生间
03现场施工图分享
施工周期约90天,18家材料商,10余个工种,
约30名工人进行交叉施工与安装。


• 这里我们要给大家2个重要提示:
① 把控施工期内的情绪:此刻由于施工期内要处理与解决的事情有很多,面对的困难很很多,最容易产生放弃、妥协等情绪,越是这种情况越要坚持设计之初的想法与愿景。
② 开展两手准备阶段:施工期内,已经可以开始着手家具、装饰、灯光、软装定制产品等材料的准备与购买。
04方案实景图分享












05过程失误分享
① 本次设计中电视背景墙与餐厅卡座的柜体尺寸上有些厚重,应该设计在40cm区间;
② 关于定制手盆、收口、柜体均为一体化定制,部分尺寸比例依然需要再推敲;
③ 棚面与柜体的交接处有待提升。

▲
原始图

▲
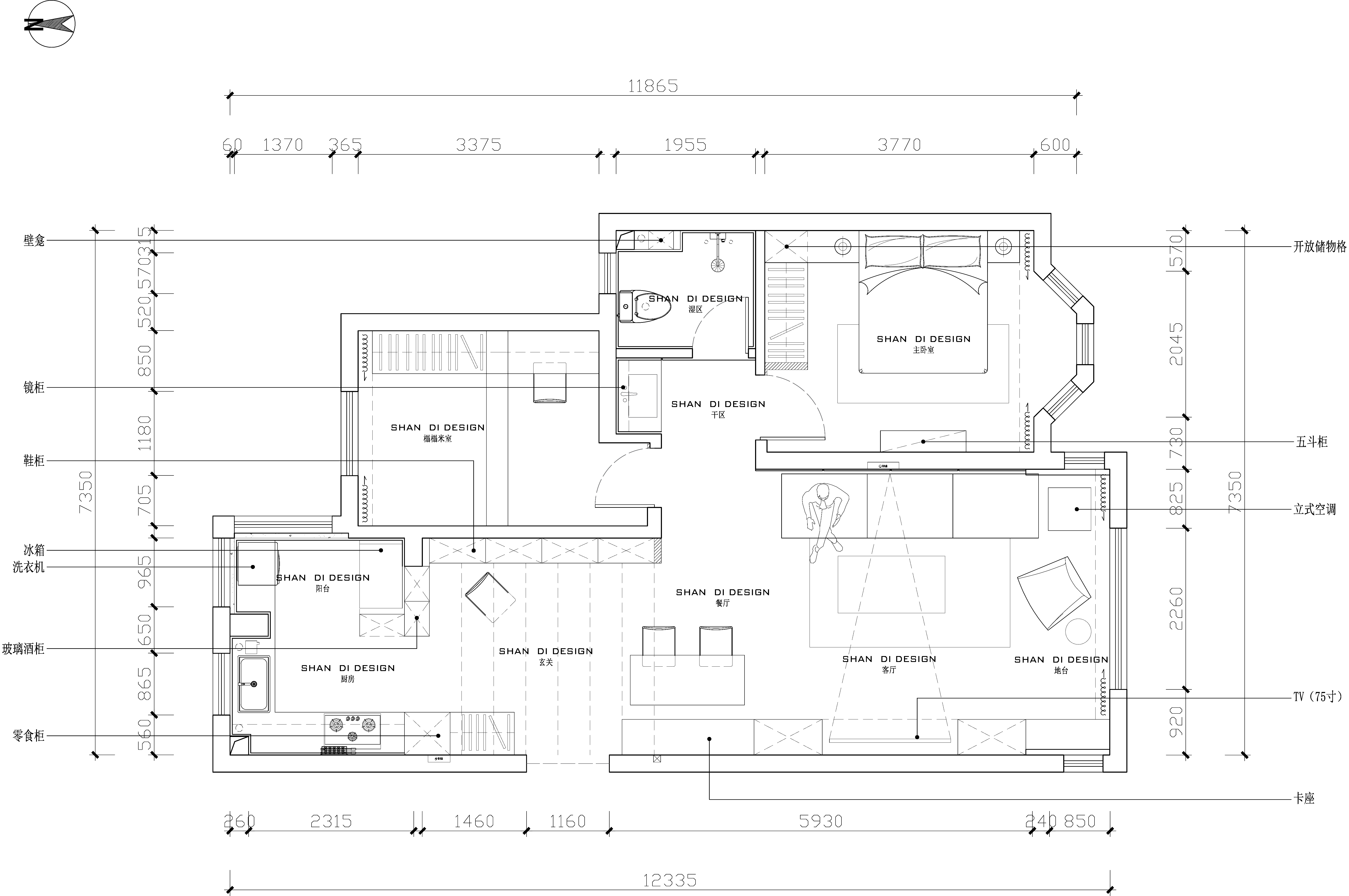
平面图

▲
机电图

以上作品版权归山邸设计所有,
我们可与分享精彩创作,同敬请您与我们一同时保护知识产权。
如果您喜欢我们的理念和作品,请点击右上方按钮,分享到朋友圈。
或关注我们微信公众号:山邸设计。
山邸设计官方联系渠道:
地址:吉林省长春市天富路与新城大街科技企业孵化器B8#811室
邮箱:1436983822@qq.com
电话:+13234431931
+13694306672















































































