首发|面对面餐饮·快餐店的又一次定义
面对面是山邸设计为长春地区餐饮面馆设计项目,目前以建设于万科三期夏花街106号,并将以新的面貌呈现。

面对面是山邸设计为长春地区餐饮面馆设计项目,目前以建设于万科三期夏花街106号,并将以新的面貌呈现。
Name | 项目名称:
MIan dui mian | 面对面餐饮
Location | 项目地点:
Chang chun ,China | 中国长春
Decorative Design | 装饰设计:
管冲 韩剑
Soft outfit & Exhibition | 软装与陈列:
管冲 韩剑
Cooperative Design | 施工设计:
刘工 齐工

▲
项目地点
一个复制性强的商业餐饮店铺
一种内置多种情绪的空间
生活是一种哲学,舒适美好的生活可以治愈人们并给他们带来希望
面馆???难道是白墙原木桌椅! 这次加入了快餐的氛围设计方式,在材质和灯光及软装上也是又一次的革新。设计师和甲方共同的所望亦是:快餐、分为、干净、丰富、年轻,复制性,于是在方案构思前设计师多次走访考察相近案例和亲身感受空间。最终和甲方一同打造出适合自己的面对面!
01方案效果图分享

▲
门脸

▲
入口

▲
中区
地面采用木纹瓷砖通铺地面,使空间场景氛围更为温馨舒适;墙面采用米黄和白色乳胶漆双拼色,突出面食麦子色系;所有的灯具采用弱化处理,一对一位置照明;软装桌椅采用胡桃木和浅灰色皮质搭配。

▲
中区2

▲
靠墙卡座
卡座形式采用整体的方式体现,和墙面融为统一整体;其巧妙运用了灯带来弱化卡座突出的体量。

▲
靠墙卡座2

▲
乐高斜墙

▲
柱子卡座
本次建筑内存有两根构造柱,从而严重影响了布局动线;因此设计师做了连接的空间手法,满足卡座功能的同时也弱化构造柱的存在,更好的使其联系在一起,体现空间的遮挡层次关系。

▲
柱子卡座2
两根构造柱的连接形式,在两端会有大面积的留白,在面积不足的情况下会使空间显得堵塞,设计师在此加设了卡布宣传灯箱作为强调装饰。

▲
柱子卡座3

▲
柱子卡座斜

▲
厨房档口
在厨房档口的立面方式上,选用了深色的饰面板作为底色,卡布灯箱作为宣传,最上沿麦子和玻璃的结合更突出“面”的元素。

▲
调料区
02方案实景图分享










03过程失误分享
① 本次设计中有一处吊顶的处理,我们给自己打70分,因为楼上的户主在设计排污下水时,把下水管做到我们顶棚消防管之下,且影响了设计吊顶的标高,特别是在厨房档口处上面的玻璃罩尺寸较原方案设计的缩小200mm,导致立面比例和效果没有达到预期,在空间中减分了。
② 关于定制手盆、木门、柜体均为一体化定制,部分尺寸比例依然需要再推敲。
③ 关于灯光,我们本次采用了7W/12W,3000K,15℃/24℃的灯光参数,灯带采用了10W/12W/米,3000K的参数,在空间中还是不够润透,灯光布局依旧需要精细推敲,主次关系依旧没有完全拉开。
④ 关于灯光分布的位置及高度对应的现场桌椅排布有些许偏差。
⑤ 关于木饰面的阳角及拼接处理,还需要更好的考察市场材质及五金收口。
过程失误有时候可以挽回,有时候确实无法挽救,我们只能将一次次失误列入到自身的失误信息库里,争取下一次不再犯。每一次进步一点点。

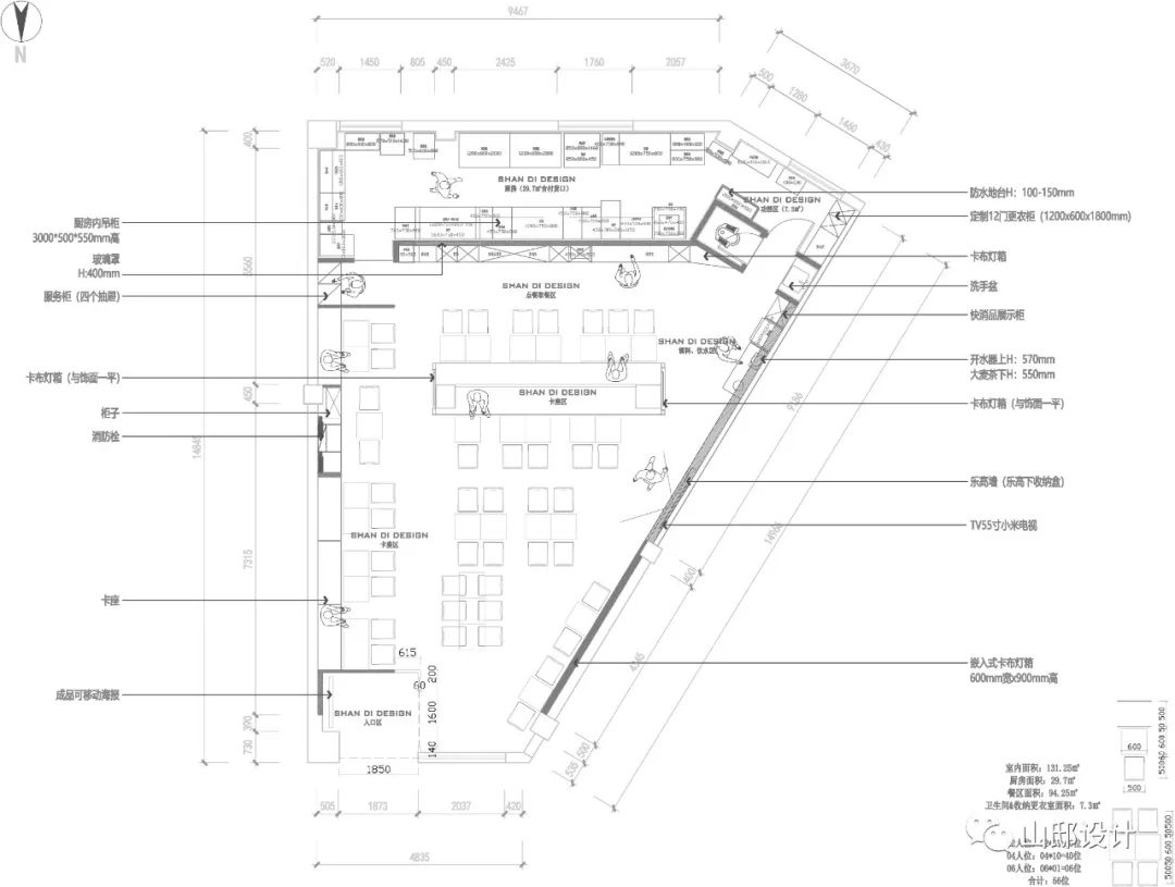
▲
平面图

以上作品版权归山邸设计所有,
我们可与分享精彩创作,同敬请您与我们一同时保护知识产权。
如果您喜欢我们的理念和作品,请点击右上方按钮,分享到朋友圈。
或关注我们微信公众号:山邸设计。
山邸设计官方联系渠道:
地址:吉林省长春市天富路与新城大街科技企业孵化器B8#811室
邮箱:1436983822@qq.com
电话:+13234431931
+13694306672














































































