山邸作品|面对面·伟峰初晓餐厅
面对面是山邸设计为长春地区餐饮面馆设计项目,目前以建设于伟峰初晓B地块5号楼商铺102号,并将以新的面貌呈现。

面对面是山邸设计为长春地区餐饮面馆设计项目,目前以建设于伟峰初晓B地块5号楼商铺102号,并将以新的面貌呈现。
以下是项目信息:
The following is the project information:
Name | 项目名称:
MIan dui mian | 面对面餐饮
Party A firm | 甲方单位:
MIan dui mian | 面对面
Location | 项目地点:
Chang chun ,China | 中国长春
Project area | 项目面积:
136㎡
Decorative Design | 装饰设计:
管冲 韩剑
Soft outfit & Exhibition | 软装与陈列:
管冲 韩剑
Soft outfit procurement | 软装采购:
刘工 齐工
Cooperative Design | 施工设计:
刘工 齐工

▲
项目地点
一个复制性强的商业餐饮店铺
一种内置多种情绪的空间
Hey,关注山邸设计的粉丝朋友们:
今天给大家分享的是一个清爽的面馆餐厅,
本次我们整理了从设计到完工一个餐饮店的各种数据资料分享给大家;
接下来,就来看这个店的方案设计吧:
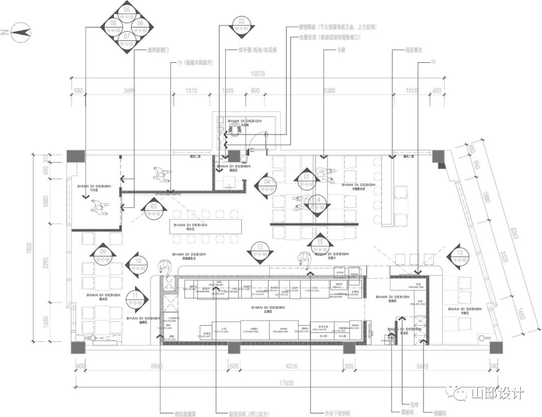
01方案效果图分享

▲
入口
两根构造柱的连接形式,在两端会有大面积的留白,在面积不足的情况下会使空间显得堵塞,设计师在此加设了卡布宣传灯箱作为强调装饰。

▲
入口2
地面采用水磨石瓷砖地面铺贴,主要空间材质选择木饰面、白、灰、红色作为空间基调;档口采用弧形卡布灯箱处理。

▲
倒台

▲
中区

▲
中区2

▲
中区3
中区选择了木质面弧形镂空造型处理了空间隔断,从而地面也做了空间地拼处理,使其强调舒适空间;

▲
就餐区
白色镂空隔断采用了不锈钢板外喷涂白色氟碳漆处理。

▲
卡座
卡座运用了水磨石石材,坐垫和靠垫选用红白色皮材质。

▲
卫生间
02现场施工图分享
施工周期约40天,25家材料商,13余个工种,
约65名工人进行交叉施工与安装。



• 这里我们要给大家2个重要提示:
① 把控施工期内的情绪:此刻由于施工期内要处理与解决的事情有很多,面对的困难很很多,最容易产生放弃、妥协等情绪,越是这种情况越要坚持设计之初的想法与愿景。
② 开展两手准备阶段:施工期内,已经可以开始着手家具、装饰、灯光、软装定制产品等材料的准备与购买。
03方案实景图分享



























04过程失误分享
① 本次设计中有一处弧形档口的处理,我们给自己打80分,因为材质的关系没有达到预期效果,导致突兀,在空间中减分了。
② 关于定制手盆、木门、柜体均为一体化定制,部分尺寸比例依然需要再推敲。
③ 关于灯光,我们本次多处顶面应用了软膜天花照明,其他灯光照明采用了4000K中性光,在空间中有些冰冷,灯光布局依旧需要精细推敲,氛围关系缺少。

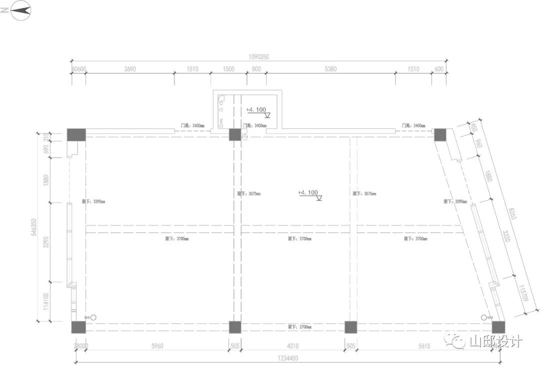
▲
平面图


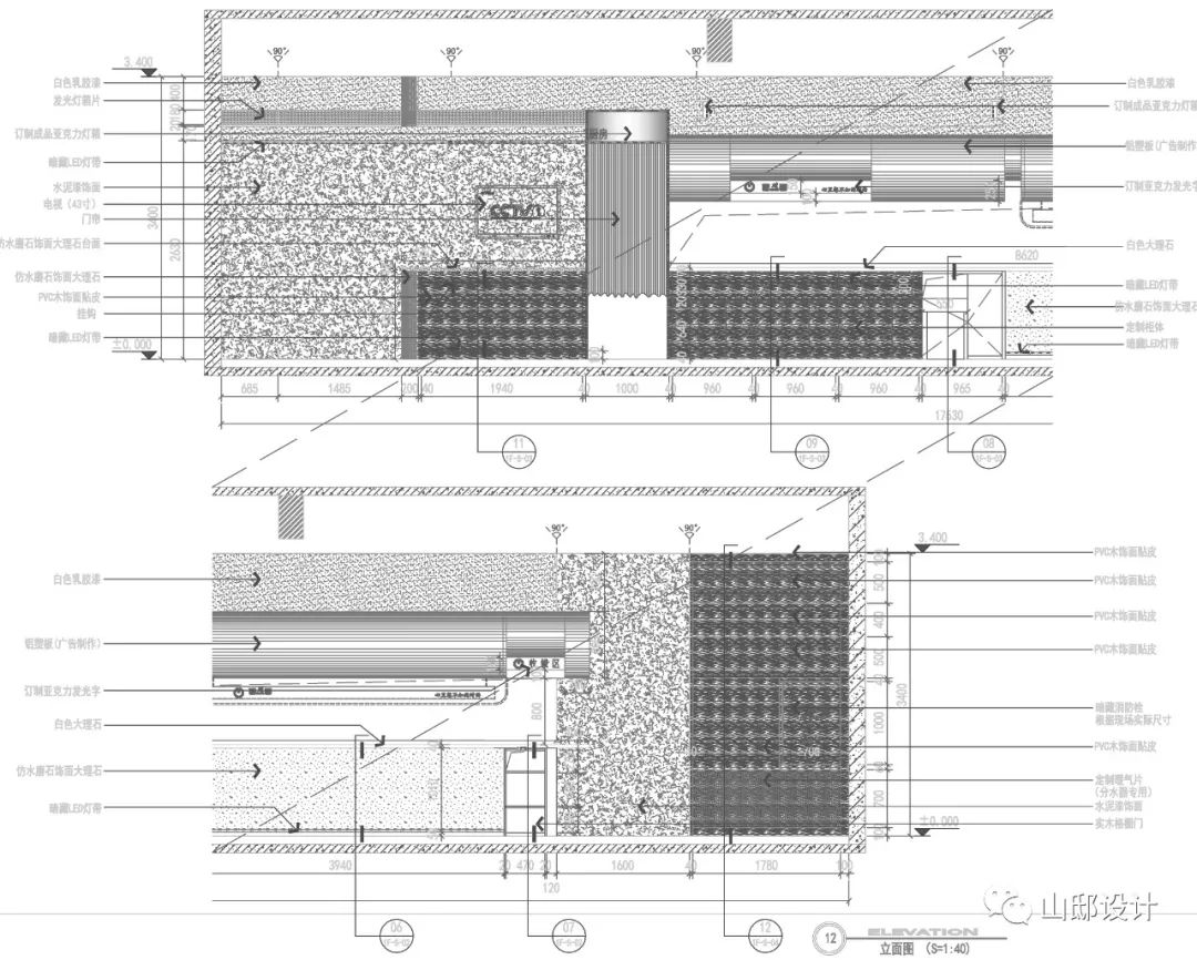
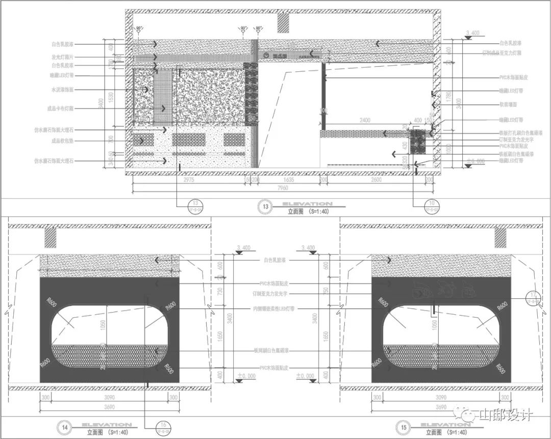
▲
立面图

以上作品版权归山邸设计所有,
我们可与分享精彩创作,同敬请您与我们一同时保护知识产权。
如果您喜欢我们的理念和作品,请点击右上方按钮,分享到朋友圈。
或关注我们微信公众号:山邸设计。
山邸设计官方联系渠道:
地址:吉林省长春市天富路与新城大街科技企业孵化器B8#811室
邮箱:1436983822@qq.com
电话:+13234431931
+13694306672
已修改 0/20














































































