山邸作品|一个3口之家的家
一个3口之家的家

以下是项目信息:
The following is the project information:
Name | 项目名称:
Zhong hai yue lu shan | 中海阅麓山
Location | 项目地点:
Chang chun ,China | 中国长春
Project area | 项目面积:
154㎡
Decorative Design | 装饰设计:
管冲 韩剑
Soft outfit & Exhibition | 软装与陈列:
管冲 韩剑

▲
项目地点
Hey,关注山邸设计的粉丝朋友们:
今天给大家分享的是一个3口之家,
本次我们整理了从测量到设计,各种数据资料分享给大家;
接下来,就来看这个店的方案设计吧:
01现场图分享

本次建筑内空间进深和开间都比较宽敞,房屋中间没有横穿承重梁;
比较有利于后期的空间设计。




02方案效果图分享

▲
楼梯间

▲
玄关

▲
游戏房1

▲
游戏房2

▲
电视背景墙
客餐厅选择了无主灯照明设计,吊顶运用抽缝处理把客、过廊、餐厅划分为整体性的开放空间;
长条的黑色中央空调口的设置,同样也是三个空间相互联系;
整体的色调材质很单一,但是凸显现代生活的家居风格。

▲
沙发背景墙

▲
客厅1

▲
客厅2
孩子喜欢弹奏钢琴,为此在客厅的开放空间加设了钢琴,在客厅与游戏房之间的墙体做了凹龛处理;
沙发软装的选择上采用了具有双面坐人的家私模块,一侧电视的观影功能,另一侧满足孩子练琴功能;
落地灯的弯折造型也是打破规矩空间,使之更有韵律。

▲
餐厅
房间的男主人比较喜欢开放式的餐厨空间,而女主人则担心油烟问题;
在此做了倒台台面加设玻璃隔断与极窄玻璃口袋门的处理方式,
开放通透的同时更能解决油烟的隐患。

▲
厨房

▲
洗衣房

▲
公卫

▲
儿童房

▲
衣帽间

▲
主卧室1

▲
主卧室2

▲
主卧室3
房间的女主人比较喜欢看书,所以在卧室空间做了书柜与电视一体的柜子;
地面地板的铺贴方式采用鱼骨拼接,更有延续性。

▲
主卫

▲
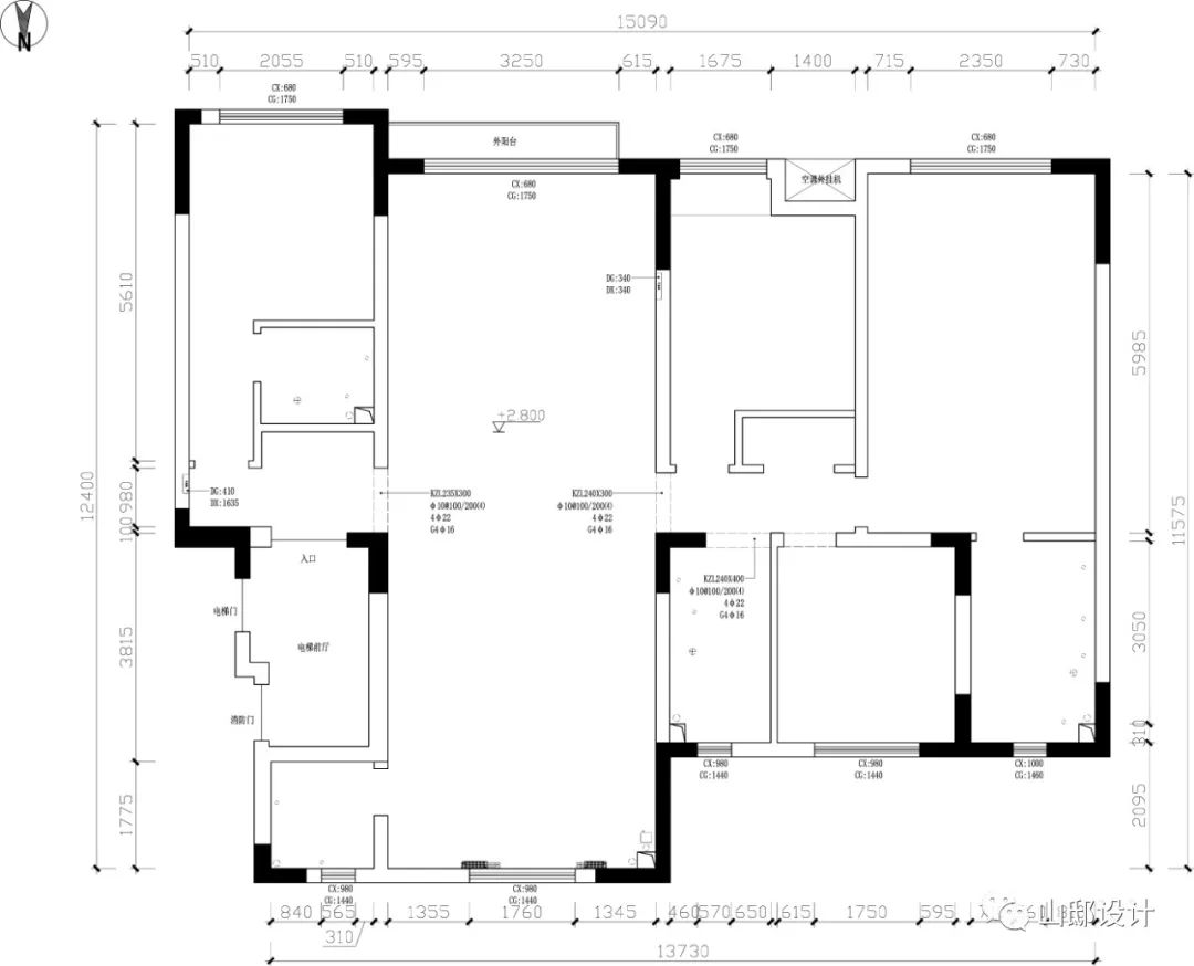
测量图

▲
草图

▲
平面图

以上作品版权归山邸设计所有,
我们可与分享精彩创作,同敬请您与我们一同时保护知识产权。
如果您喜欢我们的理念和作品,请点击右上方按钮,分享到朋友圈。
或关注我们微信公众号:山邸设计。
山邸设计官方联系渠道:
地址:吉林省长春市天富路与新城大街科技企业孵化器B8#811室
邮箱:1436983822@qq.com
电话:+13234431931
+13694306672














































































