山邸作品|面对面·国金汇餐厅
面对面是山邸设计为长春地区餐饮面馆设计项目,目前以建设于人民大街解放大路交汇国际金融中心C座-1F,并将以新的面貌呈现

面对面是山邸设计为长春地区餐饮面馆设计项目,目前以建设于人民大街解放大路交汇国际金融中心C座-1F,并将以新的面貌呈现。
以下是项目信息:
The following is the project information:
Name | 项目名称:
MIan dui mian | 面对面餐饮
Party A firm | 甲方单位:
MIan dui mian | 面对面
Location | 项目地点:
Chang chun ,China | 中国长春
Project area | 项目面积:
77㎡
Decorative Design | 装饰设计:
管冲 韩剑
Soft outfit & Exhibition | 软装与陈列:
管冲 韩剑
Soft outfit procurement | 软装采购:
曲工
Cooperative Design | 施工设计:
曲工

▲
项目地点
一个复制性强的商业餐饮店铺
一种硬朗金属情绪的空间
Hey,关注山邸设计的粉丝朋友们:
今天给大家分享的是一个金属动车箱的面馆餐厅,
本次我们整理了从设计到完工一个餐饮店的各种数据资料分享给大家;
接下来,就来看这个店的方案设计吧:
01方案效果图分享

▲
入口

▲
就餐区入口

▲
档口

▲
卡座

▲
就餐区2

▲
卡台
02现场施工图分享
施工周期约40天,18家材料商,10余个工种,
约53名工人进行交叉施工与安装。


• 这里我们要给大家2个重要提示:
① 把控施工期内的情绪:此刻由于施工期内要处理与解决的事情有很多,面对的困难很很多,最容易产生放弃、妥协等情绪,越是这种情况越要坚持设计之初的想法与愿景。
② 开展两手准备阶段:施工期内,已经可以开始着手家具、装饰、灯光、软装定制产品等材料的准备与购买。
03方案实景图分享















04过程失误分享
① 本次设计中有一处弧形档口的处理,我们给自己打75分,因为材质的关系没有达到预期效果,材质的尺寸限制存在大量的拼接缝隙,在空间中减分了。
② 关于定制手盆、木门、柜体均为一体化定制,部分尺寸比例依然需要再推敲。
③ 关于灯光,灯光照明采用了3500K灯值,瓦数略低;与材质之间的对比不够成熟;卡台处定制的灯具在实际使用中存在变形。

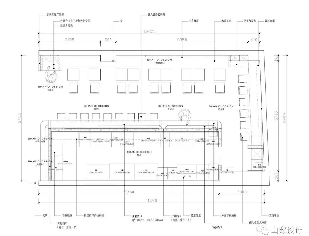
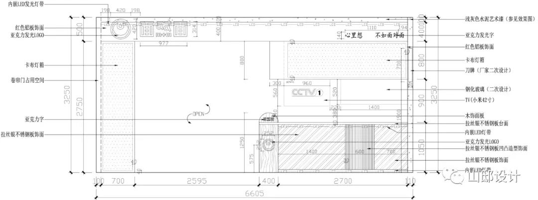
▲
平面图



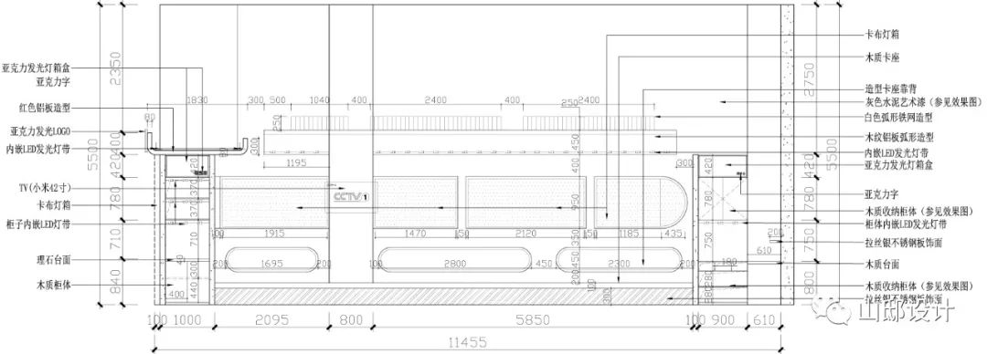
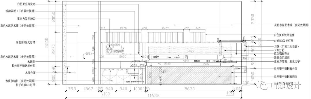
▲
立面图

以上作品版权归山邸设计所有,
我们可与分享精彩创作,同敬请您与我们一同时保护知识产权。
如果您喜欢我们的理念和作品,请点击右上方按钮,分享到朋友圈。
或关注我们微信公众号:山邸设计。
山邸设计官方联系渠道:
地址:吉林省长春市天富路与新城大街科技企业孵化器B8#811室
邮箱:1436983822@qq.com
电话:+13234431931
+13694306672














































































