兰州排名前十强装修公司保利大都汇96平米现代轻奢风格
兰州市/教育工作者/3年前/79浏览
版权
兰州排名前十强装修公司保利大都汇96平米现代轻奢风格
保利大都汇-96平米-现代轻奢风格;兰州排名前十强装修公司东易日盛家装热线15293186651.
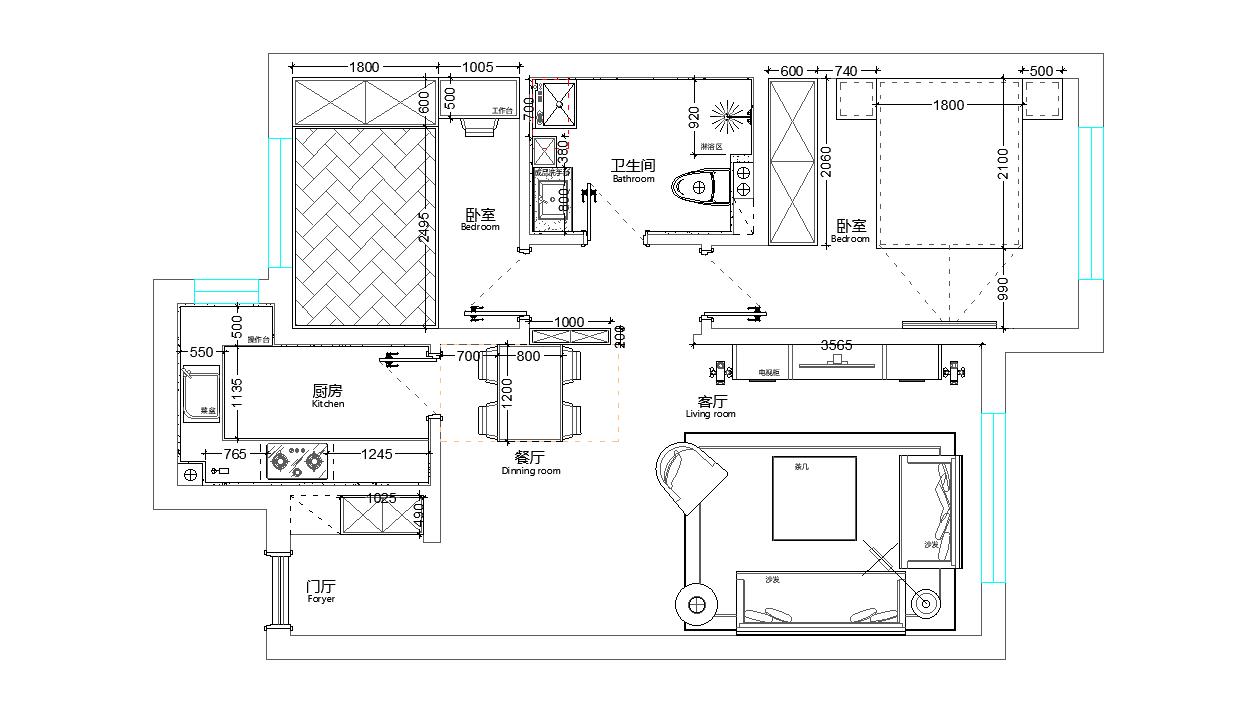
装修楼盘:保利大都汇
装修面积:96平米
装修风格:现代轻奢风格
装修户型:三室两厅一卫
家装公司:东易日盛装饰兰州分公司
东易日盛装饰地址:兰州市城关区良志国际汽车城


轻奢风格,是一种生活态度,低调、舒适却无伤高贵与雅致;追求恰到好处的精致,而不是无度的奢侈。


保利大都会装修整体空间通透明亮,简约的空间自然流露时尚舒适的气息,给人安全感。家具、装饰都选择了简约线条的款式,装饰也不需要太过复杂,为室内营造奢华低调的气氛,令人过目不忘。


版权归属:兰州室内装修设计-兰州东易日盛超放心家装-东易日盛装饰兰州分公司。
关键词:现代简约风格,东易日盛,兰州排名前十强装修公司,兰州装修公司
1
1
Share
相关推荐
in to comment
Add emoji
喜欢TA的作品吗?喜欢就快来夸夸TA吧!
You may like
相关收藏夹
Log in
1Log in and synchronize recommended records
1Log in and add to My Favorites
评论Log in and comment your thoughts
分享Share














































































