深圳上诚×舒尔康口腔 | 为普通口腔诊所找到最合适的空间表达
设计的意义,就是在不完美的空间里,创造完美的体验。



设计的意义,就是在不完美的空间里,创造完美的体验。
此次项目空间较小,甲方的设计需求是,要在有限空间里呈现完整的口腔医疗功能布局,设计的难点是要在极其有限的空间里通过设计手段实现专业口腔医疗的多功能需求。
下面通过照片,分享空间独特的设计思路~
01空间照片分享
前厅&候诊区


设计师将接待、候诊、茶饮三个功能区规划到一起,把候诊区设计成“L”型靠墙沙发卡座,让整个空间更显开阔,同时将诊所重要的功能场景在这个大厅里有序地一一呈现。
纯粹的蓝白色调将空间包裹得非常自然舒适,增加了空间的宽阔幅度,让候诊人群在这个公共空间里自由品饮、休息、观影,忘却候诊的焦虑。
过道&诊疗区



从医生更衣柜、洗消供空间的双边柜、CT室的观察门和壁挂式牙片室工作台,到种植手术室功能动线的规划,设计师通过设计手段,保证严谨医学功能需求的同时,糅合设计美学,呈现舒适而不失质感的现代医疗空间。
02设计资料分享

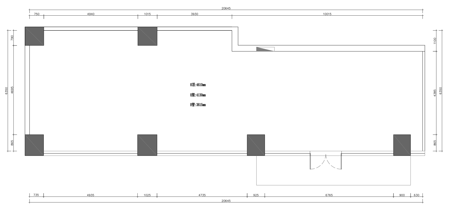
原始平面图

平面布置图
整个空间共118平方米,设置了4间诊室、接待区、候诊区、茶水区、专业的洗消供空间、医废间、牙片室、三合一CT室、技工室以及一个专业的医疗设备机房。我们为普通小诊所,找到最合适的空间设计方案,空间虽小,功能齐全。


项目设备对接单
普通口腔诊所空间较小,只有选择好的供应商,找到合适的设备才能节约更多空间。
洗消供和设备间是诊所重要的功能区,即便空间有限,设计师也按照最严格标准去规划。
为了在狭小空间实现洗消供和设备间的功能,设计师亲自与供应商沟通,精准对接,选择适合诊所小空间的设备。为了实现医疗机构洗消供空间的苛刻要求,设计师利用双边柜同步实现消毒打包间与消毒储藏室之间流转与储存的功能,完美实现专业医疗空间严格的洗消要求。再利用建筑层高,设置储物空间,让洗消供空间与设备间的功能得以完美实现。

项目设计使用物料



上诚专业管理系统

上诚服务特色
03 要点总结
1.由于施工前期沟通不到位造成后期施工遇到空调风口安装尺寸出现偏差。
这次施工遇到客户没按设计要求采购设备的情况,没有及时沟通调整施工方案,导致空调施工安装难度增大,制冷量受到影响。虽然后期通过扩大天花开孔满足了空调风口安装尺寸,但美观性大打折扣。
改进方案:以后在客户自主采购设备时,要提前为客户把好关,第一时间了解清楚客户所购买材料设备是否与设计有冲突,及时给出建议及调整方案。
2.由于口腔医疗空间的特殊要求,以及前期跟甲方的沟通不够深入,在工程即将落地才发现现实使用中插座电位不够的情况。
改进方案:为了减少后期再出现类似的情况,要让业主提前将专业电器设备使用和需求详细告知设计单位,让设计单位来精准设计,或者双方在施工现场,对比设计图纸,详细标绘出每一个接口的位置并进行解说。
项目信息
项目名称 ᅵ 舒尔康口腔诊所
项目性质 ᅵ 医疗空间
项目地址 ᅵ 广东深圳
项目面积 ᅵ 118m²
硬装设计 ᅵ 王雪莲
软装设计 ᅵ 武倩冰
EPC总承包 ᅵ 深圳上诚建设有限公司
弱电智能化 ᅵ 杨平
给排水工程 ᅵ 肖金飞
电气工程 ᅵ 张兆亨
VI设计 ᅵ 深圳上诚设计有限公司
医疗柜体 ᅵ 深圳上诚医疗设备有限公司
竣工时间 ᅵ 2020年10月
装饰风格 ᅵ 现代时尚
About us:

深圳上诚总部位于设计之都深圳,并于2020年在杭州设计分公司。公司目前拥有一支年轻化、且富有创意的研发设计团队与品牌策划团队,旨在为口腔医疗行业提供一站式品牌全案设计服务。
深圳上诚经过12年的发展,已经形成以口腔医疗空间设计为核心,下设品牌设计、硬装设计、软装设计、医疗柜体专项设计、工程施工服务等主要服务,目的是围绕口腔医疗行业展开全产业链覆盖,为口腔医疗行业赋能,推动口腔行业标准化、规范化发展,让口腔医疗品牌价值得以提升。
目前公司已为众多医疗机构提供服务,已打造上海新浦口腔医院、深圳侨城菲诺口腔、杭州老年口腔医院、广州美伦口腔医院、杭州萧山牙科医院、杭州儿童口腔医院、义乌牙科医院、义乌儿童口腔医院等知名口腔医疗单位,设计总面积超过50万平米,是我国口腔医疗品牌服务的引领者。
















































































