珠海传家装饰案例|700平不规则椭圆办公室,零浪费
导语:珠海传家装饰,一家懂设计的装修公司。1995年元旦,由一群匠人创办、组建而成,深耕珠海20余年,足迹遍布周边城市。
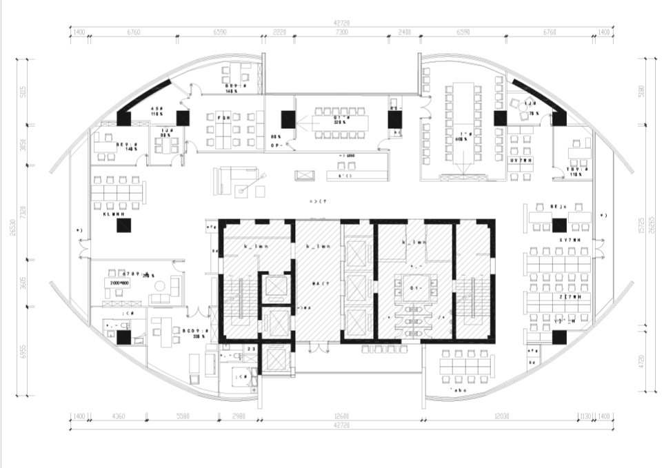
项目位置:珠海,知行合一办公室
服务范围:设计+施工
项目周期:45天
项目主材:烤漆板 隔音棉墙体 人造石 瓷砖
知行合一,是一家长期致力于改变中国养老服务空心化,重视推行科学合理的医疗养老和医生集团服务的企业。传家打造出一间简洁纯净、舒适和绿色环保的办公空间,以传达企业对于养老问题的人文关怀,并始终呼应品牌秉承的理念——“知行合一”、“老人与海”。
项目初始为一个巨大的不规则椭圆空间,除开外围玻璃幕墙,整个空间仅由10根钢筋混凝土承重柱和两小段弧形外墙作为支撑。


传家在此基础上做出合理加法,从独立办公室、会议室、开放办公区,到洽谈室、档案室、储物间和水吧一应俱全,传家不放过每一寸“边角料”,打造出一间面积零浪费,配套超齐全的办公空间。

墙体——
含隔音棉的新建墙体与玻璃将700平的空间分割成有机办公体。
隔音棉的使用确保了办公环境的舒适度。
部分离窗的区域,比如两个洽谈室、副总办公室,使用玻璃作为墙体,让原本可能逼仄的空间变得敞亮。
前台背景墙采用烤漆板,整体洁净白亮,恰到好处地传达出健康舒适的企业精神。

天花——
会议室的铝板天花十分考究施工水平,但带来的直线效果与墙体相衔接,增加了空间的连贯性和立体感。
接待前厅采用了软膜天花,营造出大面积均匀照明的发光效果。一提到发光天花,非常出名的便是高端大气的苹果店……
而在开放办公区,在原始天花裸露的基础上刷绿色乳胶漆,这种随性的工业风做法也贴合现下大多数办公室设计潮流。
柜体——
传家定制办公室柜体,一柜到顶的设计十分清爽。开放式柜体和带门柜体可以随情景自由组合,木饰面柜体和拉丝不锈钢柜体的搭配彰显不凡品位。


特殊造型——
传家定制了两面“立体书”,以此生动地传递企业文化,。由夹板精加工成箱体,表面附着高清喷绘图案,边缘则装置发光灯箱以渲染氛围,加以强调。
在前台和走廊转角区域,黑色不锈钢制作的艺术字贴于墙上,加深印象。
传家在此次办公室项目中做到了,在有限的空间和预算条件下,如何最大化利用面积、差异化装饰来达成效果。这得益于传家设计团队对项目需求的深刻洞悉,以及功力深厚的施工团队加持,最终形成了一个多样化、特色化的办公空间。















































































