治家平台丨精装房如何装修设计
今年接到的很多设计需求,发现精装房越来越多,那么精装房该如何装修设计呢?
今年接到的很多设计需求,发现精装房越来越多,大部分人当初买精装房也是为了省钱省力,想着硬装交房搞搞软装就能住了。但也有不少人觉得开发商的审美与自己完全不搭边,装修根本不是自己想要的风格。那么精装房该如何装修设计呢?治家从以下几点来给大家讲解!
一、精装房硬装总结
交房后,首先是要现场总结一下精装房里面的硬装与风格,把全面拍照下来,看看哪些地方不喜欢的,然后设计的时候才能更好地根据现场照片来调整。
二、确定设计风格
在网上看看装修案例,保存一些自己喜欢的风格图片,然后发给设计师,让设计师理解到你喜欢的家居氛围。

三、和设计师交代需求
确定风格了还要跟设计师交待自己的居住需求,比如平时家庭人员的常住人口、生活习惯、兴趣爱好等生活细节,以及对于未来生活的规划;还有之前居住的家庭环境中,有哪些场景或者空间让你觉得喜欢或闹心的,把这些信息告诉设计师,有利于设计师根据你的个性需求做设计方案。

四、平面布置方案
在理解你喜欢的风格、分析你的居住需求后,设计师会根据户型与房屋的情况,做一个平面布置方案。

五、效果图设计
在确定平面方案后,综合现场与需求情况,进行效果图的设计,效果图上会把硬装改造、软装搭配都有所表现,可以让你直观看到这个改造设计方案是否符合自己的需求。

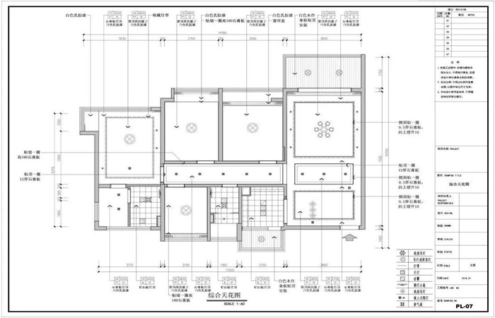
六、硬装施工图
如果有较大的硬装改造,比如天花重新做吊顶、背景墙重新装木饰面、大理石之类的话,设计师还会给你提供相应的硬装改造施工图。

七、采购清单整理
确定了所有装修改造与软装搭配方案后,设计师就会根据方案,给你整理一份硬装主材清单与软装采购清单,你装修的时候就可以根据清单去买材料与家具了。

综上所述,精装房的装修设计,首先是要弄清楚精装房里有哪些地方是可以改造的。然后再根据自己的风格喜好,总结一下哪些硬装要改造。然后再根据居住需求来做平面布置方案、硬装改造方案、软装布置方案,方案确定好了再制作软装采购清单。














































































